ПлиткаБот — это специализированная онлайн-программа для тех случаев, когда нужно не просто примерить плитку, а быстро собрать понятный проект ванной или санузла по своим размерам, увидеть результат в 3D, подобрать конкретную коллекцию и сразу получить практический выход: расчет материалов, стоимость, отправку проекта и экспорт модели. Программа заточена именно под облицовку ванной комнаты, поэтому здесь нет лишних модулей для гостиной, кухни, спальни или сложного архитектурного моделирования. Зато есть то, что действительно нужно перед ремонтом: схема помещения, план, 3D-просмотр, каталог брендов, коллекций и готовых дизайнов.
ПлиткаБот работает по очень понятной логике. Сначала пользователь выбирает Пример комнаты или Нарисовать комнату, затем задает схему помещения, переключается между режимами Схема и План 3D, подбирает плитку через блоки Бренд, Коллекция, Дизайн, добавляет сантехнику, а затем либо продолжает подбор, либо отправляет проект для уточнения наличия и стоимости. В интерфейсе также есть экспорт через Скачать glTF и Скачать Collada, а для фотореалистичного представления предусмотрен отдельный рендер с круговым обзором 360°.
Главная сильная сторона ПлиткаБота в том, что он не заставляет пользователя самому выстраивать сложную раскладку с нуля на профессиональном уровне. Программа берет на себя именно ту часть работы, которая чаще всего нужна в бытовом ремонте и в продаже плитки: помогает быстро нарисовать помещение, расставить базовую сантехнику, выбрать реальную коллекцию и посмотреть, как этот набор будет выглядеть в типовом санузле. На домашнем компьютере или телефоне такой подход оказывается намного практичнее, чем тяжелые профессиональные системы, особенно если задача — не выпуск детальных рабочих чертежей, а быстро выбрать плитку и понять бюджет.
Плиткабот
- Дизайн интерьера
- Русский интерфейс
- Просто для новичков
- Требует интернет
- Ограничен функционал
- Зависит от браузера
Что представляет собой ПлиткаБот на практике
Если описывать программу без маркетинговых формул, ПлиткаБот — это онлайн-сервис для проектирования ванной комнаты вокруг облицовки. В центре всей логики здесь находится не мебель, не декоративные сценарии и не обустройство квартиры целиком, а именно раскладка плитки в ванной, подбор коллекции и расчет закупки. Поэтому программа особенно уместна в трех ситуациях:
-
когда нужно быстро собрать проект ванной комнаты онлайн без установки тяжелого софта;
-
когда хочется заранее проверить, как будут смотреться стеновые и напольные покрытия в реальном объеме;
-
когда нужно перейти от визуализации к покупке, а не остаться только на красивой картинке.
ПлиткаБот сразу задает правильную рамку использования. Это не универсальный планировщик дома и не CAD-система для сложной рабочей документации. Программа живет в жанре 3D раскладка плитки онлайн и дизайн-проект ванной. Именно поэтому в каталоге нет случайного набора декоративных предметов, а в панели объектов находятся конкретные вещи, которые определяют компоновку санузла: дверь, ванна, угловая ванна, душевая кабина, унитаз, инсталляция, раковина с тумбой, раковина и стиральная машина. Такой набор сразу показывает, на какие реальные задачи ориентирован сервис.
Отдельно важно, что ПлиткаБот не замыкается только на визуализации. После выбора дизайна пользователь может нажать Отправить, ввести телефон, согласиться на обработку персональных данных и передать проект для уточнения наличия и стоимости. Это меняет характер программы: она становится не просто инструментом для вдохновения, а рабочей частью процесса покупки. Именно по этой причине ПлиткаБот удобно воспринимать как программу на стыке визуализации, подбора и предзаказа материалов.
Какие задачи реально решает программа
ПлиткаБот полезен не абстрактно, а в наборе вполне конкретных сценариев.
1. Создание плана санузла по размерам
Программа позволяет нарисовать собственное помещение через режим Нарисовать комнату. Для корректной работы нужна замкнутая схема помещения и размеры стен. При этом предусмотрен понятный диапазон габаритов: от 50 до 1000 сантиметров. Для небольших и средних санузлов этого более чем достаточно.
2. Подбор реальной плитки по брендам и коллекциям
ПлиткаБот работает не с безымянными текстурами, а с каталогом брендов и коллекций. В базе присутствуют Kerama Marazzi, Gracia Ceramica, Cersanit, Laparet, Azori, Alma Ceramica, LB Ceramics, Гранитея, Axima, Global Tile, Керамин, Нефрит-Керамика, AltaCera и Delacora. Всего в каталоге доступны сотни коллекций и десятки тысяч дизайнов, поэтому программа позволяет не просто представить цвет стены, а подбирать материал существенно точнее.
3. Быстрая 3D-визуализация ванной
Пользователь переключается между режимами Схема и План 3D, чтобы увидеть помещение либо в плоскости, либо в объеме. Это очень удобно в практической работе: сначала проще проверить геометрию комнаты на схеме, а потом перейти в 3D и оценить общий вид интерьера, сочетание плитки, сантехники и пропорций помещения.
4. Предварительный расчет количества и стоимости материалов
Программа рассчитана на то, чтобы не ограничиваться картинкой. ПлиткаБот считает количество и стоимость материалов, а в интерфейсе отправки прямо говорится, что проект можно переслать для уточнения наличия и стоимости. Это делает сервис особенно полезным на этапе, когда пользователь уже приблизился к выбору коллекции и хочет понять бюджет покупки.
5. Экспорт результата во внешние 3D-программы
ПлиткаБот умеет экспортировать модель через Скачать glTF и Скачать Collada, причем в интерфейсе отдельно указано, что 3D-модель можно использовать для Blender, SketchUp и других программ. Это важный момент: сервис не запирает пользователя внутри себя. Если базовая раскладка и подбор плитки уже готовы, модель можно забрать дальше в другой софт.
Как устроен интерфейс ПлиткаБота
Сильная сторона ПлиткаБота — предельно прямолинейный интерфейс. Здесь не приходится искать функции по вложенным меню. Основные элементы управления лежат на поверхности и читаются буквально с первого открытия страницы.
Верхняя часть интерфейса
Верхняя зона задает структуру проекта. В ней пользователь видит:
-
Пример комнаты;
-
Нарисовать комнату;
-
вкладки Комната 1, 2, 3, 4, 5, Демо;
-
переключение между режимами Схема и План 3D;
-
подсказки Как рисовать схему и Как создать план;
-
блок Скачать с экспортом 3D-модели.
Эта верхняя панель наглядно показывает, что работа в программе делится на две фазы. Первая — геометрия и наполнение помещения. Вторая — подбор облицовки и просмотр результата. Наличие вкладок Комната 1–5 полезно тем, кто хочет в одном сеансе переключаться между несколькими комнатами или вариантами, а режим Демо нужен для быстрого ознакомления с программой без построения собственного плана.
Центральная логика выбора плитки
Следующий важный слой — это подбор отделки через три базовых блока:
-
Бренд;
-
Коллекция;
-
Дизайн.
Логика здесь правильная и последовательная. Сначала выбирается производитель, затем нужная коллекция, затем конкретный дизайн. Для пользователя это особенно удобно в тех случаях, когда он уже присмотрел плитку в магазине и хочет не абстрактный бежевый или серый оттенок, а именно конкретную линейку производителя. Такой подход делает подбор плитки по коллекциям гораздо ближе к реальной закупке.
Блоки сохранения интересных решений
Отдельно в интерфейсе есть блок Избранное. Он нужен для отбора удачных решений по мере просмотра дизайнов. В связке с большим каталогом это полезная функция: когда пользователь перебирает десятки визуальных сценариев, без избранного быстро потеряться. Наличие этого блока показывает, что ПлиткаБот рассчитан не только на первый запуск, но и на сравнение нескольких вариантов дизайна.
Блок отправки проекта
Ещё один важный узел — область Отправить. Здесь программа предлагает отправить проект и выбранные дизайны для уточнения наличия и стоимости. В форме выводятся Телефон магазина, поле Телефон покупателя и чекбокс согласия на обработку персональных данных. Это уже не декоративная часть интерфейса, а реальный переход из режима проектирования в режим коммуникации с продавцом.
Библиотека объектов
ПлиткаБот предлагает конкретный набор объектов, которые нужны именно для ванной и санузла. В библиотеке присутствуют:
-
Дверь;
-
Ванная;
-
Угловая ванная;
-
Душевая кабина;
-
Унитаз;
-
Инсталляция;
-
Раковина с тумбой;
-
Раковина;
-
Стиральная машина.
Это не огромная энциклопедия мебели, но для проекта ремонта санузла такого набора обычно хватает. С помощью этих элементов можно достаточно быстро понять, как ванна или душевая влияет на композицию стен, где лучше смотрится декор, не спорит ли крупный рисунок плитки с перегруженным наполнением и насколько гармонично выглядит раскладка плитки в ванной при конкретной расстановке.
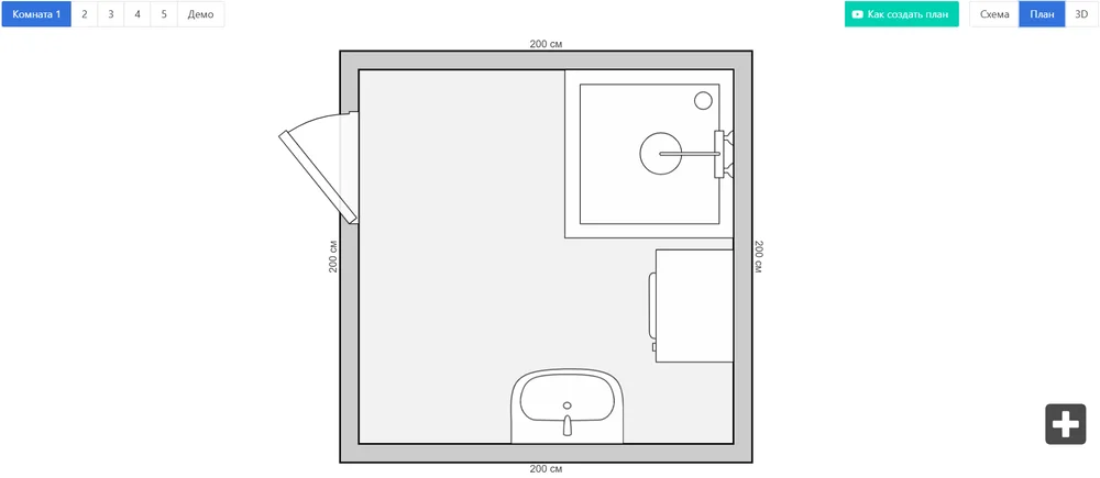
Первый взгляд на режим План
Ниже — скриншот, который хорошо показывает, как ПлиткаБот выглядит в плоскости. Здесь особенно удобно проверять геометрию комнаты, дверь, душевую, умывальник и крупные габариты перед переходом в объемный режим. В такой подаче программа помогает сначала устранить ошибки в плане, а уже потом заниматься облицовкой и подбором дизайна.

Первый запуск и начало работы
Первый запуск в ПлиткаБоте устроен максимально правильно. Пользователя не бросают сразу в пустой редактор. На старте программа предлагает два понятных сценария: Пример комнаты и Нарисовать комнату. Это полезно по двум причинам. Во-первых, новичок может быстро посмотреть демонстрацию и понять, как вообще выглядит визуализация плитки в санузле. Во-вторых, если задача уже прикладная, можно сразу перейти к собственному проекту.
Для реальной работы правильный путь — нажимать именно Нарисовать комнату. После этого логика становится линейной:
-
перейти в режим Схема;
-
нарисовать контур помещения;
-
задать размеры стен;
-
расставить ключевые объекты;
-
выбрать бренд, коллекцию и дизайн;
-
перейти в План 3D и оценить результат;
-
при необходимости отправить проект или экспортировать модель.
У ПлиткаБота есть важная встроенная дисциплина: программа прямо предупреждает, что для построения плана нужна замкнутая схема помещения и размеры стен. Это полезное ограничение. Оно не дает получить красивую, но бессмысленную картинку на базе кривого плана. Если контур не замкнут, проект ванной комнаты онлайн теряет смысл, потому что любая раскладка и любой расчет количества плитки опираются именно на геометрию.
Также ПлиткаБот сразу фиксирует диапазон допустимых размеров: от 50 до 1000 сантиметров. На бытовом уровне это ощущается как защита от ошибочного ввода. Если пользователь случайно ввел нереалистичный размер или перепутал единицы, сервис не даст продолжить молча и испортить весь проект. Для веб-инструмента такая проверка очень ценна, потому что она экономит время уже на первых шагах.
Построение плана помещения
Построение плана — это фундамент работы в ПлиткаБоте. Здесь программа не перегружает пользователя архитектурными инструментами, а сосредотачивается на том, что действительно влияет на раскладку плитки: контур комнаты, длина стен и расположение базовых элементов. Для типового ремонта ванной комнаты этого достаточно. Сложные архитектурные формы, безусловно, удобнее делать в другом классе программ, но для большей части реальных квартир именно такой уровень детализации и нужен.
Важно, что ПлиткаБот показывает план не как отвлеченную схему, а как рабочую основу под дальнейшую отделку. Когда пользователь смотрит на помещение сверху, он уже видит, где стоит дверь, как размещена душевая или ванна, где окажется раковина, сколько стены остается открытым под крупноформатную плитку, а где декор неизбежно будет резаться или скрываться сантехникой. Именно в этом и проявляется польза режима План: он помогает не только начертить комнату, но и заранее понять, на какие поверхности вообще имеет смысл делать ставку в визуальном акценте.
ПлиткаБот особенно хорош в тех случаях, когда помещение небольшое, а значит каждая ошибка в компоновке сразу заметна. В санузле на два-три квадратных метра даже несколько лишних сантиметров у душевой или слишком массивная тумба могут визуально сломать интерьер. Поэтому режим плана здесь не формальность, а рабочий инструмент. Сначала пользователь наводит порядок в геометрии, а уже потом смотрит раскладку плитки в ванной в 3D. Такой порядок действий в этой программе наиболее правильный.
Наполнение комнаты: сантехника и элементы помещения
После того как контур помещения готов, ПлиткаБот позволяет наполнить санузел базовой сантехникой. Это один из самых полезных этапов, потому что в реальном ремонте плитка никогда не существует сама по себе. Она всегда работает рядом с ванной, душевой, унитазом, инсталляцией, тумбой и стиральной машиной. Если не расставить эти объекты заранее, легко выбрать красивый, но неудачный дизайн.
Например, декоративная полоса или крупный активный рисунок могут идеально смотреться на голой стене, но после установки зеркала, тумбы и душевой стойки эффект меняется полностью. ПлиткаБот помогает увидеть это заранее. Добавляя в план Раковину с тумбой, Инсталляцию или Стиральную машину, пользователь сразу получает более честную картину будущего помещения. Для выбора облицовки это намного важнее, чем сверхдетализированная мебельная библиотека.
Отдельный плюс — наличие как стандартной Ванной, так и Угловой ванной, а также душевых кабин. Это значит, что ПлиткаБот подходит не только для классической прямоугольной компоновки, но и для более характерных сценариев, когда ванная маленькая, форма помещения неудобная, а заказчик выбирает между ванной и душевой. Именно в таких случаях предварительная 3D раскладка плитки особенно полезна: она показывает, как меняется характер помещения от одного лишь сценария наполнения.
Подбор плитки по брендам, коллекциям и дизайнам
Самая прикладная часть ПлиткаБота начинается там, где пользователь переходит к выбору облицовки. Программа выстраивает этот процесс по понятной и профессионально правильной цепочке: бренд → коллекция → дизайн. С точки зрения ремонта это намного разумнее, чем работа только по цветам или абстрактным паттернам. Пользователь сразу остается в поле реального ассортимента.
Каталог у ПлиткаБота внушительный. В нем заявлены 885 коллекций плитки и 20607 классических и современных дизайнов, а среди брендов присутствуют крупные и хорошо узнаваемые для российского рынка производители. Это означает, что сервис закрывает не только базовые потребности в стиле светлая плитка под мрамор, но и вполне прикладной подбор: когда пользователь уже знает нужный бренд или хотя бы круг предпочтительных производителей.
Практическая ценность здесь в том, что ПлиткаБот позволяет смотреть не только на единичную плитку, но и на готовые варианты сочетаний в рамках коллекции. Это снимает часть нагрузки с пользователя. Не приходится вручную собирать композицию из основы, акцента и декора на пустом месте. Программа уже предлагает дизайн, а задача пользователя — оценить, подходит ли этот сценарий его ванной по размерам, насыщенности и бюджету. Для массового ремонта это один из самых разумных способов подбора плитки для стен и пола.
Еще один важный нюанс: поскольку ПлиткаБот ориентирован именно на санузлы, каталог дизайнов подан не в виде бессвязных карточек, а через интерьеры ванной комнаты. Это означает, что пользователь видит не кусок текстуры, а уже собранную сцену с сантехникой и привычной компоновкой. Для восприятия это намного сильнее. Когда человек выбирает отделку для своей квартиры, ему важнее увидеть, как эта плитка смотрится в реальном объеме ванной, чем разглядывать отдельный квадрат текстуры.
Как ПлиткаБот показывает раскладку плитки
ПлиткаБот удобен тем, что не пытается перегрузить пользователя профессиональными терминами укладки, а показывает результат в понятной форме. Пользователь выбирает коллекцию и дизайн, а программа демонстрирует, как эти материалы выглядят в собранной ванной комнате. В бытовом ремонте именно это и нужно чаще всего: не техническая карта для плиточника на первом шаге, а возможность заранее увидеть, как интерьер будет восприниматься целиком.
Визуально ПлиткаБот сильнее всего работает в трех сценариях. Первый — когда нужно понять, не слишком ли тяжелая темная плитка для небольшого санузла. Второй — когда выбирается декоративная полоса, мозаичный акцент или контрастная стена. Третий — когда пользователь сомневается между спокойным низом-верхом и более активной раскладкой с декорами. Именно здесь визуализация плитки в санузле позволяет принять решение быстрее, чем десятки образцов на витрине.
Ниже — пример того, как ПлиткаБот показывает помещение в 3D. На таком экране уже видно не только саму плитку, но и то, как она работает с зеркалом, тумбой, дверью и общей геометрией небольшого санузла. Для предварительного выбора дизайна этого уровня детализации вполне достаточно.

Расчет материалов и стоимости
Одна из причин, почему ПлиткаБот воспринимается не как игрушка, а как рабочий инструмент, — наличие расчета количества и стоимости материалов. На стартовой странице программа прямо заявляет, что считает количество и стоимость материалов, а в блоке отправки предлагает передать проект для уточнения наличия и стоимости. То есть цепочка доведена до практического результата: пользователь может не только выбрать внешний вид, но и подойти к покупке плитки осмысленно.
Для бытового ремонта это очень важный момент. Ошибка в оценке площади облицовки, количества плитки или общей суммы быстро превращает красивый проект в неприятный перерасход. ПлиткаБот снижает этот риск уже на раннем этапе. Когда человек видит проект ванной комнаты онлайн и одновременно получает ориентир по материалам, решение становится гораздо более предметным. Это особенно удобно при сравнении нескольких коллекций: можно смотреть не только на визуальный эффект, но и на разницу по бюджету.
Отправка проекта, корзина и связка с магазином
Очень сильный для ПлиткаБота сценарий — это отправка проекта в магазин или продавцу. Программа не оставляет пользователя один на один с картинкой. После выбора дизайна можно нажать Отправить, и сервис передаст проект вместе с выбранными брендами, коллекциями, дизайнами, размерами помещения и сантехникой. В специальном режиме продавец получает ссылку, по которой видит все, что уже подготовил покупатель.
Это значит, что ПлиткаБот работает не только как программа для раскладки плитки, но и как средство предварительной квалификации заказа. Пользователь приходит к менеджеру не с фразой хочу что-то серое под камень, а с готовым набором решений. Для продавца это экономия времени, для покупателя — более быстрый переход к реальному расчету и подтверждению наличия. В контексте рынка плитки это очень сильный сценарий.
Ниже — скриншот окна корзины и отправки проекта. В нем хорошо видно, как ПлиткаБот собирает выбранные дизайны, показывает поле для телефона и кнопку Отправить. Это уже не декоративная часть интерфейса, а вполне прикладной рабочий механизм.

Экспорт 3D-модели и заказ дополнительного рендера
Если стандартной визуализации в ПлиткаБоте недостаточно, программа предлагает два направления продолжения работы. Первое — экспорт модели через glTF и Collada. Второе — заказ отдельного рендера в фотографическом качестве с круговым обзором 360°.
Экспорт особенно полезен для тех, кто хочет использовать ПлиткаБот как быстрый старт проекта. Санузел уже собран, плитка выбрана, базовая композиция понятна — дальше модель можно открыть в Blender, SketchUp или другом совместимом софте и доработать там детали, которые выходят за рамки самого сервиса. Для частного пользователя это приятный бонус, а для дизайнера — способ не начинать все с нуля.
Рендер 360° — другой сценарий. Он нужен тогда, когда обычного интерактивного просмотра уже мало и хочется получить более убедительную картинку. В интерфейсе ПлиткаБота для этого предусмотрен отдельный блок с кнопками Посмотреть пример и Заказать рендер, а также указанием времени расчета и стоимости. Такой вариант особенно полезен в спорных случаях, когда проект нужно согласовать с другим человеком и хочется показать ванную комнату максимально наглядно.
Пошаговый сценарий: как сделать проект ванной в ПлиткаБоте
Теперь — не общими словами, а по шагам.
Шаг 1. Открыть ПлиткаБот и выбрать сценарий старта
Если нужно быстро понять логику сервиса, сначала стоит нажать Пример комнаты. Если задача практическая и размеры уже известны, правильнее сразу выбирать Нарисовать комнату. Для реального ремонта это экономит время: не придется перескакивать из демо в свой проект позже.
Шаг 2. Перейти в режим Схема
Дальше логично перейти в Схема. Здесь закладывается геометрия санузла. На этом этапе не нужно думать о декорах и коллекциях — важно сначала получить корректный контур помещения. ПлиткаБот сам подсказывает, что схема должна быть замкнутой, а размеры стен — заданными.
Шаг 3. Нарисовать помещение и проверить габариты
После построения контура стоит сразу перепроверить длины стен и общее ощущение от плана. В маленькой ванной даже один неверный размер способен потом испортить восприятие плитки. На этом шаге ПлиткаБот выполняет свою главную техническую функцию: дает пользователю основу, от которой дальше зависит вся раскладка.
Шаг 4. Добавить дверь и сантехнику
Следующий шаг — расставить Дверь, Ванную или Душевую кабину, затем Унитаз, Раковину или Раковину с тумбой, при необходимости Инсталляцию и Стиральную машину. Именно после этого интерьер перестает быть абстрактной коробкой и становится похож на реальную ванную комнату. В ПлиткаБоте это ключевой переход: плитка начинает оцениваться в контексте.
Шаг 5. Выбрать бренд
Теперь можно переходить к блоку Бренд. На этом этапе пользователь отсеивает лишнее и остается в поле тех производителей, которые ему подходят по стилю, цене или наличию в конкретном магазине. Для тех, кто уже выбрал магазин или производителя, это один из самых удобных моментов в программе.
Шаг 6. Выбрать коллекцию
После бренда открывается логика подбора через Коллекция. Здесь ПлиткаБот начинает работать именно как инструмент выбора облицовки, а не просто как визуализатор ванной. Пользователь может сравнивать характер коллекций: спокойные решения под камень, более выразительные текстуры, варианты под бетон, дерево или мрамор.
Шаг 7. Выбрать дизайн
В блоке Дизайн начинается самое интересное. Пользователь уже не просто выбирает плитку, а смотрит на готовый сценарий раскладки в ванной. Здесь удобно сравнивать, насколько интерьеру идет активный декор, нужна ли контрастная стена, стоит ли оставлять спокойную основу без сложных акцентов, подходит ли низ-верх именно для этой геометрии. В этом месте ПлиткаБот экономит больше всего времени.
Шаг 8. Переключиться в План 3D
После выбора дизайна нужно перейти в План 3D. На этом этапе лучше уже не смотреть только на плитку, а оценивать весь интерьер целиком: высоту акцента, ширину бордюра, поведение темного пола, соотношение активных и спокойных стен, визуальный вес сантехники и мебели. Именно здесь становится понятно, удачен проект или нет.
Шаг 9. Отобрать лучший вариант в Избранное
Если подходящих решений несколько, стоит использовать Избранное. Это избавляет от хаотичного перебора. Для выбора плитки такой режим сравнения особенно удобен, потому что в реальности пользователь почти всегда колеблется между двумя-тремя стилями, а не останавливается на первом попавшемся варианте.
Шаг 10. Отправить проект или экспортировать его
Когда решение найдено, остается перейти к практическому выходу: либо нажать Отправить и передать проект для уточнения стоимости, либо использовать Скачать glTF / Скачать Collada, если модель нужна дальше в другом софте. В этом месте ПлиткаБот превращает выбор дизайна в рабочий результат.
Ниже — еще один скриншот проекта ПлиткаБота в 3D. Он хорошо показывает, как программа работает с готовой композицией помещения: плитка, сантехника, тумба, зеркало, дверь и напольное покрытие читаются сразу как единый интерьер.

Насколько удобно работать в ПлиткаБоте
С точки зрения повседневного использования ПлиткаБот силен своей предсказуемостью. Пользователь почти всегда понимает, что делать дальше: сначала план, потом наполнение, затем выбор бренда, коллекции и дизайна, после чего просмотр в 3D и отправка проекта. У многих онлайн-сервисов проблема в том, что они либо слишком примитивны, либо, наоборот, прячут важные функции глубоко в меню. У ПлиткаБота этого нет — основная логика лежит на поверхности.
Удобство усиливается тем, что ПлиткаБот работает именно на языке задачи. Здесь нет нейтральных объектов, а есть конкретные кнопки вроде Ванная, Унитаз, Инсталляция, Раковина с тумбой. Нет расплывчатого материал стены, а есть Бренд, Коллекция, Дизайн. Для пользователя, который пришел подобрать плитку для ванной, это гораздо понятнее, чем универсальная терминология интерьерных редакторов.
Еще один плюс — быстрое переключение между плоскостью и объемом. В ПлиткаБоте не приходится выбирать, что важнее: точный план или картинка. Программа дает и то и другое через соседние режимы. Такая связка особенно полезна, когда пользователь сначала правит размеры или расположение сантехники, а потом сразу проверяет, что изменилось визуально. Для небольших санузлов этот режим работы очень удобен.
Ограничения программы
При всех достоинствах у ПлиткаБота есть и естественные рамки. Первая и главная — это узкая специализация. Программа сделана вокруг ванной комнаты и санузла, а не вокруг полноценного интерьерного проектирования квартиры. Это не недостаток как таковой, а осознанный профиль. Но если пользователю нужно одновременно проектировать кухню, прихожую, спальню и сложную мебельную композицию, ПлиткаБот не является основным инструментом для такого сценария.
Вторая рамка — библиотека объектов закрывает базовые, а не дизайнерски избыточные потребности. Этого хватает для выбора плитки, но сервис не пытается заменить полноценную интерьерную библиотеку с сотнями раковин, смесителей, пеналов, душевых ограждений и предметов декора. Для подбора отделки это нормально, но для глубокой стилистической проработки помещения уже хочется более широкого инструментария.
Третья особенность связана с самой природой программы. ПлиткаБот показывает готовые дизайны и интерьеры ванной комнаты в логике сервиса, а не превращает пользователя в проектировщика, который вручную задает каждую подрезку, каждый тип шва и каждую сложную зону облицовки. В большинстве бытовых сценариев это плюс, потому что программа остается легкой. Но если задача — подготовить очень детальную техническую схему для мастера с нестандартной геометрией и большим числом конструктивных нюансов, понадобится более тяжелый класс решений.
Сравнение с аналогами
ПлиткаБот часто попадает в один ряд с SanViz, Ceramic 3D, Кафель и Planner 5D, но на самом деле эти продукты решают задачи разной глубины. SanViz тоже сосредоточен на 3D-раскладке плитки и продажах, Ceramic 3D и Кафель сильнее в профессиональной работе с более сложной геометрией и точным расчетом, а Planner 5D — это более широкий интерьерный планировщик, где ванная комната лишь один из сценариев. Поэтому сравнивать их нужно не по принципу что лучше вообще, а по принципу что лучше для конкретной задачи.
SanViz
SanViz, как и ПлиткаБот, стоит очень близко к реальной продаже плитки. Он тоже подается как сервис 3D-раскладки плитки, используется в терминалах, на ПК, на сайтах и ориентирован на самостоятельное создание дизайн-проекта покупателем. При этом SanViz делает сильный акцент на простоте и скорости: на сайте прямо говорится о создании проекта за 1 минуту и освоении за 3 минуты. ПлиткаБот работает в том же поле — быстрое создание проекта и передача результата продавцу, — но выглядит более сфокусированным именно на связке бренд / коллекция / дизайн и на простом сценарии выбора конкретного оформления ванной.
На практике разница ощущается так: если нужен очень быстрый инструмент для вовлечения покупателя в магазине или на сайте продавца, SanViz и ПлиткаБот оба подходят, но ПлиткаБот воспринимается более прямолинейным для конечного пользователя, который пришел именно выбрать плитку в санузел и увидеть интерьер. SanViz традиционно силен как розничный инструмент, а ПлиткаБот лучше ощущается как легкий онлайн-сервис для плитки, где проще стартовать без длительного привыкания.
Ceramic 3D
Ceramic 3D — это уже другой весовой класс. Продукт позиционируется как IT-система для проектных продаж, а в версиях Ceramic 3D Web указывается возможность строить помещения любой формы, выкладывать выбранную плитку, расставлять сантехнику и мебель, получать развертки всех плоскостей, 3D-визуализацию и расчет необходимого количества плитки. На фоне этого ПлиткаБот выглядит заметно легче и проще.
Именно поэтому между ними нет прямой конкуренции в лоб. Если нужен быстрый подбор плитки, понятная 3D-визуализация, простая схема помещения и связь с продажей, ПлиткаБот удобнее как стартовый инструмент. Если же задача — проектные продажи в магазине, помещения любой формы, более сложные сценарии отделки и профессиональная глубина проработки, Ceramic 3D объективно мощнее. Проще говоря, ПлиткаБот выигрывает в легкости входа, а Ceramic 3D — в глубине и профессиональном охвате.
Кафель (Tile3D)
Программа Кафель описывается как профессиональное решение для розничной продажи плитки, отделочных работ и дизайна интерьеров. Важный акцент у нее сделан на том, что она позволяет оперативно создать реалистичный 3D-проект с раскладками плитки любой геометрии и сложности, с полным набором интерьерных деталей и выполнить точный расчет количества покрытий. Здесь снова видно главное отличие от ПлиткаБота: Кафель гораздо ближе к профессиональному расчетно-проектному инструменту.
Для обычного пользователя это означает следующее. Если нужен понятный сервис, чтобы быстро подобрать плитку в ванную, без погружения в профессиональный софт, ПлиткаБот удобнее. Если задача — работать со сложной геометрией, большим числом интерьерных деталей и расчетом на профессиональном уровне, Кафель дает более мощную платформу. ПлиткаБот в этом сравнении выигрывает по скорости старта и простоте сценария, а Кафель — по инженерной глубине.
Planner 5D
Planner 5D — это не плиточный сервис в узком смысле, а большой кроссплатформенный планировщик интерьера. Он предлагает 3D-проектирование, библиотеку более чем из 8000 предметов, 4K-рендеринг, список покупок, работу на разных платформах и отдельный планировщик ванной. На фоне ПлиткаБота это решение гораздо шире по охвату: оно подходит для квартиры и дома в целом, а не только для санузла.
Но именно здесь у ПлиткаБота появляется свое преимущество. Planner 5D хорош, когда пользователь продумывает интерьер в целом, мебель, свет, декоративные сценарии и общую композицию дома. ПлиткаБот же сильнее там, где нужен конкретный подбор плитки для ванной, привязка к брендам и коллекциям, а также быстрое движение от визуализации к расчету и отправке проекта. То есть Planner 5D удобнее как широкий интерьерный инструмент, а ПлиткаБот — как специализированная программа для облицовки санузла.
Где ПлиткаБот выглядит сильнее аналогов
ПлиткаБот особенно хорош в следующих сценариях:
-
нужен быстрый проект ванной комнаты онлайн без установки сложного ПО;
-
важен выбор не абстрактной текстуры, а конкретной коллекции;
-
нужно сразу увидеть дизайн в контексте ванной и санузла;
-
проект должен быстро перейти к расчету и запросу стоимости;
-
хочется экспортировать базовую 3D-модель в другой софт, не рисуя все с нуля.
Где аналоги объективно сильнее
У конкурентов есть и свои зоны превосходства:
-
SanViz сильнее в формате терминального и розничного внедрения с акцентом на предельную простоту;
-
Ceramic 3D сильнее в профессиональных проектных продажах и сложной геометрии;
-
Кафель сильнее как инструмент для сложных раскладок и точного расчета покрытий;
-
Planner 5D сильнее как универсальный интерьерный планировщик с большой библиотекой объектов и широким охватом помещений.
Для кого ПлиткаБот подходит лучше всего
В первую очередь ПлиткаБот подходит обычному пользователю, который готовится к ремонту ванной и хочет заранее понять, как будет выглядеть облицовка. Для такого сценария программа почти идеальна: не нужно долго осваивать профессиональный софт, при этом можно получить и план, и 3D-план ванной, и реальную коллекцию плитки, и ориентир по стоимости.
Второй очевидный пользователь — менеджер салона плитки или продавец, который хочет, чтобы клиент пришел уже с предварительно собранным запросом. Возможность отправки проекта с размерами помещения, сантехникой, брендами, коллекциями и дизайнами делает ПлиткаБот сильным инструментом предпродажи. Чем лучше покупатель понимает, что ему нужно, тем быстрее разговор переходит к заказу.
Третий сценарий — дизайнер или мастер, которому нужен быстрый черновой подбор плитки для согласования идеи. ПлиткаБот не заменит тяжелые профессиональные системы там, где нужна предельная детализация, но как быстрый старт, чтобы обсудить стилистику, направление коллекции и общее впечатление от ванной, он подходит очень хорошо. Особенно полезен экспорт в glTF и Collada, если потом проект планируется развивать дальше.
Плюсы ПлиткаБота
-
узкая и очень практичная специализация на ванных комнатах и санузлах;
-
понятный интерфейс с логикой схема → план → 3D → отправка;
-
работа с брендами, коллекциями и готовыми дизайнами, а не с безымянными текстурами;
-
наличие базовой библиотеки сантехники, достаточной для большинства бытовых проектов;
-
расчет количества и стоимости материалов;
-
экспорт 3D-модели в glTF и Collada;
-
возможность отправить проект для уточнения наличия и стоимости;
-
отдельный заказ фотореалистичного рендера 360°.
Минусы ПлиткаБота
-
программа ориентирована именно на санузлы и не претендует на роль полного интерьерного планировщика квартиры;
-
библиотека объектов закрывает основные сантехнические сценарии, но не дает ширины крупного интерьерного редактора;
-
для очень сложных помещений и предельно детальной профессиональной раскладки возможностей сервиса уже может не хватить;
-
в сравнении с Ceramic 3D и Кафель ПлиткаБот менее глубок как профессиональный проектный инструмент.
Итог
ПлиткаБот — удачная и очень практичная программа для тех, кому нужен дизайн ванной, раскладка плитки в ванной и быстрый переход от идеи к реальному подбору материала. Она сильна не тем, что умеет всё, а тем, что хорошо делает главное: помогает нарисовать санузел по размерам, добавить базовую сантехнику, выбрать реальную коллекцию, посмотреть интерьер в 3D, посчитать материалы и отправить проект дальше по цепочке покупки.
Если нужен специализированный онлайн-сервис именно под плитку и именно под ванную комнату, ПлиткаБот попадает в задачу очень точно. Для выбора коллекции, сравнения дизайнов, предварительного расчета и обсуждения проекта с продавцом это один из самых удобных форматов. А если после этого понадобится более глубокая доработка, программа уже дает хороший старт через экспорт модели и понятную визуальную базу проекта.