Envisioneer Express — это не абстрактная программа для 3D-планировки, а вполне конкретный инструмент внутри экосистемы Cadsoft. Его сильная сторона не в том, что он пытается заменить тяжелые BIM-пакеты, а в том, что он быстро открывает проект Envisioneer, показывает его в 2D и 3D, позволяет двигать мебель, менять материалы, оставлять пометки и использовать модель как рабочую основу для согласования интерьера, планировки и визуальной концепции. В этом и состоит его реальная ниша: не бесконечное черчение ради черчения, а понятный просмотр, легкая корректировка и наглядная демонстрация проекта дома или интерьера.
Что представляет собой Envisioneer Express
Envisioneer Express построен вокруг формата .bld и логики открыть модель — посмотреть — уточнить — согласовать. Программа работает как viewer и markup-среда для проектов Envisioneer: открывает модель, показывает ее в плоском плане и в объемном виде, дает переставлять мебель, менять материалы отделки, добавлять заметки на план и использовать тот же проект как основу для презентации заказчику или для собственной проверки решения перед ремонтом. Это делает Envisioneer Express особенно уместным в тех случаях, когда основная работа уже сосредоточена в модели, а пользователю нужен не CAD-монстр, а понятный инструмент для работы с готовым домом, комнатой или интерьерной сценой.
Ключевой момент, который определяет весь характер программы: Envisioneer Express стартует как полноценная дизайн-среда на тестовый период, а затем остается в сценарии viewer/markup. Именно поэтому программа одновременно умеет две разные роли. Первая — быстрый вход в проектирование с классическими командами вставки стен, дверей, окон, проемов и крыши. Вторая — долгосрочная и более практичная: открыть существующую модель, оценить комнаты, пройтись по сцене, уточнить мебельную схему, подобрать материалы и отметить правки без необходимости держать под рукой старшие продукты линейки.
В результате Envisioneer Express лучше всего понимать не как облегченную игрушку и не как полноценный BIM без компромиссов, а как настольный домашний и полупрофессиональный инструмент для просмотра, согласования и базовой правки жилых моделей. В этом качестве он работает очень логично: проект в формате Envisioneer открывается без лишних конвертаций, интерфейс сразу предлагает 2D и 3D-сценарий, а сама модель остается живой — с мебелью, поверхностями, камерами и навигацией по пространству.
Скачать Envisioneer Express
- Планировка дома
- Русский интерфейс
- Просто для новичков
- Ограниченные функции
- Старый интерфейс
- Редкие обновления
Для каких задач Envisioneer Express подходит лучше всего
Практический смысл Envisioneer Express раскрывается не в общих лозунгах, а в конкретных задачах. Эта программа хорошо справляется, когда нужно:
-
открыть готовый проект дома или квартиры в формате Envisioneer;
-
просмотреть планировку в 2D и объемную сцену в 3D;
-
проверить, как читается расстановка мебели по комнатам;
-
поменять отделочные материалы и цветовые решения;
-
быстро понять, работает ли тот или иной интерьерный сценарий;
-
сделать пометки по проекту перед согласованием;
-
показать будущий интерьер или планировку не только на плане, но и с уровня человеческого взгляда;
-
вывести модель в VR/360-сценарий, если нужен более наглядный просмотр пространства.
Для пользователя это означает простую вещь: Envisioneer Express полезен там, где проект уже должен говорить картинкой. Если нужен именно просмотр дома, а не только линия стен на плане, программа попадает в цель. Когда требуется быстро проверить, не упирается ли диван в проход, достаточно ли воздуха в спальне, не спорит ли цвет пола с мебелью и как вообще читается интерьер из перспективы, Express дает это без длительной подготовки сцены.
Кому программа подходит, а кому быстро станет тесно
Envisioneer Express особенно удобен для четырех типов пользователей. Первый — человек, который получил проект от дизайнера или проектировщика и хочет не только открыть файл, но и реально разобраться, как выглядит его будущий дом. Второй — заказчик ремонта, которому нужен инструмент для спокойного согласования материалов, мебели и компоновки комнат. Третий — подрядчик, продавец или консультант, который хочет быстро показать клиенту пространство в 3D без долгой подготовки демонстрации. Четвертый — начинающий пользователь, который предпочитает настольную программу с понятной логикой каталог — вставка — 2D — 3D.
Но есть и обратная сторона. Если задача заключается в полном цикле рабочей документации, серьезной строительной деталировке или сметной части, Envisioneer Express — не тот продукт, на который стоит делать ставку как на основную систему. Внутри семейства Cadsoft такие сценарии вынесены в старшие решения: одна ступень отвечает за моделирование, следующая добавляет полноценные working drawings, следующая — estimating. Поэтому Express нужно оценивать трезво: это сильный инструмент просмотра, согласования и базовой правки, а не универсальная строительная платформа без ограничений.
Запуск программы и первые минуты работы
При первом знакомстве Envisioneer Express производит типичное впечатление классической Windows-программы для проектирования: без модных облачных панелей и без перегруженного ленточного интерфейса. Это старый добротный настольный подход, где основные команды лежат в верхнем меню, панели инструментов видны сразу, а каталог объектов размещен отдельно и не смешивается с рабочим полем. За счет этого новичок довольно быстро понимает, где он открывает проект, где строит, где переключает режим просмотра и где редактирует объект. Это не ультрасовременный UI, но в работе он часто оказывается даже удобнее многих визуально красивых, но менее прямолинейных приложений.
Стартовое окно в программе предельно прикладное. В нем сразу видны команды Create New и Open Existing, а рядом — быстрый вход к справочным и обучающим материалам. Это правильный сценарий старта: новая модель создается без лишних мастеров на первом экране, а готовый проект открывается в один шаг. Для программы такого класса это важнее любых декоративных элементов, потому что пользователь приходит сюда либо начать черновой план, либо продолжить уже существующий .bld-проект.

Если смотреть на программу с практической стороны, логика запуска здесь выстроена правильно. Create New нужен, когда хочется быстро набросать собственную планировку, попробовать компоновку помещений или построить простую оболочку дома. Open Existing — более характерный путь для Express: открыть уже сделанный проект, оценить комнаты, пройтись по сцене, внести визуальные или мебельные коррективы, поставить заметки. Важно и то, что в программе есть установочные sample-модели: это удобный способ быстро понять, как в ней устроены каталог, камеры, отображение материалов и 3D-навигация, еще до того как пользователь начнет работать со своей схемой.
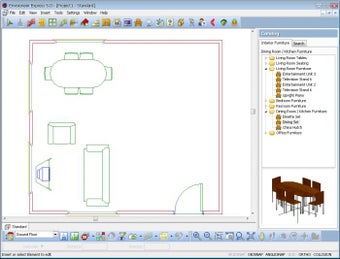
Интерфейс Envisioneer Express
С точки зрения структуры интерфейса Envisioneer Express очень последователен. Наверху находится классическая строка меню с блоками File, Edit, View, Insert, Tools, Settings, Window, Help. Ниже расположены панели инструментов с быстрыми кнопками вставки и управления видом. Справа обычно находится Catalog panel, где лежат типы стен, двери, окна, мебель, сантехника и прочие элементы. Центральная часть экрана отдана чертежу или 3D-виду. Внизу видны переключения 2D/3D, текущий этаж, а также элементы навигации и режимы привязок. Это интерфейс, в котором почти все видно сразу, а это для домашнего и обзорного проектирования важнее, чем любая внешняя красота.
Отдельно стоит отметить логику каталога. В Envisioneer Express каталог не выглядит как хаотическая свалка объектов. Он разбит на группы и подгруппы: у мебели есть тематические разделы по помещениям, у стен — отдельные папки типов, у окон и дверей — свои библиотеки форматов. Когда выбран режим вставки, нужный объект или тип элемента подхватывается именно из Catalog panel. Это сразу дисциплинирует работу: пользователь не рисует абстрактную дверь, а выбирает конкретный тип, после чего вставляет его в стену. Такой подход заметно ближе к предметному проектированию, чем просто рисование линий и прямоугольников.
Еще одна сильная сторона интерфейса — читаемое разделение между геометрией и просмотром. Команды построения сосредоточены там, где пользователь их ожидает: Insert и Building toolbar. Управление видом сосредоточено во View и на панелях навигации. Благодаря этому Envisioneer Express удобно использовать даже в длинной сессии: строишь в одном логическом блоке, смотришь результат — в другом, а переключение между ними не требует ломать рабочую привычку.
Как в программе организована работа над проектом
В Envisioneer Express все держится на последовательности действий. Сначала пользователь работает в плане: задает оболочку, вставляет стены, подбирает окна и двери, формирует комнаты. Затем в ту же модель добавляются мебель, материалы, элементы интерьера. После этого сцена без отдельной пересборки открывается в 3D. Такой маршрут важен: программа не заставляет сначала строить абстрактную 3D-коробку, а начинает с логики обычного жилого плана, что делает ее понятной для человека, который мыслит комнатами, проходами, мебелью и проемами, а не полигональным моделированием.
Главное ощущение от работы — модель остается связанной. Если дверь вставляется в стену, она не просто кладется сверху поверх линии, а становится частью стены. Если выбирается окно, программа понимает, что это оконный элемент, а не просто картинка. Если пользователь переключается в 3D, он не рисует заново, а видит ту же самую планировку в объемном пространстве. Для жилого проектирования и интерьерных согласований это очень ценно: меньше случайных разрывов между планом и картинкой, меньше ручной рутины, выше доверие к результату.
Построение стен и базовой планировки
В режиме полноценного проектирования Envisioneer Express использует понятный набор архитектурных команд. Построение стен запускается через Insert > Walls или кнопкой Walls на Building toolbar. Дальше тип стены выбирается в Catalog panel. В практической работе это удобно: сначала задается не просто линия, а именно вид стены, затем курсором последовательно отмечаются точки ее построения. Для внутренних стен можно выбрать папку Interior Walls и конкретный тип, после чего вставить стену между уже существующими наружными стенами.
Хорошо реализован и сам характер вставки. Внутренняя стена не висит отдельно, а автоматически формирует корректные пересечения с наружными стенами. Для жилой планировки это важнее, чем кажется: пользователь сразу видит не набор независимых штрихов, а цельную схему помещения. Именно поэтому Envisioneer Express подходит для быстрой проработки комнат — спальни, кухни, гостиной, санузла — без ощущения, что каждую границу придется потом вручную доводить до рабочего состояния.
На практике работа со стенами в Envisioneer Express воспринимается как собрать каркас пространства. Ты не борешься с линиями, а сразу закладываешь архитектурный смысл: внешняя оболочка, внутренние перегородки, дверные проемы, оконные участки, логика комнат. Для домашнего проекта это дает очень правильный результат: планировка сразу начинает выглядеть как дом, а не как схемка из геометрических примитивов.
Двери, окна и проемы: одна из самых сильных сторон программы
С дверями Envisioneer Express работает именно так, как и должен работать хороший домашний архитектурный редактор. Команда запускается через Insert > Doors или кнопкой Doors на Building toolbar. После этого в каталоге выбирается конкретная дверь — например, обычная распашная из раздела Hinged или входная модель из Entry. Выбранный элемент прилипает к курсору и вставляется прямо в стену. Во время позиционирования программа показывает бегущие размеры по обе стороны, а сама дверь подстраивается под стену как интеллектуальный элемент.
Это принципиально отличает Envisioneer Express от слишком упрощенных планировщиков. Здесь дверь — не декоративный знак на плане, а объект, который становится частью стены и при этом редактируется отдельно от нее. Если направление открывания не совпадает с замыслом, долго переделывать ничего не нужно: достаточно выделить дверь, вызвать контекстное меню и использовать команду Flip Swing. Для реальной планировочной работы это очень полезно, потому что эргономика входов и проходов в жилом пространстве зависит не только от ширины дверей, но и от того, куда они раскрываются.
С окнами логика такая же аккуратная. Команда вызывается через Insert > Windows или кнопкой Windows на Building toolbar, после чего в каталоге выбирается нужный тип окна. Один из самых полезных приемов — команда Center on wall, доступная через правый клик. Она автоматически центрирует окно в стене и снимает лишнюю ручную возню. В реальной работе это экономит массу времени, особенно когда нужно быстро расставить несколько одинаковых окон и получить аккуратный фасадный ритм без подгонки на глаз.
Проемы вставляются через Insert > Openings или кнопку Openings на Building toolbar. Здесь программа ведет себя так же разумно, как и с дверями: выбранный проем встраивается в стену, получает свои размеры, может центрироваться по стене и редактироваться независимо. Для интерьерного сценария это очень полезно, когда нужно показать широкий проход между кухней и гостиной, сделать арочный переход или просто понять, как будет работать открытая связь между комнатами.
В сумме блок стен, дверей, окон и проемов — это та часть Envisioneer Express, где особенно хорошо видно его архитектурное происхождение. Программа мыслит не картинками, а элементами здания. Именно поэтому даже простой проект в ней быстро начинает выглядеть убедительно: стены чисто стыкуются, проемы занимают свое место, дверь имеет сторону открывания, окно живет внутри стены, а не поверх нее.
Автоматическая крыша и завершение оболочки дома
После того как базовый контур готов, Envisioneer Express позволяет быстро завершить объем через автоматическую крышу. Для этого используется команда Insert > Roof by Perimeter или кнопка Roof by Perimeter на Building toolbar. В каталоге выбирается тип крыши, после чего достаточно щелкнуть внутри модели — и крыша строится автоматически по периметру. Для черновой проработки дома это очень сильный ход: не нужно вручную собирать каждую плоскость, чтобы получить завершенную форму здания.
Именно на таких командах становится понятно, почему Envisioneer Express приятен в домашних проектах. Он не заставляет пользователя тратить половину сессии на технический ритуал. Если задача — быстро увидеть объем дома, проверить силуэт, понять, как читается общая композиция, автоматическая крыша делает это почти мгновенно. Да, для сложной архитектуры могут понадобиться более продвинутые инструменты старших продуктов, но для частного дома, пристройки, базовой коробки и визуальной проверки этот механизм работает очень по делу.
Каталог мебели и предметное наполнение интерьера
Envisioneer Express хорошо раскрывается именно после того, как оболочка дома уже намечена. Дальше в дело вступает мебельный и интерьерный каталог. Справа в интерфейсе видно, что объекты разбиты по группам: гостиная, спальня, столовая, кабинет и другие категории. Внутри этих групп находятся конкретные предметы — столы, кресла, кровати, диваны и прочие элементы обстановки. Это не случайная библиотека для красоты, а рабочий инструмент, который позволяет быстро превратить пустые комнаты в читаемое жилое пространство.
В реальной работе мебель в Envisioneer Express особенно полезна не для декоративного насыщения, а для проверки сценариев. Поставить кровать в спальню — значит сразу увидеть, остается ли удобный подход. Переместить диван в гостиной — значит понять, как работает ось просмотра и достаточно ли места перед ним. Разместить столовую группу — значит проверить проходы вокруг нее. Программа прямо подталкивает к этому типу мышления: не накидать предметы, а проверить, насколько пространство действительно пригодно для жизни.
Дополнительный плюс в том, что расстановка мебели не запирается в 2D. После переключения в 3D та же композиция начинает читаться объемно: видно высоту предметов, отношение мебели к окнам, общую плотность наполнения комнаты. Для заказчика или владельца квартиры такой переход особенно ценен. На плане можно не почувствовать тесноту, а в 3D она сразу заметна. Именно поэтому Envisioneer Express силен как программа для перепланировки и интерьерной проверки: в ней легко отследить, когда планировка на бумаге выглядит нормально, а в перспективе становится неудобной.

Материалы, отделка и персонализация пространства
Одна из самых полезных функций Envisioneer Express — быстрая замена материалов. Программа позволяет менять поверхности и цветовые решения прямо внутри модели. Это особенно важно в тех случаях, когда форма помещения уже понятна, а основной вопрос звучит так: как это будет смотреться в жизни? Смена покрытия пола, цвета стен, общей палитры комнаты или материала конкретного элемента сразу влияет на восприятие сцены в 3D и делает согласование не абстрактным, а предметным.
Для пользователя это означает, что Envisioneer Express — не просто viewer планов, а рабочий инструмент декоративной проверки. Можно быстро перебрать несколько вариантов: светлый пол против темного, нейтральные стены против акцентных, более теплый материал против холодного. Такие операции особенно полезны в жилых интерьерах, где решение часто принимается не на основании чертежа, а на основании ощущения от пространства. И здесь программа работает именно как надо: форма и отделка остаются частью одной модели, а не живут в разных файлах и разных приложениях.
Важно и то, что замена материалов в Envisioneer Express напрямую связана с визуализацией. Чем лучше подобраны покрытия, тем убедительнее становится 3D-сцена, тем проще согласовать комнату с семьей, клиентом или подрядчиком. Для домашнего проектирования это сильнее, чем кажется. Большинство конфликтов по интерьеру начинается не из-за геометрии стен, а из-за того, что люди по-разному представляют цвет, фактуру и настроение пространства. Здесь программа дает общий визуальный язык.
2D-режим: где Envisioneer Express действительно удобен
Плоский план в Envisioneer Express — это не второстепенный вид, а основная рабочая среда. Именно в 2D быстрее всего задаются стены, расставляются двери и окна, проверяются связи между помещениями и корректируется мебельная схема. На плане проще держать под контролем расстояния, логику проходов, выравнивание и общий рисунок помещений. Для задач вроде перенести стол, поменять диван местами с тумбой, увидеть, куда открывается дверь 2D-вид остается самым быстрым.
Envisioneer Express не пытается превратить 2D в сухую инженерную графику. Даже на плане видно, что программа мыслит жилыми объектами: мебель читается как мебель, комнаты — как комнаты, а не как набор блоков. Это делает 2D-режим особенно полезным для человека без профессионального CAD-опыта. План остается информативным, но не становится враждебным. Поэтому Express уместен для частного пользователя куда лучше, чем многие тяжелые системы, где уже на первом экране человека встречают слои, стили линий и технические режимы, которые ему в бытовом ремонте просто не нужны.

3D-режим и навигация по модели
Переключение в объемный режим — одна из центральных функций Envisioneer Express. Программа позволяет быстро перейти в 3D через View > 3D Quick View или с помощью 3D Camera Views > 3D Perspective. Первый вариант нужен для быстрого взгляда на модель из заданного направления, второй — для полноценной перспективной камеры, которую можно использовать как рабочий инструмент осмотра пространства. Это очень правильное разделение: иногда нужен просто общий объем, а иногда — именно человеческая перспектива внутри комнаты.
В 3D-режиме важна не только сама картинка, но и способы передвижения. Envisioneer Express предлагает Walk Around и Fly Around. Первый инструмент имитирует перемещение внутри модели: вперед, назад, влево, вправо. Второй вращает камеру вокруг цели и помогает быстро осмотреть объект целиком. Если пользователь потерял ориентацию, есть Reset Camera. Это делает 3D-навигацию не декоративной, а по-настоящему рабочей. Пространство можно не просто посмотреть, а исследовать — понять высоты, тесноту, обзор, направление взгляда от входа, связь между комнатами.
Для домашней планировки такой режим особенно полезен. На 2D-плане комната может казаться нормальной, а в 3D сразу становится видно, что кровать забирает слишком много воздуха, обеденная группа перегружает проход или телевизионная зона выстроена неудачно. Envisioneer Express хорошо справляется именно с таким типом проверки — когда нужно не считать строительные узлы, а принять бытовое решение о том, комфортно ли будет в этом пространстве жить.
Программа также использует разные режимы отображения. Wireframe дает более технический, скелетный вид модели. Hidden Line полезен там, где нужен чистый контур без фактур. Rendered показывает текстуры и цвета поверхностей и превращает модель в более реалистичную сцену. Эти режимы важны не как формальность, а как быстрый способ переключать фокус. Иногда полезнее увидеть голую структуру дома, а иногда — наоборот, оценить материал пола, цвет стен и общее настроение интерьера.

Визуализация, свет, тени и ощущение от пространства
Envisioneer Express выигрывает не количеством спецэффектов, а тем, что визуализация у него напрямую связана с моделью. Программа умеет строить качественные изображения, опираясь на реальные источники света, тени и положение солнца. В модели можно задавать географическое положение и время суток, чтобы смотреть, как солнце и тень ложатся на дом и участок. Для частного дома это не пустая опция: ориентация по сторонам света, освещенность комнат и поведение фасада в разное время дня реально влияют на восприятие проекта.
Важная особенность Envisioneer Express в том, что фотореалистичность здесь не оторвана от практики. Свет, тени, отражения и сезонность нужны не для того, чтобы сделать красивый рекламный кадр любой ценой, а чтобы помочь лучше прочитать проект. Когда гостиная выглядит живой за счет света и фактуры пола, заказчик быстрее понимает, подходит ли ему это решение. Когда в 3D видно, как работает солнечный свет, легче обсуждать расстановку мебели, выбор штор или общее настроение комнаты. В этом смысле Envisioneer Express полезнее многих примитивных планировщиков, где 3D существует только для галочки.
VR и 360-просмотр
VR-сценарий в Envisioneer Express не выглядит лишним маркетинговым приложением. Программа дает понятный путь к панорамному просмотру: из 3D-камеры формируется Render Panoramic View, после чего изображение можно отправить в HomeViewVR и использовать как 360-сцену для просмотра и демонстрации. Это особенно полезно, когда обычной статичной картинки уже мало, а полноразмерный walkthrough хочется показать без сложной подготовки.
С практической стороны VR в Envisioneer Express ценен не тем, что это модно, а тем, что он снижает недопонимание. Плоский план требует воображения. Обычный рендер тоже остается внешним взглядом на проект. А панорамный или VR-просмотр переносит человека внутрь пространства. Для согласования кухни, спальни, зоны входа или гостиной это часто оказывается решающим аргументом: человек буквально видит, как он будет находиться в комнате, а не додумывает это по чертежу.
Пометки и согласование проекта
Envisioneer Express силен именно там, где проект надо обсуждать, а не только созерцать. Программа поддерживает сценарий markup: можно открывать модель, смотреть план и 3D-сцену, а затем добавлять заметки и пометки по месту. Это очень важная, но часто недооцененная функция. В реальной жизни проект редко проходит без правок. Идея взять проект, пройтись по нему, отметить спорные места, уточнить материалы и передать обратно работает быстрее, чем бесконечная переписка с описаниями вроде во второй комнате справа передвиньте диван ближе к окну.
Особенно хорошо это работает в домашних проектах, где решения принимаются не одним человеком. Один хочет темнее пол, другой — больше свободного места у прохода, третий — другую расстановку в спальне. Envisioneer Express позволяет обсуждать это на самой модели, а не на отвлеченных скриншотах. Поэтому как viewer для согласования программа попадает точно в потребность: файл открывается, комната смотрится, правки отмечаются, решения принимаются быстрее.
Печать и вывод материалов
Хотя главная сила Envisioneer Express — экранный просмотр и 3D-презентация, программа не забывает и про печать. Она умеет печатать проект в разных масштабах и выводить материалы на любой принтер, который работает через стандартный Windows-драйвер. Это важно для обычной практики ремонта и согласования: не каждый участник процесса будет смотреть модель на компьютере или в VR, а распечатанный план все еще нужен очень часто — для обсуждения с мастерами, для сверки мебели, для быстрых заметок от руки.
Насколько программа удобна для новичка
Порог входа у Envisioneer Express заметно ниже, чем у многих CAD/BIM-решений. Во многом это связано с тем, что программа сразу предлагает предметные команды: стены, двери, окна, проемы, крыша, камеры, мебель, материалы. Пользователю не нужно сначала осваивать абстрактную геометрию. Он работает ровно теми сущностями, которые видит в доме. Из-за этого программа довольно быстро начинает приносить результат даже без длительного обучения.
При этом интерфейс нельзя назвать современным в визуальном смысле. Он скорее функциональный, чем красивый. Но в этом есть своя выгода: меньше декоративного шума, меньше спрятанных команд, больше прямого доступа к инструментам. Если человеку важнее сделать планировку и посмотреть комнату в 3D, а не любоваться интерфейсом, Envisioneer Express оказывается удобнее многих глянцевых, но менее практичных решений.
Ограничения Envisioneer Express, которые нужно понимать заранее
Главное ограничение программы — не интерфейс и не графика, а ее позиционирование. Envisioneer Express хорош как viewer, markup-среда и инструмент базовой работы с жилой моделью, но он не закрывает весь цикл профессионального проектирования. Если задача — полноценные рабочие чертежи, расширенная документация и сметная часть, внутри линейки Cadsoft для этого предусмотрены старшие решения. Поэтому рассматривать Express как единственную программу на все случаи — ошибка. Его сила в фокусе, а не в универсальности.
Второй важный момент — настольная Windows-природа программы. Envisioneer Express рассчитан на 64-битную Windows-систему, любит нормальный запас оперативной памяти и выигрывает от дискретной видеокарты, особенно если пользователь собирается активно работать с 3D-видами и более качественным рендером. Это не критическая тяжесть, но и не браузерный сервис, который одинаково безразличен к железу. У программы есть четкий настольный характер, и это стоит учитывать до начала постоянной работы.
Третье ограничение связано с тем, что современный пользователь нередко ждет от такого софта облачной синхронизации, совместной работы из коробки и интерфейса уровня актуальных web-платформ. Envisioneer Express — программа другой школы. Она сильна именно как локальный редактор и просмотрщик модели, а не как социальная платформа для коллективного редактирования в браузере. Это не недостаток сам по себе, но это влияет на выбор. Если нужен спокойный настольный инструмент для конкретной программы Envisioneer — Express хорош. Если нужен сервис открыл на телефоне, продолжил на планшете, синхронизировал в облаке, то у него уже другие конкуренты.
Сравнение с аналогами
Sweet Home 3D
Sweet Home 3D — очень сильный и логичный конкурент в сегменте домашней планировки. Он тоже строит план дома, расставляет мебель и сразу показывает результат в 3D. У него понятная философия: рисуешь план, вставляешь двери и окна в стены, добавляешь мебель из каталога, меняешь цвета и текстуры, при необходимости импортируешь или экспортируешь данные. Для пользователя, которому нужен бесплатный интерьерный инструмент с нуля, Sweet Home 3D по-прежнему остается одним из самых удачных вариантов.
Но Envisioneer Express выигрывает в другом. Он лучше чувствует себя как часть семейства Envisioneer и как viewer для .bld-моделей. Если уже существует проект в экосистеме Cadsoft, Express сразу попадает в рабочий контекст: открытие модели, корректировка мебели, смена материалов, заметки, 2D/3D-осмотр, панорамный вывод. Sweet Home 3D — отличный универсальный планировщик интерьера, но он не заменяет эту связку с родным форматом Envisioneer и не играет ту же роль в процессе согласования готовой модели.
Итог здесь простой: Sweet Home 3D лучше как независимый бесплатный редактор интерьеров и комнат, Envisioneer Express — лучше как программа для просмотра, доработки и обсуждения именно Envisioneer-проекта. Если работа строится вокруг .bld, выигрывает Express. Если нужен свободный универсальный планировщик без привязки к экосистеме, Sweet Home 3D выглядит рациональнее.
Planner 5D
Planner 5D играет совсем в другом стиле. Это современный 2D/3D-сервис с акцентом на простоту, визуальную эффектность, работу на разных устройствах, большую библиотеку объектов и дополнительные AI-сценарии. Он предлагает облачную логику, доступ из браузера и мобильных платформ, тысячи предметов мебели и декора, а также реалистичные рендеры. Для пользователя, которому важны кроссплатформенность и максимально современный интерфейс, Planner 5D выглядит гораздо свежее.
Но у Envisioneer Express другой козырь. Он глубже встроен в архитектурно-домовую модель Envisioneer и работает увереннее там, где уже есть связка с проектом дома, а не просто красивый облачный интерьерный эскиз. В Express меньше блеска и меньше вау-эффекта интерфейса, зато он точнее попадает в сценарий: открыть реальную жилую модель, пройтись по ней, изменить материалы, подвигать мебель, оставить пометки, распечатать план, вывести 360-вид. Planner 5D хорош как современная площадка для массового домашнего дизайна, Envisioneer Express — как прагматичный настольный инструмент работы с моделью Envisioneer.
Выбор между ними зависит не от того, какая программа круче вообще, а от того, в каком процессе она нужна. Для мультиплатформенного любительского дизайна и быстрого красивого результата чаще побеждает Planner 5D. Для работы с .bld-моделью и нормального настольного согласования — Envisioneer Express.
DreamPlan
DreamPlan ближе к Envisioneer Express по духу, чем Planner 5D. Это тоже программа с упором на домашнее проектирование, где пользователь строит 2D/3D-план, работает с мебелью, ландшафтом, внешними и внутренними элементами, а также может продумывать deck, pool, porch и другие типовые части загородного сценария. DreamPlan хорошо подходит тем, кто хочет быстро поиграть с планировкой, двором и базовой обстановкой без погружения в серьезную архитектурную среду.
На фоне DreamPlan Envisioneer Express выглядит строже и предметнее. У него сильнее ощущается связь с моделью здания и с архитектурной экосистемой Envisioneer. Он лучше подходит для сценария есть проект — нужно его просмотреть, проверить и согласовать, тогда как DreamPlan чаще воспринимается как самостоятельный бытовой дизайнерский конструктор. Если задача — просто быстро порисовать дом, комнату, участок и базовую мебельную схему, DreamPlan может оказаться легче и дружелюбнее. Если нужна именно работа с Envisioneer-моделью и более осмысленный просмотр .bld, Express будет точнее.
Home Designer от Chief Architect
Вот здесь разница уже классовая. Home Designer, созданный на технологиях Chief Architect, предлагает автоматизированные строительные инструменты, мощную логику моделирования дома, развитую 3D-визуализацию, инструменты материалов и даже выход к material list и более серьезному набору проектных задач. Это уровень, который заметно дальше от viewer и легкой правки и заметно ближе к полноценной системе для DIY-проектирования и ремоделинга с большим запасом глубины.
Но сравнение не сводится к банальному одна программа мощнее другой. Home Designer и должен быть мощнее. Вопрос в том, нужен ли этот уровень мощности пользователю Envisioneer Express. Если цель — открыть готовую модель, пройтись по ней, проверить мебель, отделку, планировку и согласовать правки, то тяжесть Home Designer часто избыточна. Envisioneer Express быстрее входит в работу и не заставляет пользователя платить временем за функциональность, которая ему в конкретной задаче не нужна. Это программа с более узкой, но вполне внятной специализацией.
Короткий вывод по аналогам
Если нужен свободный интерьерный редактор с хорошей 2D/3D-связкой — очень силен Sweet Home 3D. Если нужен современный облачный и мультиплатформенный сервис — вперед выходит Planner 5D. Если хочется легкого бытового конструктора для дома и участка — уместен DreamPlan. Если нужен более серьезный DIY-пакет со строительной глубиной — сильнее Home Designer. А Envisioneer Express побеждает в своей собственной зоне: когда в центре работы стоит именно модель Envisioneer и нужны просмотр, наглядная доработка, материалы, мебель, заметки и понятная 3D-демонстрация без лишней тяжести.
Сильные и слабые стороны Envisioneer Express
| Сильные стороны | Слабые стороны |
|---|---|
| Уверенно открывает и показывает Envisioneer-модели в 2D и 3D | Не рассчитан на полный профессиональный цикл документации |
| Понятная логика интерфейса с каталогом и предметными инструментами | Интерфейс визуально устарел по сравнению с современными web-сервисами |
| Удобная вставка архитектурных элементов: стены, двери, окна, проемы, крыша | Для части пользователей настольный Windows-подход покажется менее гибким |
| Быстрая смена материалов и мебели прямо в модели | Вне экосистемы Envisioneer его преимущества ощущаются слабее |
| Полезные режимы навигации: 3D Quick View, 3D Perspective, Walk Around, Fly Around | Для глубокого BIM и чертежного сценария нужны старшие продукты |
| Подходит для согласования, markup и презентации, включая VR и 360 | Не тот инструмент, который стоит брать ради модного облачного коллаборативного процесса |
Эта таблица хорошо показывает суть программы. Envisioneer Express не пытается быть всем сразу. Он силен там, где проект надо быстро прочитать, обсудить и визуально проверить. Там он действительно удобен. Но как только задачи уходят в полноценную рабочую документацию, сложные выпуски и расширенный профессиональный контур, его рамки становятся очевидными. Именно поэтому эту программу разумно оценивать не по обещанию может всё, а по вопросу насколько хорошо она делает свою конкретную работу. В своей нише ответ будет положительным.
Кому Envisioneer Express стоит выбирать
Envisioneer Express стоит брать тем, кто уже живет внутри логики Envisioneer или получает проекты из этой среды. В таком сценарии программа почти идеальна: открывает .bld, показывает модель без потерь контекста, дает пройтись по комнатам, проверить отделку, подвигать мебель, оставить замечания и подготовить понятную визуальную демонстрацию. Для частного заказчика, домашнего пользователя, продавца интерьеров или подрядчика это очень хороший баланс простоты и наглядности.
Программа также подходит тем, кто хочет именно настольный инструмент без браузерной зависимости и без лишней облачной обвязки. Здесь все по делу: проект на экране, каталог справа, команды наверху, 2D и 3D под рукой. Если такое устройство работы кажется правильным, Envisioneer Express будет удобным.
Кому лучше смотреть в сторону других решений
Если задача начинается с нуля и не привязана к Envisioneer-формату, а в приоритете бесплатность, облачная работа, мобильные платформы или максимально современный интерфейс, другие программы часто окажутся практичнее. Sweet Home 3D рациональнее как независимый бесплатный интерьерный редактор, Planner 5D удобнее как визуально современный мультиплатформенный сервис, DreamPlan проще для легких бытовых сценариев, а Home Designer глубже для тех, кому нужен уже серьезный строительный инструментарий.
Итог
Envisioneer Express — это удачный обзорщик и доработчик жилых моделей, а не расплывчатая программа для дизайна всего подряд. Он хорош именно там, где нужен конкретный результат: открыть проект дома, увидеть его в 2D и 3D, проверить мебель, попробовать материалы, пройтись по комнатам, отметить правки и показать пространство так, чтобы его понял не только проектировщик, но и обычный человек. В этой роли программа остается действительно полезной.
Его не стоит переоценивать: это не замена старшим BIM-решениям и не универсальная система на все случаи. Но и недооценивать Envisioneer Express не стоит. В сегменте домашнего и согласовательного проектирования он делает именно то, что должен делать хороший программный инструмент: быстро открывает нужную модель, не усложняет простые действия и дает наглядный, понятный результат. Для обзора программы этого достаточно, чтобы оценка была однозначной: у Envisioneer Express есть четкая роль, и в этой роли он работает уверенно.