FloorPlan Home & Landscape Pro 3D — это не очередной упрощённый планировщик комнат, где всё сводится к расстановке дивана и выбору цвета стен. У программы другой масштаб. Она строит проект как целую систему: от контура дома, стен, проёмов, лестниц и крыши до электрики, HVAC, фундамента, ландшафта, растений и предварительной оценки затрат. Именно поэтому FloorPlan 3D заметно интереснее там, где нужно не просто поиграть с интерьером, а собрать в одном файле будущий дом, реконструкцию, пристройку, террасу или участок вокруг здания.
У программы очень характерная философия. Основная геометрия и большая часть проектной логики живут в 2D, а 3D здесь работает как полноценное окно проверки, навигации, визуальной оценки и презентации. Это даёт FloorPlan сильную практическую сторону: сначала ты строишь точный 2D план дома, потом сразу смотришь, как он ведёт себя в объёме, как выглядит крыша, как читается фасад, насколько убедительно выглядит входная группа, удобно ли расставлены окна, двери, лестницы и мебель. Для домашнего проектирования это один из самых удачных форматов, потому что он сочетает инженерную дисциплину с наглядной 3D-визуализацией.
Скачать FloorPlan 3D
- Планировка дома
- Русский интерфейс
- Просто для новичков
- Старый интерфейс
- Ограниченные функции
- Редкие обновления
Что представляет собой FloorPlan 3D на практике
FloorPlan 3D хорошо раскрывается не через рекламное описание, а через список реальных задач, которые в нём удобно делать. Программа подходит для следующих сценариев:
-
собрать план дома или квартиры с нуля;
-
быстро набросать схему помещений через QuickStart, а потом перейти к точной доработке;
-
редактировать стены, толщины, проёмы, лестницы, колонны и перекрытия;
-
добавить окна, двери, перила, лестничные марши, мебель и отделку;
-
построить крышу автоматически или вручную;
-
вести проект по отдельным рабочим вкладкам: Foundation, Floor, Electrical, Plumbing, Roof, HVAC, Deck, Landscape, Detail, Framing, Terrain;
-
импортировать подложку существующего плана и обвести её по масштабу;
-
работать с участком, дорожками, deck-зонами, ограждениями, растениями и топографией;
-
получить 3D-виды, walkthrough, room view и общий обзор экстерьера;
-
вести приблизительную смету по помещениям, материалам и зонам участка прямо по мере проектирования.
Самое важное здесь то, что FloorPlan не разваливается на отдельные режимы ради галочки. Если ты меняешь контур дома, это влияет на крышу, на привязки, на площади помещений, на визуализацию, а в продвинутом сценарии — ещё и на расчётные данные. Из-за этого программа воспринимается не как красивый редактор картинок, а как инструмент, где проект действительно живёт как единый объект.
Интерфейс FloorPlan 3D: как устроено рабочее пространство
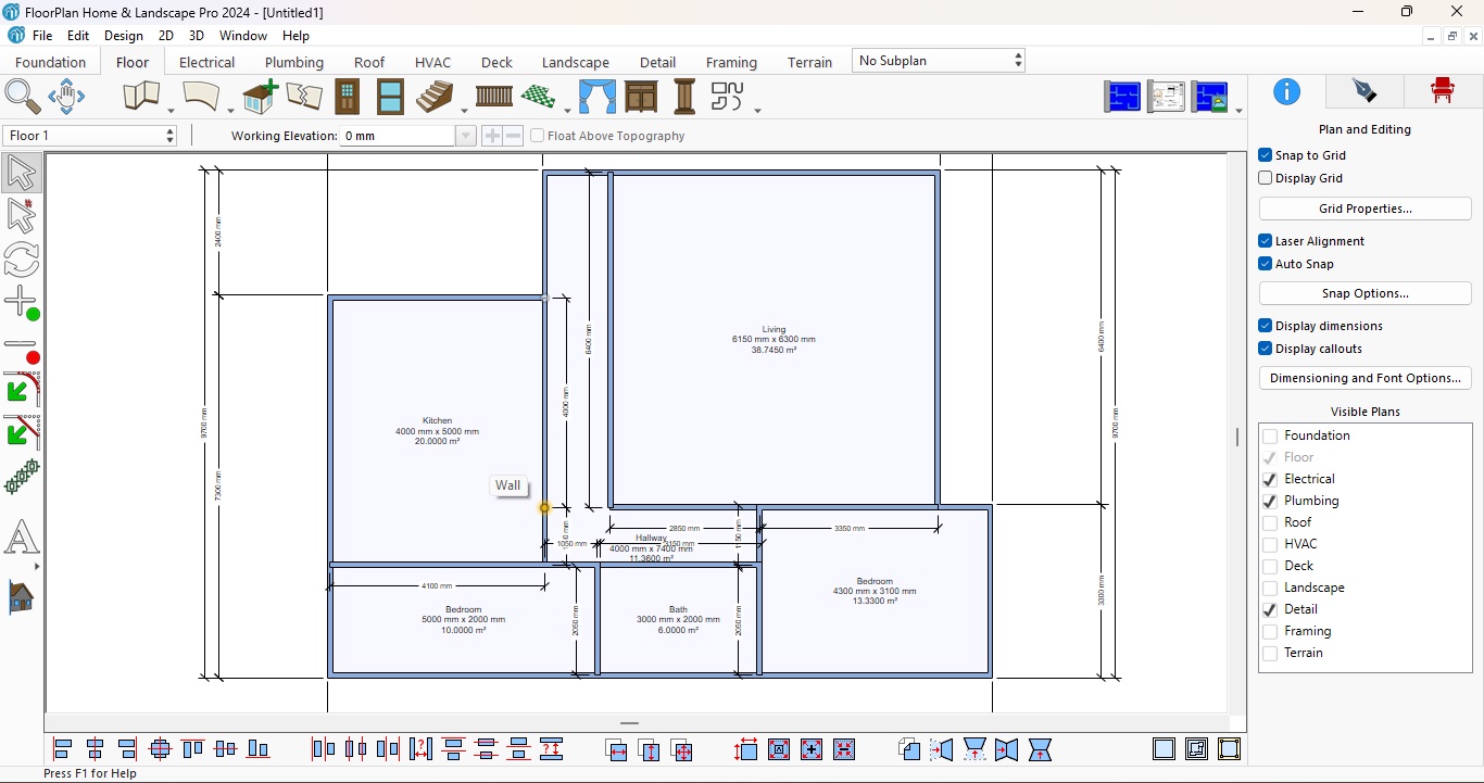
Первое, что отличает FloorPlan от простых онлайн-планировщиков, — структура интерфейса. Здесь нет одной огромной панели всё в одном. Вместо этого программа разбивает проектирование на логические фазы. Наверху идут тематические вкладки проекта: Foundation, Floor, Electrical, Plumbing, Roof, HVAC, Deck, Landscape, Detail, Framing, Terrain. Это не косметическая сортировка, а рабочая логика: переходя между вкладками, ты фактически переключаешься между архитектурным планом, конструктивом, инженеркой, наружными элементами и топографией. Такой подход особенно удобен в реальной работе над домом, когда надо держать в одном файле не только стены и мебель, но и всё, что относится к объекту целиком.
Слева FloorPlan держит основные инструменты выбора, рисования, редактирования и аннотаций, а справа — контекстную область настроек. Ключевой элемент правой части интерфейса — Properties tab. Именно она превращает программу из просто набора иконок в удобный проектный редактор: выбрал стену — видишь её свойства; выбрал дверь — редактируешь параметры двери; выбрал растение — работаешь уже с растением. Если автоматическое появление параметров отключено, его можно вернуть через Window menu > Auto Display Tool Options. Это важная деталь, потому что в FloorPlan почти всё строится на идее выделил объект — сразу получил доступ к его настройкам.
Второй базовый элемент — библиотечная логика. В программе активно используются Libraries tab, выпадающий список категорий и Preview Bar. Через них ты выбираешь мебель, материалы, растения, символы, отделку, декоративные элементы и перетаскиваешь их в план или прямо в 3D-вид. Это простая, но очень продуктивная схема: не надо открывать десятки диалоговых окон, чтобы добавить в проект новый объект. Достаточно выбрать категорию, пролистать превью и бросить нужный элемент в сцену.
При этом интерфейс нельзя назвать лёгким в смысле минимализма. Он плотный. Панелей много, иконок много, контекстных переключателей тоже много. Но это не хаос. После короткого периода привыкания логика становится прозрачной: 2D-план строится по вкладкам, объектные свойства редактируются справа, библиотеки и материалы живут в отдельной рабочей области, а 3D подключается именно тогда, когда нужно оценить результат в объёме. В этом и есть сильная сторона FloorPlan: визуально он не стремится казаться игрушкой, зато в работе ведёт себя как серьёзный настольный проектировщик.
QuickStart: самый быстрый способ собрать основу дома
FloorPlan очень грамотно решает главную проблему таких программ: пустой файл пугает даже опытного пользователя. Поэтому старт работы здесь часто идёт через QuickStart. Это отдельный режим, в котором не нужно сразу рисовать стену за стеной. Вместо этого справа открывается Rooms Bar, где уже лежат типовые комнаты: kitchen, living, bedroom, hallway, garage и другие заготовки. Пользователь просто выбирает нужный тип комнаты, кликает по рабочему полю, размещает помещение, затем тянет за угол и меняет размеры. После этого нажимает Continue и переносит собранную схему в основное окно проекта.

В QuickStart есть ещё несколько тонких, но очень полезных мелочей. Если комнаты накладываются друг на друга, их порядок можно корректировать: одну отправлять назад, другую выводить вперёд. Для быстрого просмотра результата доступна кнопка 3D Preview в правом верхнем углу. А ещё на этом же этапе можно заранее определить, будет ли после выхода из QuickStart автоматически создана крыша — за это отвечает опция Generate automatic roofing when finished in QuickStart. Такой подход сильно экономит время на первом проходе по проекту: вместо долгого рисования прямоугольников пользователь за минуты получает работающий черновой каркас дома, который уже можно развивать дальше.
Важный плюс QuickStart в том, что он не запирает пользователя в упрощённом режиме. Он нужен только для старта. Как только ты нажимаешь Continue, FloorPlan переводит эту схему в полноценную рабочую среду, где уже можно редактировать стены, добавлять проёмы, работать с лестницами, менять подписи комнат, площадь, размеры, привязки и все остальные параметры. Поэтому QuickStart — не отдельный игрушечный конструктор внутри программы, а быстрый вход в нормальный проект.
Как в FloorPlan 3D создаётся проект дома с нуля
Шаг 1. Сборка базового контура
Если нужен максимально быстрый старт, удобнее действительно начать с QuickStart. Если нужна более жёсткая геометрия с самого начала, можно сразу идти в основное окно проекта и строить контур вручную. Для большинства базовых элементов FloorPlan использует знакомые методы рисования: Click Once to Place для объектов, которые не привязываются к стенам, Click-and-Drag для стен, крыш и размеров, а для сложных форм — режим Define 2D Shape, где способ построения выбирается через Draw Method drop-down menu на Properties tab. Этой схемой пользуются не только стены, но и полы, deck-элементы, ограждения и другие объекты сложной формы.
Шаг 2. Уточнение размеров и редактирование контуров
FloorPlan хорошо подходит для детальной доводки уже построенного плана. Объекты, созданные через drag-and-drop или Define 2D Shape, можно перетягивать за точки и сегменты, меняя форму и размеры. При этом программа активно помогает позиционированием: работают Snap to Grid, Auto Snap, Laser Alignment, отображение размеров и callouts. Если нужно, сетка настраивается через 2D menu > Grid Properties, а привязки можно уточнить через Snap Options. В результате даже довольно сложный план дома с коридорами, санузлами, нишами и поворотами собирается без ощущения, что ты борешься с координатами.
Шаг 3. Добавление новых помещений без ручной перекройки всего плана
Для расширения проекта FloorPlan предлагает очень удачный инструмент — Room Addition Tool. Он нужен как раз для жизненного сценария надо быстро добавить пристройку, кабинет, веранду, гардеробную или ещё одну комнату. Сначала выбирается Room Addition Tool, затем при необходимости через Properties tab > Options настраиваются стены, окна, дверь и параметры крыши, после чего новая комната просто протягивается вдоль существующей стены. Это один из самых практичных инструментов программы, потому что он снимает рутину при расширении уже готового дома.
Шаг 4. Работа с подписями, площадями и размерами помещений
FloorPlan не ограничивается геометрией. Комната в программе — это не просто замкнутый контур, а объект с метаданными. Если кликнуть в центр комнаты, справа на Properties tab откроются настройки её подписи: можно включать и отключать отображение Name, Dimensions, Area. Это очень полезно, когда один и тот же файл нужен и для проектной работы, и для презентации. В рабочем варианте удобно видеть размеры и площадь прямо в центре комнаты, а в чистовом виде часть служебной информации можно выключить, чтобы план стал визуально чище.
Шаг 5. Мгновенная проверка в 3D
После любого заметного изменения 2D-плана очень удобно сразу открыть 3D-вид и проверить, как новая геометрия ведёт себя в объёме. Именно так FloorPlan показывает свою зрелость: он не вынуждает заканчивать весь план вслепую, а позволяет на каждом этапе убеждаться, что лестница не выглядит чужеродно, проёмы не перегружают фасад, крыша садится на объём логично, а помещения считываются адекватно. Это особенно важно при проектировании пристроек, эркеров, переходов и сложных входных групп.

Главное достоинство этого сценария в том, что FloorPlan позволяет идти от грубого объёма к подробному проекту без разрыва между этапами. Не нужно сначала строить план в одном софте, потом переносить его в другой ради 3D, потом отдельно считать площадь, а потом заново рисовать участок. В одной среде спокойно проходят и набросок, и точная планировка дома, и 3D-визуализация, и работа с наружным пространством.
Стены, окна, двери, лестницы и общая планировочная логика
FloorPlan 3D сильнее всего ощущается именно на базовой архитектурной механике. По сути, это программа, где проект начинается не с мебели, а со стен. Вкладка Floor предназначена для работы с контуром дома, толщиной стен, дверями, окнами, лестницами, перилами, колоннами и другими конструктивно важными элементами. Именно такой порядок в FloorPlan наиболее естественен: сначала скелет, потом проёмы, потом связи между помещениями, и только после этого — интерьерное наполнение.
Автоматическое отображение размеров во время рисования — одна из причин, почему программа хорошо подходит именно для чертежной работы, а не просто для визуального эскиза. FloorPlan показывает размеры по ходу построения и позволяет управлять этим отображением. Если нужно, можно отключить автоматическую размерную информацию через Display dimensions, а оконные и дверные выноски — через Display callouts. Отдельно полезен Dimension Wall Spacing Tool, который удобен, когда надо поставить интерактивные размеры между стенами там, где они не были сгенерированы автоматически, например между основным домом и отдельной хозпостройкой.
С точки зрения обычной бытовой работы это означает простую вещь: FloorPlan даёт нормальный, читаемый 2D план дома, который можно доводить как план, а не как картинку. В этом его преимущество перед софтом, который прекрасен в красивых 3D-ракурсах, но слабоват в повседневной чертёжной дисциплине. Здесь легко вести планировку помещений, перепланировку, проект пристройки, связывать комнаты между собой, держать под контролем площади и расстояния.
Но есть и нюанс, который важно понимать заранее. FloorPlan не всегда ведёт себя как параметрический CAD с полной автоматической перестройкой всех соседних связей. При перемещении одной стены примыкающие стены не всегда подхватываются и перестраиваются цепочкой; часть корректировок приходится вносить вручную. Для простого дома это не проблема, но если делать очень сложный контур и постоянно перестраивать его по ходу работы, к этому поведению придётся привыкнуть. Именно на таких моментах становится видно, что программа стоит между бытовыми планировщиками и более тяжёлыми архитектурными системами: она даёт много, но не обещает магии в каждой перестройке.
Крыша, фундамент, инженерные вкладки и конструктив
Одна из самых сильных причин выбрать именно FloorPlan 3D, а не обычный интерьерный софт, — работа с крышей и конструктивом. В простых программах roof design часто сводится к декоративной шапке над коробкой дома. В FloorPlan это отдельная рабочая дисциплина. Если нужно быстро получить базовую крышу, пользователь наводит курсор на внешний периметр стен, дожидается светло-синего выделения, кликает по периметру, после чего он становится жёлтым, а справа на Properties tab появляются параметры периметра. Дальше достаточно нажать Generate Roof, и программа строит hip roof по текущим автоматическим настройкам.
После этого начинается уже не магия, а нормальная настройка. Через Automatic Roof Options можно задавать Roof Pitch в режиме Ratio или Angle, менять Soffit Depth, управлять тем, будут ли панели генерироваться автоматически после изменения периметра, и задавать поведение на других уровнях через Clips automatic roofs on other floors. Если нужен контроль над подконструкцией, доступны и framing-параметры: размер стропил, шаг, материал, а увидеть результат можно в Framing render style. Для стандартного коттеджного объёма этого более чем достаточно, а главное — всё это собрано в понятную последовательность из нескольких кликов, а не прячется по глубоко вложенным окнам

Если автоматическая крыша — только отправная точка, FloorPlan позволяет идти дальше вручную. Для этого существуют Freehand Roof Tool, Four-Point Freehand Roof Tool, Three-Point Freehand Roof Tool, а также Dormer Cutout Tool. И вот здесь программа уже выходит за пределы бытового поставь готовый шаблон: можно настраивать уклон, высоту, форму, направление подъёма, вручную рисовать секции крыши и подрезать их под реальные архитектурные задачи. Если проект включает мансардные элементы, сложные стыки, нестандартные фронтоны или более аккуратную подгонку roofline, FloorPlan даёт необходимый набор инструментов без ощущения, что это не его профиль.
Не менее важна сама структура верхних вкладок. Наличие Foundation Planner, HVAC Planner, Electrical Planner, Framing и тематических phase tabs делает программу полноценным проектным инструментом для дома, а не редактором отделки. Да, это не BIM-пакет высшего класса, но для частного дома, реконструкции или проектирования собственного жилья такой набор более чем серьёзен. В одном проекте можно держать фундаментную часть, инженерную логику, кровлю, наружные элементы и деталировку, не расползаясь по разным приложениям.
Интерьер в FloorPlan 3D: мебель, материалы, отделка и быстрые сценарии оформления
Многие знают FloorPlan как программу для планировки дома, но её сильная сторона не заканчивается архитектурной оболочкой. Внутреннее оформление здесь тоже сделано глубоко. Программа работает с большой библиотекой 3D-объектов и материалов: в старшей конфигурации доступны тысячи объектов для интерьера и тысячи материалов для отделки. Этого достаточно не только для примерно расставить мебель, но и для более аккуратной проработки кухни, спальни, гостиной, санузлов, террасы и хозяйственных помещений.
Основной сценарий простой: открываешь Libraries tab, выбираешь нужную библиотеку, затем категорию, пролистываешь Preview Bar и перетаскиваешь объект в план или 3D-окно. FloorPlan правильно воспринимает этот процесс как потоковую работу. Здесь не надо бесконечно подтверждать добавление каждого предмета. Поэтому создание проекта дома с мебелью и базовой декоративной отделкой идёт достаточно быстро: диваны, кровати, шкафы, сантехника, кухонные элементы, декор, наружные объекты — всё под рукой, всё укладывается в одну систему drag-and-drop.
Отдельного внимания заслуживает работа с материалами. В программе есть не только обычное перетащи материал на поверхность, но и разные режимы применения через Apply drop-down menu: Single Plane, Wrap Single Segment, Wrap All Segments, Entire Group, Matching, AutoClick Placement. Это важная вещь, потому что в реальном проекте редко нужно просто перекрасить весь объект. Иногда надо изменить одну поверхность шкафа, иногда — все одинаковые фасады, иногда — сразу несколько выбранных поверхностей в разных комнатах. FloorPlan эти сценарии закрывает без ухищрений.

Очень полезна и логика палитр. Quick Palette ускоряет базовую отделку буквально в один клик: программа позволяет быстро применять готовые сочетания материалов, цветов и финишей к ключевым частям проекта. А Decorator Palette нужна уже для системной работы: она собирает часто используемые цвета и материалы в группы, чтобы не искать их каждый раз заново. Для интерьера это критически удобно. Когда проект большой, возможность держать под рукой собственный набор напольных покрытий, фасадов, красок и отделок экономит массу времени.
За счёт этого FloorPlan хорошо подходит не только для архитектурного контура, но и для проектирования интерьера как продолжения архитектуры. Здесь нет ощущения, что после стен программа заканчивается. Наоборот: после построения оболочки начинается не менее сильная часть — подбор мебели, отделки, дверей, оконных решений, визуальное выстраивание пространства и быстрый просмотр результата в 3D. Именно поэтому FloorPlan можно использовать и как программу для проектирования дома, и как софт для дизайна интерьера и участка в одном цикле.
Импорт существующего плана и работа по подложке
Одно из самых полезных применений FloorPlan 3D — перенос уже существующего плана в цифровой проект. Это бывает нужно постоянно: есть бумажный план БТИ, старый чертёж, эскиз от строителей, фотография плана дома, скан с размерами. В FloorPlan для этого есть связка Floor Plan Scanner/Tracer и встроенной трассировки подложки. Программа позволяет загружать изображение плана, масштабировать его и использовать как основу, по которой затем выстраиваются стены, помещения и проёмы.
Технически процесс устроен очень понятно. Через Design menu > Floor Plan Trace Properties открывается окно настроек трассировки. Дальше нажимается Set Image, выбирается файл, он загружается в превью, после чего пользователь либо масштабирует подложку через Percentage, либо задаёт размеры через Dimensions. Если масштаб ещё не совпал, его можно подстроить повторно, изменяя горизонтальные и вертикальные значения до тех пор, пока рисунок не начнёт соответствовать реальным размерам. Подложку при необходимости легко скрывать и снова показывать через Design menu > Show Floor Plan Trace Image или флажок Image Visible.

С практической точки зрения это один из самых сильных сценариев программы. Вместо того чтобы вручную переносить старый дом на глаз, можно загрузить скан, совместить масштаб и буквально поверх подложки собрать точный цифровой план дома. Для реконструкции, перепланировки, проектирования пристройки и обновления старого коттеджа это невероятно удобно. FloorPlan в таком режиме не просто рисует красиво, а экономит часы реальной работы.
Estimator: зачем в FloorPlan встроена смета и почему это полезно
В большинстве домашних проектировщиков пользователь получает либо красивый 3D-вид, либо чистый 2D-план. FloorPlan идёт дальше и даёт Estimator — встроенный расчётный модуль, который ведёт данные по площадям и материалам в табличном виде по мере проектирования. Программа подсчитывает квадратуру, отделочные площади, данные по напольным покрытиям, покраске и другим зонам проекта в реальном времени. Когда пользователь добавляет цены, из этого получается нормальный рабочий бюджетный снимок проекта.

Самое ценное в Estimator — он работает не отдельно от проекта, а вместе с ним. Изменился размер комнаты — меняется и площадь. Переделал покрытие пола — это отражается в расчётной логике. Программа позволяет считать затраты не только по дому целиком, но и по отдельным комнатам, ландшафтным зонам и выбранным частям проекта. Для самостоятельного проектирования это очень сильная функция: человек видит не абстрактную картинку дома, а проект, у которого уже появляется финансовый контур.
Конечно, Estimator не заменяет подробную строительную смету подрядчика с локальными расценками, логистикой и поправками на регион. Но как инструмент ранней оценки он очень полезен. На стадии, когда владелец дома решает, делать ли пристройку 18 м² или 26 м², выбирать ли один тип отделки вместо другого, насколько тяжёлым становится ландшафтный блок, такая встроенная оценка даёт не просто цифры, а чувство масштаба проекта. И вот это уже реальная практическая ценность, которой у многих конкурентов попросту нет.
Ландшафт, deck, растения и работа с рельефом
FloorPlan 3D заметно сильнее типичных интерьерных программ именно в наружной части проекта. Если многие конкуренты умеют показать террасу или дорожку для галочки, то FloorPlan работает с внешней зоной системно: тут есть инструменты для Deck, Landscape, ограждений, дорожек, газонов, садовых композиций, внешнего освещения и топографии. В библиотеке присутствуют тысячи растений, а сам проект может включать не только дом, но и участок вокруг него как полноценную часть дизайна.
Очень удачно сделан Plant Inventory Bar. FloorPlan отслеживает, какие растения уже использованы в проекте, и показывает их на отдельной панели. Эту панель можно включить через Design menu > Show Plant Bar. Дальше пользователь получает не просто список: двойной клик по растению выделяет все его вхождения на плане, правый клик позволяет удалить все экземпляры, а замена выполняется буквально перетаскиванием нового растения на старое в панели. Для большого участка это мощная функция, потому что посадки редко остаются неизменными. Когда приходится менять целую группу кустарников или деревьев, не хочется делать это вручную по одному объекту.
Ещё один сильный блок — работа с зонами произрастания и подбором растений. В программе есть карты hardiness zones для разных регионов, а растения можно сортировать по характеристикам. Это позволяет проектировать ландшафт не только красиво на картинке, но и логичнее с точки зрения условий выращивания. Для домашнего пользователя это хороший баланс между декоративностью и практичностью.

Отдельно надо отметить Spray Topography. FloorPlan позволяет менять рельеф прямо в 3D, а не только через формальные контурные линии. В новых реализациях это сделано через инструменты spray/smooth/erase, где пользователь буквально формирует подъёмы, спуски и плавность рельефа в объёме. Для домов на сложном участке это решающий плюс. Программа перестаёт быть только редактором коробки и превращается в систему, где дом можно посадить на склон, подрезать участок, поиграть с подъездом, дорожками и ландшафтными уровнями.

3D-визуализация, навигация и просмотр проекта
3D в FloorPlan нужен не для галочки и не только для красивого финального скриншота. Он встроен в рабочий цикл программы. Проект можно открывать в режимах split view, когда 2D и 3D видны одновременно, и мгновенно проверять, как изменения плана отражаются на объёме. Это особенно полезно при проектировании фасада, террасы, ландшафта и кровли. Когда 3D включён параллельно, ошибки композиции и геометрии замечаются намного раньше.
Навигация в 3D построена вокруг нескольких режимов. Есть Walkthrough для прохода по дому как внутри реального пространства, Fly-Around для облёта проекта, Aerial View для верхнего обзора и Room View, который фокусируется на выбранных помещениях. Для каждого сценария FloorPlan предлагает понятную механику управления: перемещение мышью, изменение высоты просмотра, смену точки обзора из 2D-плана, настройку скорости и угла камеры. Для этого используется блок 3D Tools, а глубже параметры можно подправить через 3D Options и ползунки Speed и Camera Angle.
Это важно не только для презентации. В реальной работе 3D-режим нужен ещё и для оценки размещения объектов, отделки, топографии и целостности объёма. Материалы, цвета стен, кровельные поверхности, дерево, облицовка, декор, растения — всё это в FloorPlan удобнее проверять именно в объёмном окне. Причём программа позволяет не замыкаться на интерьере: экстерьер и участок в 3D здесь не менее важны, чем комнаты. На этом фоне FloorPlan смотрится взрослее большинства программ, которые отлично показывают диван в гостиной, но снаружи быстро теряют убедительность.
При этом честно надо сказать: основная проектная дисциплина FloorPlan всё же остаётся 2D-центричной. Именно там строится точный план дома, корректируются стены, проёмы и размеры. 3D — это мощная надстройка для проверки и подачи. В такой схеме нет недостатка, если понимать природу программы. Наоборот, для проектирования дома это часто даже удобнее, чем попытка делать всё сразу в real-time 3D.
Точность работы: AutoSnap, Laser Alignment, сетка и служебные инструменты
FloorPlan 3D хорош не только крупными возможностями, но и тем, как он помогает в мелочах. У программы сильный слой вспомогательных инструментов точного позиционирования. Snap to Grid позволяет вести проект по сетке, Auto Snap цепляется за ключевые горячие точки, а Laser Alignment показывает выравнивание относительно уже существующих точек и сегментов. Всё это управляется через Properties tab, когда в проекте ничего не выделено, а более глубокие настройки доступны в Snap Options. На бумаге это кажется мелочью, но именно такие детали превращают рисование плана дома из раздражающего занятия в предсказуемую работу.
Полезен и Selection Filter. В сложных местах, где окно, дверь, декоративные элементы или другие объекты накладываются друг на друга, фильтр позволяет ограничить типы выбираемых объектов. Это экономит массу времени при доводке проекта, особенно когда на плане становится тесно и обычный клик начинает цеплять не тот элемент. В том же ряду работают Point Selection Highlight Guides и другие механики визуального контроля точек выбора — FloorPlan явно проектировали с расчётом на то, что пользователь будет редактировать плотный, насыщенный план, а не только рисовать пару стен на пустом листе.
Отдельный плюс — аннотации и текст. В программе есть Rich Text Tool, настройки шрифтов, выравнивания, rotated text, а также отдельные параметры для отображения размерных единиц. Это полезно, когда из одного файла нужно получить не только внутреннюю рабочую модель, но и читаемый план для печати, обсуждения с семьёй, передачи подрядчику или согласования. FloorPlan в этом смысле хорошо держит баланс между проектированием и презентацией: это не только построить, но и нормально показать.
Сравнение с аналогами
Sweet Home 3D
Sweet Home 3D удобен тогда, когда задача сводится к быстрому интерьерному плану: нарисовать комнаты, подложить существующий чертёж, расставить мебель из каталога и получить понятное представление о внутреннем пространстве. Он действительно хорошо справляется с быстрым интерьерным сценарием и тоже умеет работать по изображению существующего плана. Но по глубине архитектурной и наружной части он заметно проще. FloorPlan выигрывает там, где нужен не только интерьер, но и крыша, фундамент, инженерные вкладки, framing, участок, deck, топография и расчётные инструменты. Если нужно проектирование дома как объекта, а не только схема комнат, FloorPlan существенно сильнее.
Live Home 3D
Live Home 3D очень хорош своим современным real-time подходом: у него сильная 3D-визуализация, terrain editing, Elevation View, Material Editor, импорт моделей и удобный мультиплатформенный опыт. Это отличный вариант, если нужен красивый и сравнительно лёгкий инструмент для дома, интерьера и экстерьера. Но FloorPlan выигрывает в более проектной части: у него лучше выражены phase tabs, сильнее связка roof/foundation/HVAC/electrical/framing, есть Estimator и более явная чертёжная дисциплина. Live Home 3D чаще выбирают за удобство визуальной работы, FloorPlan — за более широкий охват задач конкретного дома.
RoomSketcher
RoomSketcher отлично заточен под скорость, презентацию и удобство выдачи результата: drag-and-drop редактор, обводка blueprint, one-click 3D floor plans, Live 3D, 3D Photos, 360 Views, облачная синхронизация, Measurement Wizard, готовые шаблоны. Если задача — быстро сделать красивый план для клиента, аренды, продажи или согласования на бытовом уровне, RoomSketcher очень силён. Но FloorPlan выигрывает там, где проект должен быть глубже: custom roof tools, foundation, HVAC, framing, richer landscape logic, estimator, детальная архитектурная работа. RoomSketcher быстрее в презентации; FloorPlan сильнее именно как программа для проектирования дома, а не только презентационных floor plans.
Chief Architect
Chief Architect — это уже более тяжёлый профессиональный класс residential design software. Он автоматизирует roofs, foundations, framing, dimensions, schedules и materials lists и ориентирован на builders, remodelers, architects и interior designers. По строительной глубине Chief Architect выше уровнем, и если нужна именно профессиональная жилая CAD/BIM-среда с максимальной автоматизацией документации, он сильнее FloorPlan. Но у этого преимущества есть цена: порог входа и общая тяжесть системы тоже выше. FloorPlan в этом сравнении выглядит как более доступный и более понятный инструмент для частного пользователя, самостоятельного проектирования дома, семейной реконструкции или небольшой студийной практики — при этом он всё равно заметно глубже массовых интерьерных планировщиков.
Где FloorPlan 3D действительно силён
У FloorPlan есть несколько сильных сторон, которые ощущаются не по отдельности, а в связке.
Во-первых, программа хорошо охватывает весь цикл домашнего проекта. В одном файле можно вести 2D-план, крышу, двери, окна, лестницы, мебель, материалы, участок, растения и предварительную смету. Для частного пользователя это огромный плюс: не нужно прыгать между несколькими приложениями только потому, что одно умеет стены, второе — интерьер, а третье — участок.
Во-вторых, FloorPlan очень хорош в переходе от эскиза к точной модели. QuickStart даёт быстрый старт, Properties tab — детальную настройку, Floor Plan Trace — работу по существующему чертежу, а 3D-режимы — мгновенную проверку объёма. Такой рабочий поток особенно ценен для реконструкции и пристроек, где проект постоянно уточняется по месту.
В-третьих, программа серьёзно относится к ландшафту. За пределами дома FloorPlan не становится слабым. Наоборот: deck-инструменты, растения, Plant Inventory Bar, topography, дорожки, наружное пространство — всё это даёт возможность проектировать участок как часть общего решения, а не как декоративный фон для дома.
В-четвёртых, FloorPlan практичен. Estimator, dimensioning, callouts, room labels, sheet-oriented логика, инженерные вкладки — всё это делает программу полезной не только для визуального посмотреть, но и для реальной подготовки проекта к обсуждению, доработке и реализации.
Ограничения и слабые места программы
FloorPlan 3D не идеален, и об этом лучше говорить прямо.
Интерфейс у программы рабочий, но плотный и местами старомодный. Если пользователь привык к свежим веб-интерфейсам с большими карточками и минимализмом, FloorPlan сначала может показаться перегруженным. Здесь много кнопок, много контекстных опций, много рабочих панелей. Для опытного пользователя это нормально, потому что всё под рукой. Для новичка первые часы могут быть чуть более жёсткими, чем в визуально упрощённых сервисах.
Второе ограничение — 3D здесь не заменяет собой ядро проектирования. Программа по-настоящему сильна именно как 2D-планировщик с мощной 3D-проверкой и визуализацией, а не как чисто real-time 3D-конструктор. Это не минус сам по себе, но об этом нужно помнить. Если пользователь хочет строить всё исключительно мышкой в объёме, ему комфортнее может быть в другом классе программ.
Третье — не вся геометрия ведёт себя как полностью параметрическая система. На сложных контурах часть изменений придётся доводить руками, особенно если активно перестраивать стены после того, как вокруг уже собрана масса соседних элементов. Для домашнего проекта это терпимо, но это то место, где FloorPlan уступает более тяжёлым архитектурным системам.
И наконец, программе полезен большой экран. Когда одновременно открыты 2D-план, 3D-окно, библиотеки, свойства и вспомогательные панели, компактное рабочее пространство быстро заканчивается. FloorPlan любит нормальную настольную посадку и воспринимается лучше именно как полноценный desktop-софт, а не как приложение на скорую руку.
Кому FloorPlan 3D подойдёт лучше всего
FloorPlan особенно удачен для нескольких типов пользователей.
Он отлично подходит владельцу дома, который проектирует жильё для себя и хочет видеть не только интерьер, но и полный дом: коробку, крышу, окна, входные группы, участок, растения, дорожки и бюджетный контур работ. В этой роли программа почти идеальна: она достаточно мощная, чтобы не упереться в потолок на второй неделе, и при этом достаточно понятная, чтобы в неё реально войти без профильного архитектурного образования.
Подходит она и тем, кто занимается реконструкцией, перепланировкой, пристройкой, redesign дома или участка. Room Addition Tool, трассировка существующего плана, roof-инструменты, ландшафтная часть и 3D-проверка делают FloorPlan очень удобной программой именно для переделать существующее, а не только нарисовать новый дом с нуля.
Хорошо она работает и для небольших дизайнерских или строительных задач, где не нужен тяжёлый BIM, но нужен достаточно серьёзный результат: понятный план, наглядный 3D, расстановка мебели, проверка фасада, наружная зона и приблизительная смета. В такой нише FloorPlan действительно силён.
Итог
FloorPlan 3D — это зрелая программа для проектирования дома, интерьера и участка, которая особенно хороша там, где нужен не один красивый ракурс, а полноценная рабочая модель объекта. Она умеет быстро стартовать через QuickStart, точно вести 2D-план, строить крышу, работать по существующим чертежам, оформлять интерьер, проектировать deck и landscape, менять рельеф, считать ориентировочные затраты и сразу показывать результат в 3D.
Её главная сила — целостность. FloorPlan не разрывает проект на отдельные куски и не заставляет пользователя выбирать между планом дома, 3D-визуализацией и участком вокруг здания. Всё это живёт в одной системе. За счёт этого программа особенно убедительно смотрится в сценариях частного дома, реконструкции, пристройки, планировки помещений, проектирования крыши, ландшафтного дизайна и предварительной подготовки бюджета.
Если нужен софт именно для конкретной квартиры и пары мебельных вариантов, можно обойтись более лёгкими аналогами. Но если нужен обзор программы, которая умеет вести дом как цельный проект — от плана и крыши до участка и сметы — FloorPlan 3D заслуживает очень серьёзного внимания. Это одна из тех программ, которые не пытаются казаться проще, чем они есть, и именно поэтому оказываются по-настоящему полезными в реальной работе.