ЛИРА-САПР — это инженерный программный комплекс для расчета и проектирования строительных конструкций методом конечных элементов. Его используют не как абстрактный класс расчетных систем, а как конкретную рабочую среду, в которой создают расчетную схему, задают жесткости и материалы, формируют загружения, считают РСН и РСУ, анализируют перемещения, усилия и напряжения, а затем переходят к конструированию железобетонных, стальных и каменных элементов. Внутри одной экосистемы ЛИРА-САПР закрывает путь от расчетной модели до инженерной проверки и выдачи результатов, а в связке с BIM-инструментами еще и встраивается в нормальный проектный поток без ручного дублирования значительной части данных.
Если говорить по существу, ЛИРА-САПР особенно сильна там, где нужно не просто посчитать каркас, а детально отработать расчетную схему здания или сооружения: собрать пространственную модель, задать для элементов реальные параметры работы, сформировать расчетные сочетания нагрузок, проверить устойчивость, посмотреть деформированную схему, выделить опасные зоны в пластинах и стержнях, а затем перейти к подбору арматуры, проверке стальных сечений или оценке работы кладки. Поэтому программу обычно выбирают не за красивую оболочку, а за глубину инженерного анализа и за то, что в ней можно дойти до решений, которые действительно используются в проектировании.
Скачать ЛИРА-САПР
- Планировка дома
- Русский интерфейс
- Просто для новичков
- Сложен новичкам
- Платная лицензия
- Требует обучения
Что именно делает ЛИРА-САПР
В практической работе ЛИРА-САПР решает несколько больших задач сразу. Первая — построение и редактирование расчетной схемы: узлы, стержни, пластины, объемные конечные элементы, специальные элементы, локальные оси, связи, шарниры, жесткие вставки, коэффициенты постели, расчетные сечения и прочие параметры, без которых МКЭ-модель остается чистой геометрией и не превращается в рабочий инженерный объект. Вторая — расчетная: статика, динамика, устойчивость, нелинейность, монтаж-демонтаж, прогрессирующее обрушение, PUSHOVER, инженерная нелинейность, работа с РСН и РСУ. Третья — постпроцессинг: деформации, формы колебаний, эпюры, мозаики, изополя, таблицы, главные и эквивалентные напряжения. Четвертая — конструирование: железобетон, сталь, кладка, локальный режим армирования, рабочие чертежи и связанный BIM-обмен.
Из-за этого ЛИРА-САПР нельзя сводить только к словам расчет конструкций. Программа работает гораздо шире. Она позволяет не просто получить численное решение по узлам и элементам, а организовать полный инженерный цикл вокруг расчетной схемы здания: от назначения материалов и загружений до проверки предельных состояний и последующего анализа результатов по сечениям, слоям, направлениям и сочетаниям. Именно здесь проявляется ее реальная ценность для инженера-конструктора, потому что расчет в отрыве от интерпретации результатов в проектной практике почти бесполезен.
Для кого подходит программа
ЛИРА-САПР ориентирована прежде всего на инженеров-конструкторов, расчетчиков, проектные бюро и отделы, которые занимаются зданиями и сооружениями, а не только отдельными элементами. Она хорошо ложится на задачи многоэтажных каркасных зданий, монолитных железобетонных систем, металлических каркасов, плит, стен, диафрагм, фундаментных плит, свайных оснований и комбинированных расчетных схем, где в одной модели нужно учитывать и надземную часть, и взаимодействие с основанием.
Полезна ЛИРА-САПР и в BIM-процессах, когда расчетная модель не живет отдельно от архитектурной и конструктивной, а должна обмениваться данными с Revit, Tekla Structures, IFC-средой, SAPFIR и параметрическими связками через Rhino-Grasshopper. В таких проектах программа становится не просто расчетным ядром, а узлом инженерной верификации модели. Это важное отличие от сценариев, где расчетчик работает только с ручным вводом и полностью изолированной схемой.
Как устроен интерфейс ЛИРА-САПР
Одна из сильных сторон ЛИРА-САПР — не простота как таковая, а ясная логика разделения операций по этапам инженерной работы. Ленточный интерфейс в ВИЗОР-САПР по умолчанию организован вокруг трех базовых состояний: создание схемы, анализ напряженно-деформированного состояния и конструирование. Из-за этого лента не выглядит набором случайных кнопок: она действительно переключает пользователя между этапами работы с моделью. В системе предусмотрены стили ленты Лента Плюс, Лента ЖБК, Лента Сталь и пользовательский вариант, а в правом верхнем углу находятся дополнительные меню Стиль, Окно и Справка.
Главные вкладки интерфейса называются очень прямо: Создание и редактирование, Расширенное редактирование, Расчет, Анализ, Расширенный анализ, Железобетон, Сталь, Кладка. Отдельно добавляются вкладки Грунт и Теплопроводность, когда пользователь открывает соответствующий тип задачи. Такой набор сам по себе хорошо показывает, что ЛИРА-САПР — это не одно окно с решателем, а система, в которой расчет, анализ и конструктивная интерпретация результатов изначально разнесены по разным режимам, чтобы пользователь не смешивал ввод, вычисление и чтение результатов в один хаотичный процесс.
Контекстные вкладки появляются при выделении конкретных типов объектов. Это Работа с узлами, Работа со стержнями, Работа с пластинами, Работа с объемными КЭ, Работа с одноузловыми КЭ, Работа с СЭ. Именно они делают редактирование модели быстрым: программа не заставляет держать все команды на экране одновременно, а выводит набор операций, которые логично относятся только к выбранным объектам. Для крупных расчетных схем это принципиально важный момент, потому что точность редактирования модели часто не менее важна, чем точность самого решателя.
С точки зрения повседневной работы интерфейс ЛИРА-САПР нельзя назвать легковесным. В нем много инженерных сущностей, и программа не пытается спрятать их за упрощенным дизайном. Зато инженер видит именно те параметры, которыми реально управляет расчет: типы конечных элементов, жесткости, связи, локальные оси, расчетные сочетания, режимы анализа, коэффициенты постели, этапы монтажа, характеристики материалов и результаты по отдельным критериям. Для профессионального пользователя это плюс, а не минус, потому что глубокая расчетная система и должна быть насыщенной по инструментам.
Создание расчетной схемы: от геометрии до рабочей модели
Вкладка Создание и редактирование в ЛИРА-САПР — это фактически главный стартовый блок работы. Здесь формируется расчетная схема, назначаются жесткости и материалы, задаются параметры конструирования и нагрузки. В реальной проектной практике именно этот этап определяет, будет ли расчет содержательным: если схема собрана грубо или с неверной постановкой связей, локальных осей и жесткостей, никакой постпроцессинг потом уже не спасет. ЛИРА-САПР в этом плане хороша тем, что позволяет собирать модель последовательно и инженерно осмысленно, а не только рисовать объекты.
Для построения схемы используются узлы сети, регулярные и полярные сети, а также команда Генерация прямоугольной сети. Это не декоративные инструменты, а реальные опорные средства геометрического моделирования. Когда нужно быстро разложить каркас по координатам, задать сетку для плит и стен, сформировать регулярную геометрию многоэтажной части или подоснову для расстановки элементов, эти команды экономят очень много времени. Рядом работает команда Строительные оси и отметки, через которую задают оси и высотные отметки; после этого можно отмечать узлы и элементы, расположенные в вертикальных и горизонтальных плоскостях, уже не на глаз, а по логике строительной системы координат.
В этом же блоке инженер задает не только геометрию, но и поведение модели. На панели жесткостей и связей в ЛИРА-САПР есть команды для закреплений и удаления закреплений, объединения перемещений, задания АЖТ как абсолютно жесткого тела, жестких вставок стержней, ребер жесткости пластин, шарниров, коэффициентов постели С1, С2, местных осей и других параметров. Это критически важно для МКЭ-модели, потому что большая часть ошибок в расчетах конструкций рождается не из-за плохого решателя, а из-за плохо поставленной схемы: неверно задали шарнир, не согласовали оси, забыли про жесткую вставку, ошиблись с закреплением, не предусмотрели расчетные сечения. ЛИРА-САПР позволяет все это выставить достаточно точно и в явных диалогах.
Отдельно стоит команда Конструктор сечений. Она нужна не для банального выбора профиля, а для формирования геометрии произвольных многоматериальных сечений стержней, задания физико-механических характеристик и расчета жесткостных параметров. На практике это особенно полезно в нестандартных задачах, где библиотечного сечения недостаточно и нужно учитывать реальную геометрию и состав сечения, а затем уже использовать полученную жесткость в основной расчетной модели. Для расчетчика это один из самых практичных инструментов ЛИРА-САПР, потому что он сокращает число внешних расчетов и пересчетов вручную.
Контекстная вкладка Работа со стержнями показывает, насколько глубоко система заточена под инженерное редактирование. Через нее доступны местные оси стержней, шарниры, коэффициенты постели, расчетные сечения, объединение стержней, смена типа КЭ и другие операции. Особенно полезно, что расчетные сечения стержней задаются явно: инженер сам определяет, в каком количестве сечений по длине будут вычисляться усилия и напряжения. Для обычных задач можно оставить базовую схему, а для более тонкого анализа эпюр увеличить дискретизацию и получить более показательный результат по элементу.
Похожая логика работает и для пластин. Вкладка Работа с пластинами дает доступ к осям ортотропии, коэффициентам постели, жестким вставкам пластин и другим операциям, которые особенно важны для плит, стен, диафрагм, оболочек и фундаментных систем. Здесь ЛИРА-САПР ощущается именно как программа для расчета строительных конструкций, а не просто как универсальная FEM-оболочка: в ней сразу предусмотрены типовые действия, которыми проектировщик пользуется каждый день.
Нагрузки и загружения: одна из самых сильных зон ЛИРА-САПР
Работа с нагрузками в ЛИРА-САПР сделана системно и без лишней декоративности. На панели нагрузок можно задавать нагрузки на узлы, на стержни, на пластины, на объемные конечные элементы, использовать супернагрузку, Динамика плюс, а также инструмент корректировки нагрузок. Отдельно есть раскрывающийся список Собственный вес, где доступны команды добавить собственный вес и удалить собственный вес. Для инженерной практики это очень удобный уровень детализации: собственный вес не приходится учитывать косвенно или через обходные приемы, он встроен в нормальную логику задания воздействий.
Программа удобно работает и с самими загружениями. В ЛИРА-САПР есть команда Копировать текущее загружение, которая позволяет на основе уже собранного набора воздействий быстро создать новое загружение и не повторять однотипные действия заново. Для больших моделей с десятками вариантов эксплуатационных, монтажных, временных, климатических и аварийных нагрузок это полезнее, чем кажется на первый взгляд: именно на таких рутинных операциях обычно теряется время и появляются лишние ошибки.
Встроенный диалог Нагрузки в ЛИРА-САПР используется для задания и редактирования свойств воздействий прямо внутри расчетной модели.
Когда схема уже собрана, ЛИРА-САПР позволяет перейти к тому, ради чего ее так часто выбирают расчетчики, — к грамотной работе с РСН и РСУ. В системе есть отдельные команды для задания данных по расчетным сочетаниям нагружений, вычислению перемещений и усилий от стандартных и произвольных линейных комбинаций, а также отдельный раскрывающийся список Выполнить расчет РСУ, где доступны расчет РСУ и унификация РСУ. Для задач, где комбинаций много и нужно не просто сложить нагрузки, а получить инженерно осмысленный набор сочетаний, ЛИРА-САПР дает очень сильный инструментарий.
Практическая ценность РСУ в ЛИРА-САПР особенно заметна в проектах со сложной логикой работы элементов. Через Формирование групп РСУ можно объединять отмеченные элементы в группы, если для разных элементов в одном и том же загружении требуются разные коэффициенты РСУ. Это важная профессиональная функция, потому что в реальной расчетной модели далеко не всегда корректно рассматривать весь каркас как однородный набор одинаково комбинируемых элементов. Программа учитывает эту инженерную реальность и позволяет не ломать модель ради формального удобства.
На уровне ручной работы с воздействиями полезен и расширенный режим, где доступны команды редактировать нагрузки, объединить нагрузки, восстановить исходные нагрузки, удалить нагрузки, импортировать нагрузки из dxf. Это уже история не только про расчет, но и про управляемость модели: если в процессе подготовки схемы воздействий было много, если часть пришла из внешней среды, если нужна коррекция импортированных данных, ЛИРА-САПР не заставляет переписывать все заново.
Какие виды расчета выполняет программа
Вкладка Расчет в ЛИРА-САПР отвечает не просто за кнопку запуска. Она собирает параметры статического, динамического и дополнительных расчетов, формирует расчетные таблицы и управляет самим вычислением. Внутри нее заложена та часть системы, где программа перестает быть графическим редактором схемы и становится вычислительным комплексом в полном смысле. Это чувствуется по тому, насколько много в ней специальных режимов, связанных не с вводом геометрии, а с постановкой расчетной задачи.
Базовый статический расчет — это лишь первая ступень. Дальше в ЛИРА-САПР доступны динамические возможности, включая формы колебаний и специальные динамические системы, а также отдельная система Динамика во времени, которая решает задачи методом прямого интегрирования уравнений движения во времени. Такой режим нужен там, где одной модальной картиной недостаточно и требуется проследить реальное развитие отклика конструкции во времени, например при сложных динамических воздействиях. Для многих инженерных программ это уже уровень специализированного дополнения, а в ЛИРА-САПР он встроен в общую архитектуру комплекса.
Нелинейные задачи в программе оформлены очень предметно. Панель Нелинейность позволяет задавать параметры шагового процесса для нелинейных задач, монтажа-демонтажа, прогрессирующего обрушения, PUSHOVER и систем Инженерная нелинейность и Инженерная нелинейность 2. Отдельно доступны команды Шаговая, Монтаж и Прогрессирующее обрушение, причем монтаж и отказ элементов рассматриваются не как теоретическая надстройка, а как специальные рабочие режимы. Это делает программу особенно полезной в тех случаях, когда важно учитывать историю нагружения и изменение работы схемы по стадиям, а не только конечное состояние.
Для моделирования стадий возведения ЛИРА-САПР предусматривает команды Стадии, Группы и Дополнительные загружения. Внутри монтажа можно задавать номера монтируемых и демонтируемых элементов, коэффициенты к модулю деформации и прочности железобетона для групп элементов на текущей стадии, а также распределять дополнительные загружения по стадиям с разными коэффициентами. Это не декоративная функциональность: при расчете реальных монолитных и сборных схем последовательность включения элементов в работу меняет НДС конструкции, и ЛИРА-САПР это учитывает.
Система прогрессирующего обрушения тоже реализована через отдельные команды. В ней задают локальный отказ как в квазистатической постановке с коэффициентами динамичности, так и в динамической — со временем отказа элементов. Это значит, что ЛИРА-САПР позволяет не ограничиваться формальной проверкой по обычным сочетаниям, а моделировать сценарии исключения элементов из работы и смотреть, как перераспределяется усилие в схеме. Для ответственных конструкций и сложных общественных зданий это уже не факультативная функция, а важный инструмент инженерной оценки запаса живучести системы.
Отдельный сильный блок — расчет на устойчивость. В ЛИРА-САПР есть специальные данные для постановки расчета на устойчивость, отдельная панель Устойчивость, режим анализа результатов, а также мозаики коэффициентов свободных длин по Ly и по Lz для стержневых элементов. То есть программа не просто сообщает потеря устойчивости возможна или невозможна, а дает инструменты для анализа причин и распределения параметров по схеме. Для стальных и комбинированных каркасов это один из ключевых моментов постпроверки модели.
Анализ результатов: не просто цифры, а полноценный постпроцессинг
Вкладка Анализ в ЛИРА-САПР — одна из самых сильных частей программы. Здесь собраны функции вывода численной и графической информации о перемещениях в узлах, усилиях и напряжениях в элементах расчетной схемы. В нормальной инженерной работе именно этот режим превращает расчет в решение: пока пользователь не просмотрел деформированную схему, не оценил усилия, не увидел концентрации напряжений и не сравнил поведение отдельных зон модели, расчет остается набором чисел. ЛИРА-САПР это понимает и дает развитый визуальный и табличный инструментарий для чтения результата.
Панель Деформации позволяет выбирать вид деформации схемы через раскрывающийся список НДС схемы. В нем есть как минимум форма перемещений и форма колебаний. Для расчетчика это означает, что в одном логическом блоке можно переходить от статической деформированной схемы к динамической картине собственных форм, не меняя среду и не выгружая модель во внешние модули. Такой переход особенно полезен при проверке пространственной работы каркаса, узлов жесткости, диафрагм, особенностей кручения, локальных зон повышенной податливости.
Следующий важный блок — Усилия в стержнях. Здесь ЛИРА-САПР отображает эпюры и мозаики усилий в стержнях. В панели есть отдельные команды для продольной силы N и других компонент внутреннего усилия, а сам режим позволяет переключаться между эпюрами и мозаикой. Для балок, ригелей, колонн, связей, металлических стержневых элементов и расчетных аналогов сложных конструкций это один из главных инструментов чтения результата: инженер видит не просто экстремум, а распределение усилия по элементу и по схеме.
Для пластин и объемных элементов в ЛИРА-САПР работает панель Напряжения в пластинах и объемных КЭ, где отображаются мозаики и изополя напряжений. Это крайне важно для плит, стен, диафрагм, оболочек, подземных частей и объемных участков модели, где стержневая логика уже не дает полного представления о НДС. В таких задачах как раз и нужно видеть контурные поля напряжений, опасные зоны, локальные концентрации и направление их развития по площади или объему элемента.
В ЛИРА-САПР есть и процессор ЛИТЕРА, который используется для вычисления главных и эквивалентных напряжений в конечных элементах по усилиям от отдельных загружений, а также по расчетным сочетаниям РСН или РСУ. Это важный нюанс. Многие пользователи недооценивают разницу между усилиями и интерпретацией их в терминах напряженного состояния материала. ЛИТЕРА как раз закрывает этот переход и делает анализ более инженерным, а не только математическим.
С практической точки зрения удобно и то, что в анализе есть панели Таблицы, через которые выводится численное представление результатов, а также запускаются режимы формирования отчета и пояснительной записки. То есть ЛИРА-САПР не разделяет жестко визуальный постпроцессинг и документирование: инженер может посмотреть мозаику, проверить локальный участок модели, а затем сразу вывести числовую таблицу и использовать ее в рабочем оформлении расчета.
Конструирование железобетона в ЛИРА-САПР
Режим Железобетон в ЛИРА-САПР — это не косметическое продолжение МКЭ-расчета, а полноценный конструктивный слой программы. Здесь задают информацию для конструирования и анализируют результаты подбора и проверки армирования элементов. В режиме конструирования железобетонных конструкций система выполняет подбор площадей сечения арматуры для колонн, балок, плит, диафрагм и оболочек по предельным состояниям. За счет этого ЛИРА-САПР удобно использовать не только как расчетную, но и как проектирующую среду, где от усилий переходят к реальному армированию и проверке его достаточности.
Хорошо реализован и локальный подход. В системе есть Локальный режим армирования, предназначенный для конструирования отдельного железобетонного стержневого или пластинчатого элемента в соответствии с нормативными требованиями. На практике это очень полезно: после общего расчета здания инженер может не пытаться решать все задачи в масштабе всей модели, а взять конкретный элемент, детально проработать его армирование, уточнить параметры и уже затем принять окончательное решение. Такой режим особенно удобен для ответственных участков, нетиповых зон и мест, где хочется отдельно проверить логику армирования без лишнего шума от всей глобальной схемы.
Визуальный анализ результатов железобетонного расчета в ЛИРА-САПР тоже сделан глубоко. В панели и раскрывающихся списках можно отображать результаты по раскрытию трещин, минимальной арматуре, коэффициентам запаса заданного армирования в пластинах, мозаикам относительных деформаций и другим показателям. То есть программа не ограничивается ответом в духе площадь арматуры равна Х, а позволяет смотреть поведение железобетонного элемента с инженерной детализацией: где появляются опасные зоны, как ведет себя пластина по слоям, где недостает армирования и в каком направлении проблема выражена сильнее.
Если проектный процесс требует уже не только расчета, но и выдачи конструктивного материала, ЛИРА-САПР поддерживает и следующий шаг. Система конструирования ЖБК позволяет выполнять унификацию, получать рабочие чертежи армирования, спецификацию арматуры и ведомости. Это удобно тогда, когда расчет должен переходить в оформленный проектный результат без лишнего ручного перенабора данных в сторонних инструментах.
Расчет и проверка стальных конструкций
Вкладка Сталь в ЛИРА-САПР отвечает за задание информации для конструирования и анализ результатов проверки и подбора стальных сечений и узлов. В режиме железобетонных и стальных конструкций реализованы подбор и проверка элементов стальных конструкций и их узлов по первому и второму предельным состояниям, а также по местной устойчивости. На практике это делает ЛИРА-САПР вполне серьезным рабочим инструментом и для металлических каркасов, а не только для монолитного железобетона.
Отдельное достоинство программы — очень понятная структура вывода результатов по стали. ЛИРА-САПР выполняет расчеты основных типов стальных конструкций: ферм, балок и колонн. Для каждого типа доступны результаты по трем группам критериев: 1ПС, 2ПС и МУ. Причем в ленте на вкладке Сталь есть отдельные кнопки для отображения этих результатов, а также группа команд Результаты расчёта по сечениям. Это удобно, потому что инженер не растворяется в одном суммарном коэффициенте использования, а может отдельно посмотреть, где проблема в общей прочности, где — в гибкости, а где — в местной устойчивости стенки или пояса.
Для стержневых металлических элементов это особенно полезно. В ферменных, балочных и колонных системах часто бывает важнее понять природу ограничения, чем просто увидеть процент использования. Если элемент не проходит по 1ПС, это один сценарий усиления; если по 2ПС, это уже история про гибкость и деформативность; если по местной устойчивости, инженер будет менять форму или параметры сечения иначе. ЛИРА-САПР именно так и структурирует информацию, поэтому в стальном расчете программа дает не только приговор, но и понятный маршрут дальнейшего инженерного решения.
Дополнительный плюс — встроенный узловой уровень проверки. ЛИРА-САПР не обрывает расчет на уровне стержня, а поддерживает проверку узлов металлических конструкций. Для комплексной работы с металлом это важно, потому что в реальном проекте недостаточно подобрать профиль балки или колонны — нужно понимать, как ведет себя соединение, где накапливается слабое место и какой именно элемент узла ограничивает несущую способность.
Кладка и армокаменные конструкции
Раздел Кладка в ЛИРА-САПР не является второстепенным приложением для галочки. В нем задают информацию для конструирования и анализируют результаты проверки прочности кладки и подбора армирования. Для армокаменных конструкций программа определяет необходимое количество сеток и подбирает стержни вертикального армирования, а также поддерживает вариантный расчет. Это означает, что ЛИРА-САПР полезна не только для чисто монолитных или металлических схем, но и для проектов, где существенную роль играют каменные и армокаменные элементы.
Для инженера это важно по простой причине: каменные конструкции часто выпадают из общего цифрового цикла. Их либо считают отдельно, либо проверяют слишком грубо. В ЛИРА-САПР этот класс задач встроен в общую архитектуру комплекса, поэтому кладка не оказывается ручным хвостом проекта. Если в схеме есть несущие стены, участки из кладки, армокаменные элементы и связанные с ними ограничения по прочности и армированию, все это можно удержать внутри одной логики расчетной модели.
Грунт, основания, сваи и специальные инженерные задачи
Возможности ЛИРА-САПР по работе с основанием — одна из причин, почему программу часто выбирают именно для строительных конструкций, а не заменяют универсальной МКЭ-средой. В системе ГРУНТ по всей области фундаментной плиты определяются коэффициенты постели С1 и С2, причем они зависят от нагрузок на фундаментную плиту и нагрузок по контуру. Это уже полноценная постановка задачи взаимодействия сооружения с основанием, а не примитивное назначение условного упругого основания одним числом на всю модель.
Отдельно ЛИРА-САПР работает со свайным основанием. В связанной BIM- и конструктивной логике можно использовать сваи, задавать их несущую способность или определять жесткость по модели основания, а в рамках систем комплекса доступны расчеты свай, свай-стоек, осадок, несущей способности и связанных характеристик основания. Для крупных объектов это особенно важно: фундамент и грунт в реальном проекте нельзя корректно считать как потом посмотрим отдельно. В ЛИРА-САПР надземная часть, фундаментная схема и работа основания логично связываются в одном инженерном цикле.

Расчет свайных элементов и оснований в ЛИРА-САПР встроен в общую структуру комплекса, а не вынесен в оторванный внешний модуль.
Еще один показательный раздел — Теплопроводность. Эта система позволяет решать задачи стационарной и нестационарной теплопроводности и использовать температурное поле как часть инженерного анализа. В обычных обзорах о подобных функциях часто забывают, но для ЛИРА-САПР это важная характеристика: программа выходит за рамки узкого статического расчета и дает возможность учитывать дополнительные физические процессы, которые реально влияют на работу конструкции.
BIM-интеграция и обмен данными
В BIM-сценариях ЛИРА-САПР чувствует себя уверенно. Комплекс поддерживает двустороннюю связь с Autodesk Revit, двустороннюю интеграцию с Tekla Structures, связки через IFC, работу вместе с SAPFIR, а также параметрический контур через Rhino-Grasshopper. Это не означает, что расчетная модель всегда приходит в идеальном виде и не требует донастройки — в инженерной практике так не бывает. Но ЛИРА-САПР дает инструменты, чтобы не собирать расчетную схему полностью с нуля, а использовать данные из BIM-модели как основу для расчета и последующего обмена результатами.
Особенно полезно, что обмен идет не только в сторону импортировал геометрию и забыл. В ЛИРА-САПР предусмотрена передача результатов армирования, настройка соответствий параметров IFC-объектов и объектов SAPFIR, импорт аналитической модели и работа с отредактированной аналитикой. Это важное отличие зрелой BIM-интеграции от примитивного формата обмена, где программа лишь загружает набор линий и поверхностей без сохранения инженерного смысла модели.

Связка с Revit в ЛИРА-САПР используется не только для передачи геометрии, но и для обмена аналитической моделью и результатами армирования.
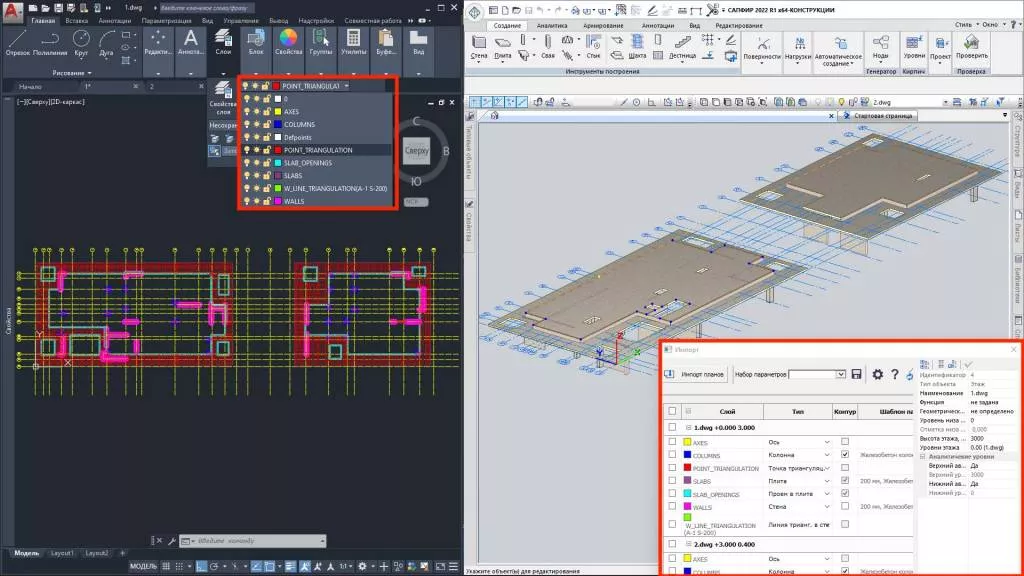
Для подготовки модели на раннем этапе удобен и импорт поэтажных планов. ЛИРА-САПР поддерживает работу с DWG/DXF как с подложками, использует их для автоматической генерации модели по поэтажным планам и допускает импорт некоторых специальных элементов. Это помогает быстро привязать расчетную схему к реальной проектной подоснове, особенно когда исходная BIM-модель еще не полностью готова или когда часть исходников существует именно в плоской чертежной среде.
Импорт поэтажных планов через DWG в ЛИРА-САПР ускоряет переход от чертежной подосновы к расчетной схеме.
Практический сценарий работы: как в ЛИРА-САПР обычно считают здание
Если смотреть на программу как на инструмент реальной проектной работы, то типовой сценарий в ЛИРА-САПР выглядит так. Сначала инженер формирует геометрию расчетной схемы: использует сетки, оси, отметки, заводит узлы, стержни, пластины, объемные элементы, назначает им типы жесткости и материалы. Затем задает связи, объединения перемещений, шарниры, жесткие вставки и коэффициенты постели там, где это требуется. На этом этапе схема из набора геометрических объектов превращается в полноценную механическую модель.
Следующий шаг — формирование загружений. Пользователь создает необходимые варианты воздействий, задает нагрузки на узлы и элементы, добавляет собственный вес, при необходимости копирует текущее загружение и быстро формирует его производные варианты. Если часть данных приходит извне, в ход идут инструменты редактирования и объединения нагрузок. После этого можно переходить к РСН и РСУ: задавать комбинации, группировать элементы, выполнять расчет сочетаний и унификацию. Для сложных моделей это уже не просто этап перед запуском, а половина качества будущего результата.
Дальше инженер запускает основной расчет. В зависимости от постановки задачи это может быть статический анализ, динамика, нелинейность, устойчивость, монтаж или прогрессирующее обрушение. После получения решения работа только начинается: открывается вкладка Анализ, где пользователь последовательно просматривает деформированную схему, формы колебаний, эпюры усилий в стержнях, мозаику и изополя напряжений в пластинах и объемных элементах, а также таблицы результатов. В ЛИРА-САПР очень удобно именно то, что эти режимы логически разложены и не заставляют пользователя перескакивать между разрозненными окнами.
После анализа глобального НДС инженер переходит в режимы конструирования. Для железобетона это подбор и проверка армирования, для стали — проверка и подбор сечений и узлов, для кладки — проверка прочности и подбор армирования. Если нужно, расчетчик локализует проблему: берет конкретный элемент, использует локальный режим армирования, смотрит критичные участки по коэффициентам запаса, проверяет раскрытие трещин, уточняет параметры и только после этого принимает окончательное инженерное решение. Такой маршрут хорошо отражает реальную логику проектирования и именно поэтому ЛИРА-САПР воспринимается как зрелый профессиональный комплекс.
Что в ЛИРА-САПР особенно удобно в повседневной работе
У программы есть несколько сильных пользовательских качеств, которые проявляются не в презентациях, а именно в рутине. Первое — ясное разделение этапов работы по вкладкам. Когда у пользователя перед глазами отдельно Создание и редактирование, отдельно Расчет, отдельно Анализ, отдельно Железобетон, Сталь, Кладка, количество ошибок из-за хаотичного переключения между режимами снижается. Второе — большое число контекстных операций, которые всплывают только при выделении нужного типа объектов. Третье — нормальная работа с таблицами и графическим выводом, когда инженер может одинаково быстро смотреть и мозаику, и численные результаты.
Отдельно удобно, что в ЛИРА-САПР многие команды называются так, как их и ожидает увидеть инженер. Строительные оси и отметки, Собственный вес, Копировать текущее загружение, Шарниры, Коэффициенты постели С1, С2, Выполнить расчет РСУ, Усилия в стержнях, Напряжения в пластинах и объемных КЭ — это не маркетинговые ярлыки, а прямой язык проектировщика. За счет этого в программе легче ориентироваться даже при большом количестве функций: интерфейс не пытается скрыть инженерный смысл за модными формулировками.
Сравнение с аналогами
Сравнивать ЛИРА-САПР корректно не с абстрактными западными FEM-системами, а с конкретными рабочими аналогами, которые реально используют в расчетной практике: SCAD Office, Autodesk Robot Structural Analysis Professional, SAP2000 и ETABS. У каждого из этих продуктов своя логика, и выбор между ними зависит не только от вычислительных возможностей, но и от того, как именно построен рабочий процесс инженера.
SCAD Office
SCAD Office — это интегрированная система, в которую входят SCAD как вычислительный комплекс, а также отдельные модули КРИСТАЛЛ, АРБАТ, КАМИН, ЗАПРОС, ОТКОС и другие компоненты. У SCAD очень сильная модульная логика: расчет, подбор арматуры, сталь, основания и вспомогательные расчеты распределены по специализированным программам. ЛИРА-САПР в этом смысле выглядит более цельной средой внутри ленточного интерфейса ВИЗОР-САПР: создание схемы, анализ, железобетон, сталь, кладка, грунт и теплопроводность собраны в единой логике вкладок и режимов. Поэтому пользователю, которому важнее единое рабочее пространство, ЛИРА-САПР часто оказывается удобнее, а тем, кто привык к разнесению задач по модулям, может быть ближе SCAD Office.
По функциональной философии оба комплекса близки тем, что ориентированы именно на расчет строительных конструкций. Но ЛИРА-САПР обычно сильнее воспринимается как единый конструкторско-расчетный маршрут с развитым визуальным постпроцессингом внутри одной среды, тогда как SCAD Office строится вокруг набора специализированных программ. Здесь нет лучшего вообще — есть более подходящий формат работы для конкретного инженера или бюро.
Autodesk Robot Structural Analysis Professional
Robot Structural Analysis Professional позиционируется как BIM-интегрированное решение с обменом данными с Revit, поддержкой Dynamo, симуляцией ветровых нагрузок, развитым автоматическим построением конечной сетки, статическим, модальным и нелинейным анализом, а также открытым API. Это очень сильный инструмент там, где проект живет внутри экосистемы Autodesk и важна связка анализа с BIM-моделью и параметризацией.
ЛИРА-САПР тоже уверенно работает в BIM-контуре — у нее есть Revit, Tekla, IFC, SAPFIR, Rhino-Grasshopper и передача результатов армирования, — но ее основное ощущение в работе другое. Robot сильнее привязан к BIM-экосистеме Autodesk и международному универсальному workflow, а ЛИРА-САПР больше ориентирована на расчетную глубину именно в контексте строительных конструкций, с очень явной логикой РСН/РСУ, специализированными вкладками по материалам и тесной связью расчета с конструированием. Поэтому для чистого BIM-потока Autodesk Robot часто выглядит естественнее, а для инженерной расчетной работы, где нужна насыщенная строительная специфика внутри одной системы, ЛИРА-САПР нередко оказывается практичнее.
SAP2000
SAP2000 — это универсальная объектно-ориентированная система общего назначения для моделирования, анализа и проектирования практически любых конструктивных систем, от простых до сложной геометрии, при статических и динамических нагрузках, с поддержкой геометрической и материальной нелинейности и оптимизационных алгоритмов. Это делает SAP2000 очень мощным универсальным инструментом для широкого круга задач, в том числе вне чисто зданийного контекста.
ЛИРА-САПР, в отличие от SAP2000, сильнее структурирована именно под повседневные задачи строительного проектирования. В ней сразу присутствуют специализированные режимы по железобетону, стали, кладке, грунту, локальному армированию, теплопроводности, монтажу, прогрессирующему обрушению и общей инженерной детализации по конструктивным материалам. Поэтому SAP2000 часто выигрывает как максимально гибкая универсальная среда, а ЛИРА-САПР — как специализированный строительный комплекс, в котором многие типовые задачи уже представлены в готовом и привычном инженеру виде.
ETABS
ETABS создан именно для анализа и проектирования многоэтажных зданий. Его моделирование опирается на повторяемость этажей, сеточную геометрию зданий, шаблоны, кодовые предписания по нагрузкам и сейсмике, а также на типичный workflow высотного или среднеэтажного каркаса. За счет этого ETABS часто очень быстр в задачах, где структура проекта хорошо укладывается в историю этажей, типовых планов и регулярной вертикальной логики.
ЛИРА-САПР шире в том смысле, что в ней сильнее развиты блоки, связанные с основаниями, грунтом, армированием, кладкой, специальными нелинейными режимами и общей инженерной детализацией по конструктивным материалам. Но если основная задача — именно быстрое и эффективное моделирование многоэтажного здания с повторяющейся этажностью, ETABS часто дает более естественный рабочий маршрут. Если же проект требует более разнородной расчетной структуры и насыщенного конструктивного постпроцессинга по разным материалам, ЛИРА-САПР выглядит предпочтительнее.
Краткое сравнение
| Программа | Сильная сторона | Где ЛИРА-САПР выглядит лучше | Где конкурент может быть удобнее |
|---|---|---|---|
| SCAD Office | Модульная система специализированных расчетных программ | Когда нужен единый интерфейс расчета, анализа и конструирования в одной среде | Когда команда привыкла к работе через отдельные специализированные модули |
| Robot Structural Analysis | Глубокая BIM-связка с Revit, Dynamo, API, авто-мешинг | Когда важнее инженерная логика РСН/РСУ, конструирование ЖБ, сталь, кладка и строительная специализация | Когда проектный процесс уже полностью живет в экосистеме Autodesk |
| SAP2000 | Универсальность и широкая применимость к любым системам | Когда нужна предметная строительная среда с вкладками по материалам и основаниям | Когда требуется максимально общий FEM-инструмент без сильной привязки к строительной специализации |
| ETABS | Быстрое моделирование многоэтажных зданий и этажная логика | Когда проект разнородный и требует сильного конструирования, грунта и специальных режимов | Когда ядро задачи — типовой многоэтажный каркас с повторяемой этажностью |
Сводно можно сказать так: ЛИРА-САПР занимает очень сильную позицию именно как специализированный комплекс для расчета и проектирования строительных конструкций. Она не пытается быть всем для всех, зато очень уверенно закрывает тот круг задач, который ежедневно встречается в работе инженера-конструктора.
Преимущества ЛИРА-САПР
Главное преимущество ЛИРА-САПР — сочетание глубины расчета и развитого инженерного постпроцессинга. Программа не ограничивается МКЭ-решением, а сразу дает развитую среду для чтения результата: деформации, формы колебаний, эпюры, мозаики, изополя, таблицы, ЛИТЕРА, устойчивость, расчет сочетаний, результаты по стали и железобетону. За счет этого расчетчик не просто получает числа, а работает с НДС схемы как с инженерной картиной.
Второе преимущество — сильная конструктивная часть. Железобетон, сталь, кладка, локальный режим армирования, узлы металлоконструкций, рабочие чертежи армирования, спецификации и ведомости — все это делает ЛИРА-САПР полезной не только расчетчику, но и проектировщику, который доводит модель до практического решения. В этом плане программа находится на хорошей дистанции от систем, где расчет заканчивается на таблице усилий и дальше все приходится делать отдельно.
Третье преимущество — насыщенный набор специальных режимов: грунт, теплопроводность, динамика во времени, монтаж, прогрессирующее обрушение, устойчивость, инженерная нелинейность. Для профессиональной работы это очень ценно, потому что реальные объекты почти никогда не укладываются в один идеальный линейный статический сценарий. ЛИРА-САПР заранее предполагает, что инженер будет считать сложнее, и дает для этого инструменты внутри основного комплекса.
Четвертое — хорошая BIM-включенность. Revit, Tekla Structures, IFC, SAPFIR, Rhino-Grasshopper, импорт аналитики, передача результатов армирования — все это позволяет использовать ЛИРА-САПР в цифровом проектировании не как островной расчетный пакет, а как полноценный инженерный узел общей модели.
Недостатки и ограничения
ЛИРА-САПР нельзя назвать программой с низким порогом входа. Интерфейс насыщен инженерными сущностями, а сама логика работы предполагает, что пользователь понимает механику сооружений, постановку расчетной схемы, принципы МКЭ, смысл РСН и РСУ, правила задания жесткостей и связей, а также конструктивную интерпретацию результатов. Для новичка это может выглядеть перегруженно, и программа действительно требует серьезного вхождения в методику работы.
Вторая особенность — требовательность к качеству исходной модели. ЛИРА-САПР очень много умеет, но из этого следует и обратная сторона: если неверно поставить локальные оси, не согласовать типы КЭ, ошибиться с жесткими вставками, закреплениями, расчетными сечениями или сочетаниями нагрузок, программа посчитает именно ту задачу, которую ей задали, а не ту, которую пользователь имел в виду. Это не недостаток решателя, а нормальное свойство серьезной расчетной системы, но учитывать его нужно обязательно.
Третье ограничение связано с тем, что богатый функционал не означает полной автоматизации инженерного решения. Подбор арматуры, проверка стальных сечений, расчет кладки, анализ напряжений — все это в ЛИРА-САПР сделано глубоко, но программа не отменяет инженерного контроля. Опасные зоны, концентрации, особенности топологии схемы, корректность сочетаний и конструктивная реализуемость решений все равно остаются задачей специалиста. И чем сложнее объект, тем важнее критически читать то, что выдает программа.
Кому ЛИРА-САПР подходит лучше всего
Лучше всего ЛИРА-САПР подходит тем, кто работает со зданиями и сооружениями как с полноценными расчетно-конструктивными объектами, а не просто ищет универсальный FEM-решатель. Это программа для инженера, который хочет внутри одной среды построить расчетную схему, задать реальные параметры работы конструкции, сформировать сочетания нагрузок, проанализировать НДС и перейти к конструктивной проверке железобетона, стали, кладки и основания. В таком сценарии ЛИРА-САПР раскрывается максимально полно.
Особенно удачно программа ложится на проекты, где нужно считать не только каркас, но и фундаментную систему, взаимодействие с грунтом, динамические эффекты, стадии возведения, локальные отказные сценарии или сложные железобетонные и стальные узлы. Там, где проектная реальность выходит за рамки простого линейного расчета регулярного каркаса, ЛИРА-САПР начинает заметно выигрывать за счет своей предметной инженерной насыщенности.
Если же ключевая задача — максимально быстрый BIM-поток внутри Autodesk или типовой workflow по этажным моделям высотных зданий, то в отдельных сценариях естественнее могут выглядеть Robot Structural Analysis Professional или ETABS. А если нужен максимально универсальный расчетный инструмент общего назначения под самые разные конструктивные системы, часть пользователей логично смотрит в сторону SAP2000. Но именно как специализированный комплекс для расчета строительных конструкций ЛИРА-САПР остается очень сильным выбором.
Итоги
ЛИРА-САПР — это большая и зрелая инженерная система, в которой расчет строительных конструкций доведен до уровня полноценного проектного инструмента. Программа позволяет создавать расчетную схему, работать с узлами, стержнями, пластинами и объемными КЭ, задавать жесткости, материалы, связи, шарниры, нагрузки и сочетания, считать статику, динамику, устойчивость, нелинейность, монтаж и прогрессирующее обрушение, а затем детально анализировать деформации, усилия и напряжения. После этого пользователь не упирается в голые результаты, а может перейти к конструированию железобетона, стали, кладки, работе с основанием и BIM-обмену.
Именно поэтому ЛИРА-САПР ценят не за громкое имя и не за набор маркетинговых обещаний, а за то, что она реально закрывает тяжелую инженерную работу: от постановки модели до интерпретации результата и перехода к проектному решению. Для расчетчика, который хочет работать подробно, контролировать модель и получать инженерно насыщенный результат, ЛИРА-САПР остается одной из самых содержательных программ в своем классе.