Remplanner — это не просто онлайн-планировщик квартиры и не только сервис для расстановки мебели. По сути, это программа для ремонта квартиры, дома и коммерческого помещения, в которой из одной планировки выстраивается полноценный технический дизайн-проект: исходный план, перегородки, мебель, электрика, освещение, отделка, развертки стен, инженерные схемы, расчет объемов и смета. Именно поэтому Remplanner воспринимается не как легкий 3D-редактор, а как рабочий инструмент, который можно довести до уровня монтажной инструкции для бригады.
Главная идея Remplanner в том, что пользователь не рисует каждый лист заново. Он последовательно собирает модель помещения по планировочным листам, а программа уже на этой основе формирует связанные между собой чертежи, развертки, расчетные ведомости и визуализацию. В этом и состоит основное отличие Remplanner от многих интерьерных сервисов, где 3D получается красивым, но инженерная часть и рабочая документация остаются на втором плане.
Remplanner работает как веб-сервис: проект сохраняется в аккаунте, доступен с разных устройств, а сохранение выполняется через иконку дискеты. Отдельного десктопного варианта у программы нет, поэтому стабильный интернет и нормальный запас свободной памяти для нее важны не как мелочь, а как базовое условие работы.
Remplanner
- Дизайн интерьера
- Русский интерфейс
- Просто для новичков
- Требует интернет
- Часть функций платная
- Зависит от браузера
Что такое Remplanner и кому он подходит
Если описывать Remplanner одной фразой, это онлайн-программа для дизайн-проекта квартиры и ремонта, заточенная под прикладную документацию. В ней есть 24 листа рабочих чертежей, интерактивный 3D-конструктор, автоматические развертки стен, расчет объемов и метражей, смета по работам и материалам, а также PDF-альбом для печати и передачи строителям. При этом сервисом пользуются не только дизайнеры: интерфейс специально выстроен так, чтобы с ним мог разобраться и человек без профильного архитектурного бэкграунда.
В практическом смысле Remplanner лучше всего подходит в четырех сценариях. Первый — когда собственник квартиры хочет сделать технический дизайн-проект своими руками и не платить отдельно за каждый лист документации. Второй — когда дизайнеру нужен быстрый онлайн-инструмент для планировки, плана электрики квартиры, расстановки мебели, отделки стен и согласования решений с клиентом. Третий — когда прорабу или ремонтной бригаде нужен не абстрактный красивый интерьер, а понятный набор листов с размерами, высотами, привязками, трассами и раскладками. Четвертый — когда помещение нестандартное по назначению: офис, салон, магазин, сауна, шоурум, мастерская. Remplanner изначально рассчитан не только на квартиры и дома, но и на коммерческие объекты.
Если говорить жестко и без лишней обертки, Remplanner особенно силен там, где нужен именно ремонтный проект. Не просто примерить диван, а собрать план перегородок, план розеток и выключателей, разводку света, схему отопления, отделку полов и потолков, развертки стен и расчет материалов. В этом профиле у программы очень конкретная специализация.
Кратко о возможностях
| Параметр | Что дает Remplanner |
|---|---|
| Формат работы | Полностью онлайн |
| Базовая специализация | Ремонт, технические чертежи, планировка, 3D |
| Основной результат | Рабочие листы, инженерные схемы, развертки, смета |
| Уровень входа | Подходит новичкам, но не упрощен до игрушки |
| Ключевая сильная сторона | Связка планировки, инженерки, расчетов и PDF |
| Типовые объекты | Квартиры, дома, офисы, салоны, магазины и другие помещения |
Эта логика подтверждается и структурой сервиса: набор листов охватывает планировку, мебель, электрику, освещение, инженерные сети, отделку и итоговую документацию, а 3D встроен не как отдельный продукт, а как продолжение чертежей.
Как устроен интерфейс Remplanner
Интерфейс Remplanner сделан не по принципу одно большое полотно со случайными инструментами, а по этапам. Это важно, потому что новичку легче не в хаосе кнопок, а в последовательной структуре. Внутри программы инструменты сгруппированы по назначению: есть панель инструментов, панель планировочных листов, блок дополнительных модулей и режимов, а также блок настройки внешнего вида и дополнений. На каждом листе отображается свой набор инструментов, то есть Remplanner не подсовывает все сразу. Это одна из причин, почему он воспринимается проще классических CAD-систем.
Сама логика работы в Remplanner строится вокруг листов. Сначала пользователь заполняет основу, затем переходит к следующему этапу. Это не косметическая особенность интерфейса, а рабочий принцип: программа буквально заставляет идти от геометрии и помещений к мебели, потом к электрике, свету, отделке и расчетам. За счет этого меньше шанс, что человек начнет рисовать розетки до того, как вообще определился со стенами и дверями.
Основные блоки интерфейса
Панель инструментов отвечает за то, чем именно вы рисуете на текущем листе: стены, проемы, мебель, линии, зонирование, элементы инженерки.
Панель планировочных листов отвечает за этап проекта: исходный план, перегородки, мебель, электрика, освещение, отделка и дальше по цепочке.
Дополнительные модули и режимы собирают все, что связано с обработкой, анализом, печатью и дополнительными действиями.
Настройка внешнего вида и дополнения позволяет менять режим отображения, подсветки, размеры, комментарии и прочие вещи, влияющие на читаемость рабочего поля.
Навигация и управление полем
Перемещение чертежного поля в Remplanner делается простым зажатием левой кнопки мыши на свободном месте и протягиванием курсора в сторону. Масштаб меняется колесом мыши или ползунком в правом нижнем углу. Для точного подталкивания узлов стен, мебели и других предметов используются стрелки клавиатуры. Клавиша Escape быстро отменяет активный инструмент или закрывает контекстное меню. Это мелочи, но на длинных проектах именно такие вещи определяют, насколько сервис удобен в ежедневной работе.
Опции отображения
В правом нижнем углу Remplanner вынесен полезный набор переключателей, который заметно влияет на скорость работы. Здесь можно:
-
скрывать размеры, если они мешают рисовать;
-
отключать подсказки и магниты;
-
включать подсветку мебели;
-
включать подсветку розеток;
-
добавлять дополнительные расстояния и размеры;
-
ставить текстовые метки и комментарии;
-
центрировать план, если рабочее поле уехало;
-
очищать чертеж, если нужно начать заново.
Сильная сторона этого блока в том, что Remplanner не пытается навязать один режим. На ранней стадии проекта удобно работать с подсказками и магнитами, а когда начинается тонкая доводка, наоборот, полезно часть визуального шума выключить. Для реального плана ремонта квартиры это гораздо важнее, чем кажется на первом знакомстве.
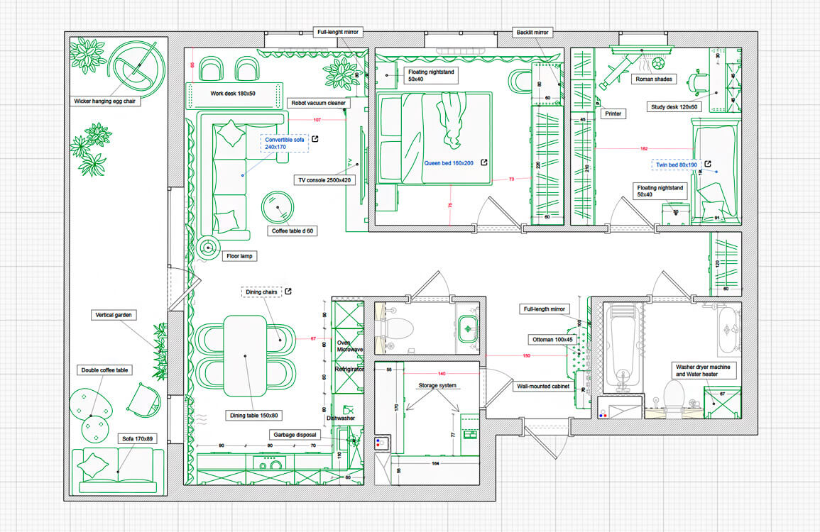
Ниже видно, как выглядит один из типовых листов Remplanner с мебелью, подписями и размерами прямо в рабочем поле. Это хорошо показывает общую идею интерфейса: чертеж остается главным, а не декоративная оболочка.

Лист расстановки мебели в Remplanner: объекты, подписи и размеры отображаются прямо на плане.
С чего начинается работа: создание проекта и исходный план
Старт работы в Remplanner всегда один и тот же: регистрация, создание проекта, сохранение через иконку дискеты и переход к базовой геометрии помещения. Сам сервис бесплатен для онлайн-использования в базовом режиме, поэтому входной барьер низкий. Но дальше важен не сам факт регистрации, а порядок действий: Remplanner хорошо работает тогда, когда проект собирают по этапам, а не прыгают между листами хаотично.
Первое, что нужно нарисовать, — стены. Это не рекомендация, а правильная рабочая последовательность. В Remplanner именно стены задают основу всего последующего проекта: помещения, двери, окна, мебель, инженерку, отделку и расчеты. Если геометрия плавает, все, что будет сделано поверх нее, потом придется переделывать.
Как рисуются стены
На листе Исходный план стены — это первый инструмент в панели. Пользователь зажимает левую кнопку мыши в начальной точке стены, тянет курсор в нужном направлении и отпускает кнопку в конечной точке. После отпускания стена фиксируется на чертеже. С практической точки зрения это быстрее, чем вводить все сегменты как отдельные числовые команды, но при этом дает достаточную точность для проекта ремонта.
Remplanner советует вести стены по часовой стрелке и в одном направлении. Это не эстетика, а способ избежать ошибок стыковки. Когда соседние стены соединяются корректно, круг рисования подсвечивается красным, и пользователь понимает, что соединение будет выполнено правильно. Если этого не происходит, потом может не определиться помещение, не появится заливка комнаты и не встанут проемы.
Любые действия с уже нарисованной стеной выполняются через правый клик. У стены открывается контекстное меню, где доступны удаление, изменение размера и другие параметры. При коротком левом клике активируется режим перемещения стены и ее узлов: можно тянуть за торцевые кружки или за центральный маркер всей стены. Это один из самых удобных фрагментов Remplanner, потому что правка геометрии здесь делается визуально, а не через отдельные команды редактирования, как в более тяжелых системах.
Точные размеры и толщина стен
В Remplanner можно сначала нарисовать стену произвольной длины, а потом задать точный размер в ее свойствах через контекстное меню. Есть и более тонкая настройка: перемещение узлов стрелками и изменение толщины стены как до рисования, так и после него. Толщина задается целым значением в сантиметрах, а для уже построенной стены ее можно скорректировать через контекстное меню и отдельное действие по регулировке толщины.
Здесь есть один принципиальный момент: программа не позволяет вручную перебивать уже посчитанные размеры на произвольные значения. То есть Remplanner работает как инструмент геометрии, а не как редактор подписи размера. Для рабочей документации это скорее плюс, чем минус, но пользователю, который привык просто подставлять числа поверх картинки, к этому нужно привыкнуть.
Замкнутые помещения и высоты
Чтобы Remplanner понял комнату как отдельную зону, стены и перегородки должны образовать корректный замкнутый контур. Когда это происходит, появляется белая заливка помещения. Только после этого в стены нормально вставляются дверные и оконные проемы, а сам сервис может дальше правильно считать площади, отделку и привязанные технические листы. Если заливки нет, нужно искать пересечение, разрыв или наложение стен.
Высота помещения задается на листе, где указываются названия комнат. Именно там Remplanner связывает имя помещения с его высотой. Это важно для разверток, инженерных привязок, 3D-сцены и части расчетов. При этом программа оперирует высотой помещения в целом, а не отдельной высотой конкретной стены.
Функция Нарисовать план по картинке
Для тех случаев, когда есть план БТИ, схема от застройщика или любой другой исходник, в Remplanner предусмотрена функция Нарисовать план по картинке. Она находится внизу рабочего окна на листе Исходный план. Пользователь загружает изображение и масштабирует его по известным размерам стен или площади помещения, а затем обводит базовую геометрию. Это полезно не только для старта с нуля, но и для переноса чужого плана в рабочую среду, где потом уже можно собирать план электрики, мебели и отделки.
В реальном ремонте эта функция экономит много времени. Не нужно заново изобретать форму квартиры на глаз — можно взять исходную картинку, быстро задать масштаб и перейти к точной обрисовке. Для онлайн-планировщика квартиры это одна из самых полезных функций старта.
Двери, окна и перегородки
Когда базовые стены готовы, Remplanner переходит к проемам. Дверные и оконные проемы здесь устанавливаются строго поверх стен. Между стенами нельзя оставлять дыру под дверь или окно — тогда элемент просто не встанет корректно. На практике это один из типичных промахов новичков, и Remplanner здесь довольно прямолинеен: сначала стена, потом проем на стене.
Окна находятся в панели инструментов листа Исходный план, а двери — либо там же, либо на листе Перегородки, если дверь относится к возводимой перегородке. После установки проема пользователь правым кликом вызывает контекстное меню, где может изменить размер, переместить элемент и поменять сторону открывания. Для двери это особенно важно, потому что логика открывания напрямую влияет на эргономику узких прихожих, санузлов и кухонных проходов.
Перегородки в Remplanner — это отдельный этап, а не дорисовка на том же исходном плане. Такой подход удобен тем, что сервис разделяет существующую геометрию и проектируемые изменения. Для реального ремонта это правильно: строители, дизайнеры и собственник сразу видят, что относится к исходному состоянию, а что — к новой планировке.
У программы здесь есть и ограничение: полукруглые стены Remplanner не поддерживает. Если проект завязан на сложную пластику, радиусные перегородки, мансарды или нестандартную архитектурную оболочку, сервис быстро упирается в свой профиль. Он заточен под интерьер и ремонт, а не под сложную архитектурную форму.
Расстановка мебели, сантехники и оборудования
После формирования помещений наступает тот этап, где многие впервые понимают, что Remplanner — это не просто программа для рисования планировки. Лист мебели в сервисе нужен не для красоты, а для проверки сценариев жизни в пространстве: как откроются двери, пройдет ли человек между диваном и столом, поместится ли шкаф, где окажутся розетки, как будет работать кухня, не конфликтуют ли сантехника и мебель. Именно здесь план расстановки мебели превращается в основу всего дальнейшего проекта.
Работа начинается с перехода на лист мебели и выбора предмета в панели инструментов. Есть важное правило: мебель, сантехника и другие элементы в Remplanner ставятся только внутрь замкнутых помещений. На пустое поле за пределами комнаты объект не поставить. Это не прихоть, а защита от мусора на плане и путаницы между рабочими зонами и случайными объектами.
При добавлении нового предмета можно сразу ввести его точный размер в небольшом появляющемся меню. Если объект уже установлен, его параметры меняются правым кликом через контекстное меню. Там же доступны поворот и зеркалирование. После нажатия на иконку поворота пользователь тянет за один из угловых маркеров левой кнопкой мыши. То есть Remplanner позволяет не просто ставить диваны и шкафы, а реально подгонять каждый объект под фактические габариты мебели и оборудования.
Перемещение предмета делается простым перетаскиванием левой кнопкой мыши. Копирование — либо через контекстное меню, либо сочетанием Ctrl+C по выделенному объекту. Группа предметов выделяется двумя способами: последовательным выбором с зажатой Ctrl или через специальный инструмент Выделить группу на нижней панели, который позволяет взять набор объектов рамкой. Для кухни, гардеробной, санузла и других насыщенных зон эта функция реально ускоряет правки.
Насколько богат каталог
С точки зрения наполнения Remplanner предлагает большой 2D/3D-каталог. Для планировок и мебели речь идет более чем о 2000 типах предметов и объектов, а в 3D-библиотеке — о 5000+ моделях мебели и декора и 3500+ материалов, плиток и текстур. Для задачи собрать ремонт и проверить логику интерьера этого действительно много. Каталог не исчерпывает все бренды мира, но закрывает основной объем типовых сценариев: кухня, гостиная, спальня, сантехника, техника, декоративные элементы, коммерческие помещения.
Можно ли добавить свой предмет
Здесь у Remplanner есть четкая граница. Произвольный новый предмет мебели как полноценный каталоговый объект добавить нельзя. Если нужной вещи нет, можно использовать похожий объект, снабдить его комментарием или нарисовать через инструмент Нарисовать элемент на нижней панели. Но у нарисованного элемента есть принципиальное ограничение: он отображается только в 2D и не появляется в 3D. Кроме того, свободное рисование работает прямыми отрезками; сложные дуги придется собирать из коротких сегментов.
Это один из тех моментов, где Remplanner заметно отличается от систем, ориентированных на свободное моделирование. Зато у него есть другой выигрыш: скорость. Для ремонтного проекта чаще важнее быстро и точно обозначить нужный предмет, чем неделями моделировать идеальную форму тумбы.
Какие задачи реально можно сделать в Remplanner
На этом этапе важно разделить два подхода. Первый — что у программы вообще есть. Второй — что в ней реально можно закрыть в живом проекте. В случае Remplanner второй подход важнее, потому что сервис полезен не набором красивых кнопок, а тем, что его листы складываются в понятный маршрут от замера до монтажной документации.
Ниже — не абстрактные функции, а реальные задачи, которые Remplanner закрывает в нормальном сценарии ремонта.
| Практическая задача | Где это делается в Remplanner | Что получается на выходе |
|---|---|---|
| Построить исходную геометрию квартиры | Исходный план | Обмерная основа под весь проект |
| Отметить демонтаж и новые перегородки | Соответствующие планировочные листы | Четкое разделение старого и нового |
| Сделать план расстановки мебели | Лист мебели | Проверка эргономики и сценариев использования |
| Подготовить план розеток и выключателей | Листы розеток и выключателей | Монтажные листы с привязками и высотами |
| Собрать план освещения | Лист освещения | Сценарии света и понятная логика управления |
| Нарисовать план электропроводки | Лист Электропроводка | Трассы кабелей и расчет метража |
| Спроектировать сантехнику и воду | Профильные инженерные листы | Схема выводов, труб и подключения оборудования |
| Задать отделку полов, стен, потолков | Листы отделки | Монтажные инструкции для чистовой отделки |
| Получить развертки стен | Режим Стены | Плоские проекции стен с электрикой, отделкой и мебелью |
| Посчитать объемы и смету | Разделы расчетов и сметы | Метражи, спецификации и перечни материалов |
| Передать комплект рабочим | PDF-альбом и ссылки доступа | Печатный и цифровой комплект документации |
Эта связка и делает Remplanner сильным. Он закрывает не один кусок процесса, а весь цикл: планировка квартиры онлайн, план расстановки мебели, инженерные листы, план отделки стен, расчет строительных материалов, смета на ремонт и финальная выдача проекта.
Электрика, свет и инженерные листы
Если выбирать зону, в которой Remplanner особенно выгодно отличается от большинства интерьерных планировщиков, это именно электрическая и инженерная часть. Программа позволяет не только расставить розетки и выключатели, но и полноценно собрать план электрики квартиры: электроточки, свет, сценарии включения, теплые полы, трассы проводки, спецификации и расчет кабеля. Для сервиса, которым пользуются не только профи, это очень сильный уровень.
На электрических листах пользователь может размещать розетки, выключатели, светильники, терморегуляторы и другие элементы. Высота розеток и аналогичных элементов задается через контекстное меню: поставили объект, кликнули по нему правой кнопкой мыши, указали высоту. Если на стене нужно показать розетку или выключатель над уже установленным элементом, объект подводится чуть выше — и Remplanner примагничивает его вторым слоем. Для рабочего плана это важная мелочь: иначе многоуровневые группы розеток пришлось бы обозначать обходными способами.
Лист Электропроводка
Для трасс используется отдельный лист Электропроводка. На нем линиями обозначаются основные электротрассы. Чтобы расчет кабеля был корректным, в проекте должны быть установлены электрощиток, свет и электроточки — тогда программа считает метраж проводов с учетом подъемов и опусков. Способ ведения кабеля — по полу или по потолку — выбирается в контекстном меню установленного электрощитка. Это уже не декоративная схема, а вполне прикладная модель инженерной логики помещения.
Ниже — пример того, как Remplanner показывает лист с электроточками и выводами. Хорошо видно, что программа работает не символами ради символов, а именно монтажной привязкой: на плане читаются высоты, подписи и позиции элементов.

Пример электрического листа в Remplanner: розетки, выводы и монтажные подписи видны прямо на плане.
Инструмент Соединительный провод
На листе Выключатели есть инструмент Соединительный провод. Он нужен для визуализации очередности соединения осветительных приборов между собой и связи этих цепей с конкретным выключателем. Пользователь выбирает инструмент и последовательно кликает на выключатель и источник света — между ними появляется линия соединения. Несколько приборов можно объединить в одну цепь и привязать к одному выключателю. Двойной выключатель может управлять двумя цепями, а проходные выключатели позволяют управлять одним источником света из двух концов помещения. Для коридоров, длинных холлов и спален это очень практичная вещь.
План освещения
Remplanner поддерживает широкий набор световых сценариев: от простых люстр и точечных светильников до трековых и линейных систем. Это важно, потому что в ремонте проблема часто не в том, чтобы нарисовать лампочку, а в том, чтобы увязать тип света с логикой включения, мебелью и чистовой отделкой. В Remplanner свет — не отдельная картинка, а часть проектной модели.
Что Remplanner считает по электрической части
В расчетных разделах программа учитывает спецификацию розеток и выключателей, количество светильников и люстр, трековое и линейное освещение, а также метраж проводов и кабелей разных сечений. Это означает, что электрический блок в Remplanner не заканчивается на красивом плане для согласования, а может доводиться до сметной и закупочной стадии.
Еще один пример — лист проводки. Здесь уже видно, как сервис показывает маршрут кабелей по объекту, а не только конечные точки установки. Для человека, который собирает план электропроводки квартиры самостоятельно, это одна из самых ценных частей Remplanner.

Пример листа Электропроводка в Remplanner: трассы кабелей, группы и распределение по помещению.
Сантехника, водоснабжение, отопление и другие инженерные части
Инженерный блок Remplanner не ограничивается электричеством. В программе можно проектировать сантехнические точки, водоснабжение и канализацию, отопление, теплые полы, а также системы кондиционирования и вентиляции. Для софта, который многие воспринимают как планировщик интерьера, это неожиданно глубокий набор.
Сантехнический инструментарий закрывает путь от простой расстановки приборов до полноценной схемы воды и канализации: от коллекторов до точек вывода. Причем Remplanner умеет строить водяную сеть автоматически: достаточно разместить сантехнические приборы по помещениям, и программа берет на себя значительную часть рутинной схемной логики. Для частного пользователя это серьезное упрощение, а для дизайнера — способ быстрее собрать рабочую основу.
В части отопления программа позволяет расставлять радиаторы и котлы, строить схему магистралей и коллекторов, а также учитывать контуры теплых полов. Для квартиры это особенно полезно, когда нужно увязать отделку, мебель, зоны теплого пола, терморегуляторы и обстановку помещения в одной модели.
Ниже — пример инженерного листа по сантехнике. Видно, что Remplanner показывает не только сами приборы, но и маршруты, высоты и точки подключения, то есть сервис реально работает как программа для рабочих чертежей, а не просто как визуальный конструктор.

Сантехнический лист в Remplanner: выводы воды и канализации, трассы и привязки по помещению.
Кондиционирование и вентиляция
Отдельный плюс Remplanner — инструменты для кондиционирования и вентиляции. В проекте можно задавать расположение наружных и внутренних блоков, трассы между ними, а также планировать простые вытяжные решения и более сложные приточно-вытяжные схемы с воздуховодами. Для большинства квартир этого более чем достаточно; для коммерческих помещений возможность тоже полезная, хотя при очень сложных инженерных системах уже могут понадобиться более специализированные пакеты.
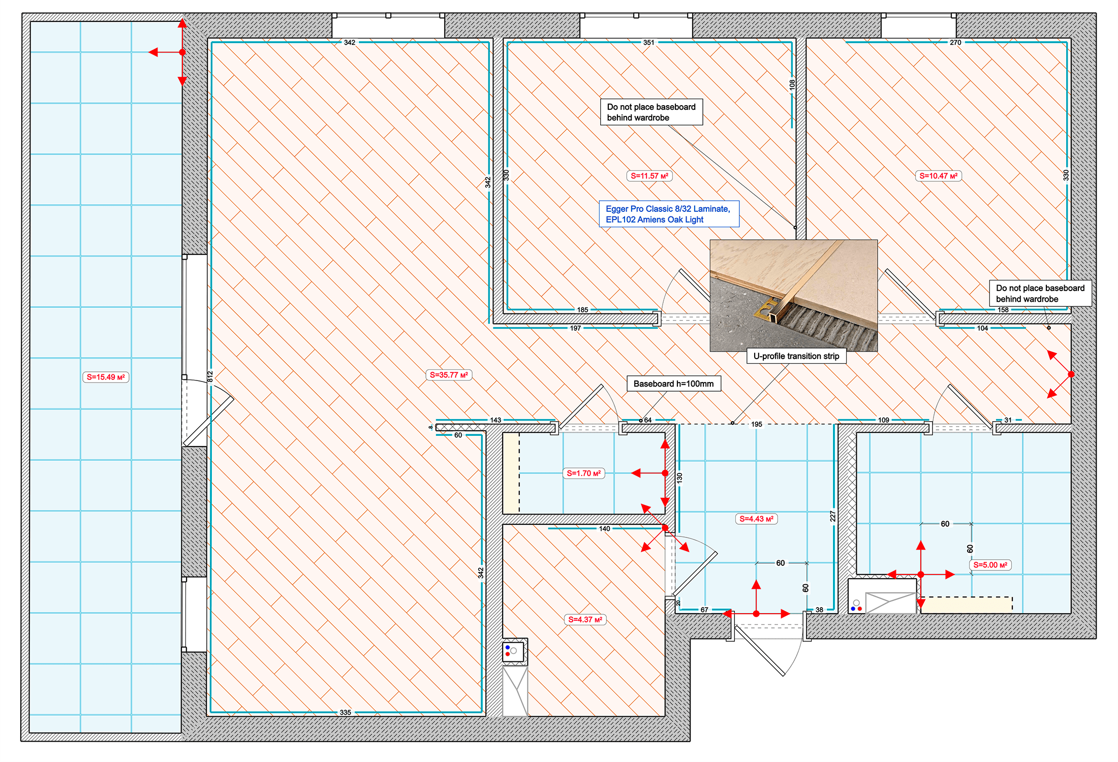
Отделка стен, полы, потолки и развертки
Когда геометрия и инженерка устоялись, Remplanner переходит к той части, где из голого плана ремонта рождается полноценный технический дизайн-проект: отделка полов, стен и потолков, раскладки, зонирование и развертки. Именно здесь программа особенно хорошо показывает свою профильную специализацию. Она не просто хранит материалы, а превращает их в монтажные листы и расчетные данные.
На листе Напольные покрытия можно задавать разные материалы и совмещать несколько покрытий в одном помещении. Для этого используется инструмент зонирования. Если, например, нужно показать плитку в прихожей и инженерную доску в проходной части кухни-гостиной, помещение делится на зоны и каждая зона получает свой материал. То есть Remplanner нормально работает со смешанными сценариями, а не только по принципу одна комната — одно покрытие.
Если требуется раскладка плитки или другого покрытия, она задается через контекстное меню уже установленного покрытия. Отдельным инструментом указывается точка начала укладки. Это важный момент: в реальном ремонте не хватает знать, что в комнате будет плитка 600×600. Нужно понимать направление, старт, подрезки и сопряжения. Remplanner дает именно этот уровень детализации.
Зонирование
Зонирование в Remplanner используется не только для полов. С его помощью можно делить поверхность по конфигурации, а не просто по прямой от стены до стены. Линия зонирования строится отрезками и может иметь сложную форму. Это полезно там, где чистовая отделка идет не по всему помещению одинаково: кухонный фартук, акцентная зона ТВ, участок декоративных панелей, комбинированная покраска, разделение текстур на потолке.
Отделка стен и кухонный фартук
Для листа Отделка стен в Remplanner можно задавать отдельные участки отделки прямо на стене. В том числе поддерживаются комбинированные схемы: фартук, горизонтальное разделение, разные высоты отделки на одной плоскости. После установки отделки дополнительные параметры вроде высоты настраиваются через контекстное меню. Для 3D к установленной отделке можно назначить текстуру. Это уже полноценная рабочая схема, а не просто цветовое пятно на картинке.
Потолки
Потолочный блок в Remplanner рассчитан не только на обозначение материала, но и на конструктивные решения: многоуровневые потолки, гипсокартонные короба, закарнизные ниши и другие узлы, которые в ремонте постоянно влияют на свет, вентиляцию, кондиционирование и шкафы. Сильная сторона сервиса в том, что потолок здесь не оторван от остальных листов, а встроен в общую модель проекта.
Развертки стен
Одна из самых сильных функций Remplanner — автоматические развертки стен. Открываются они через иконку Стены на верхней панели слева: после этого пользователь кликает на нужную комнату и получает набор боковых проекций стен с мебелью, отделкой и электрикой. На практике это огромная экономия времени. В классическом ручном подходе такие проекции приходится строить отдельно; здесь они вырастают из уже собранной планировочной модели.
Ниже — пример развертки стены в Remplanner. Хорошо видно, почему эта функция так ценится: на одной плоскости читаются привязки, розетки, высоты, мебель и декоративные зоны. Для кухни, санузла, ТВ-стены и любого узла с насыщенной отделкой это намного полезнее, чем смотреть только на общий план сверху.

Пример автоматической развертки стены в Remplanner: отделка, мебель и электрика собираются в одну проекцию.
План отделки пола
Отдельно стоит отметить, что Remplanner умеет оформлять полы как монтажный лист, а не только как цветную подложку. На плане читаются площади, направление раскладки, примечания и переходы между материалами. Для закупки и для мастера это куда полезнее, чем просто список материалов в тексте.

Лист напольных покрытий в Remplanner: площади, направление раскладки и примечания к монтажу.
3D-визуализация в Remplanner
3D в Remplanner устроен правильно для задач ремонта: он не отрывается от 2D-чертежей, а строится на их основе. Пользователь сначала делает геометрию, расставляет мебель, выбирает отделку, задает электрику и свет, а затем получает визуализацию, где можно проверить объем, материалы, расположение предметов, цвет стен и общую композицию интерьера. У Remplanner больше 5000 3D-моделей мебели и декора и 3500+ материалов, плиток и текстур, а также есть возможность видеть в 3D розетки, выключатели и освещение.
С точки зрения навигации 3D-режим сделан просто: зажатая левая кнопка мыши вращает камеру вокруг оси, зажатая правая — двигает камеру продольно, колесо мыши отвечает за приближение и удаление, а стрелки клавиатуры помогают перемещаться по сцене. Для быстрого покомнатного просмотра можно выбрать комнату на схеме в правом нижнем углу; повторный клик возвращает отображение всей планировки. На левой панели есть режим среза стен до одного метра — это удобно, когда нужно заглянуть внутрь пространства без полного исчезновения конструкции.
Сохранение кадра в Remplanner тоже делается прямо в 3D: пользователь выставляет нужный ракурс и нажимает иконку Сохранить изображение с фотоаппаратом на верхней панели. Изображение скачивается в папку загрузок браузера. Для быстрой презентации интерьера этого достаточно.
Насколько хорош 3D-режим на практике
Здесь важно не путать назначения программ. 3D-визуализация Remplanner полезна для проверки дизайна и ремонта: как смотрятся материалы, вписывается ли мебель, нет ли конфликтов в отделке, как читается свет, не перегружен ли интерьер, хорошо ли работает выбранная схема. Но если нужна по-настоящему выставочная фотореалистичная картинка для маркетинга, конкурсной подачи или дорогой клиентской презентации, Remplanner не конкурирует с тяжелыми рендер-связками. Его визуализация быстрая, наглядная и прикладная, а не выставочная.
Именно поэтому Remplanner хорош для задачи увидеть будущий ремонт до начала работ, но не обязательно лучший выбор для задачи сделать рекламный интерьерный кадр уровня каталога премиального девелопера.
Смета, объемы, метражи и расчет стройматериалов
Одна из самых полезных особенностей Remplanner — то, что проект не остается просто набором листов. Программа считает площади, метражи, объемы и формирует подробную смету по работам и строительным материалам. Причем считает не только очевидные вещи вроде площади пола, но и достаточно широкий спектр позиций, которые в обычном ремонте часто теряются между дизайнером, прорабом и снабжением.
В разделе расчетов Remplanner учитывает:
-
объемы укладки напольных покрытий;
-
площади стен под обои и покраску;
-
объемы укладки плитки, керамогранита и мозаики;
-
метражи плинтусов и потолочных молдингов;
-
подоконники и оконные откосы;
-
радиаторы и разводку отопления;
-
спецификацию розеток и выключателей;
-
количество светильников, люстр, трекового и линейного освещения;
-
метраж проводов и кабелей;
-
спецификацию напорных труб и канализации;
-
расчет возводимых перегородок;
-
гидроизоляцию и звукоизоляцию;
-
штукатурные и малярные работы.
Для пользователя это означает одну простую вещь: Remplanner полезен не только на этапе идеи, но и на этапе бюджета. То есть программа помогает не просто составить план ремонта квартиры, а еще и связать его с материальной частью. Если проект собран аккуратно, смета и расчетные ведомости становятся очень полезной точкой опоры для закупки, общения с подрядчиком и контроля перерасхода.
Разумеется, это не заменяет исполнительную проверку на объекте, особенно при кривых стенах, нестандартной геометрии и непредсказуемых условиях монтажа. Но как база под расчет строительных материалов и объемов работ Remplanner дает заметно больше, чем большинство обычных интерьерных планировщиков.
PDF-альбом, хранение проекта и совместная работа
Для любого ремонтного сервиса в какой-то момент наступает главный вопрос: что дальше делать с проектом? Смотреть его только у себя на экране мало. Его нужно распечатать, отправить клиенту, показать бригаде, открыть на телефоне на объекте, иногда — дать кому-то отредактировать. Remplanner эту проблему решает системно.
PDF-альбом
В Remplanner можно скачать PDF-альбом с полноценным комплектом рабочей документации для ремонта. Он формируется на основании нарисованных листов и подходит для печати и передачи бригаде. В выгрузке появляется стандартная рамка и штамп, а по содержанию альбом максимально повторяет то, что пользователь видит на экране. Ограничений по количеству генераций PDF-альбома у сервиса нет.
Это сильный момент: проект не нужно пересобирать в другом пакете только ради печати. Если листы сделаны аккуратно, Remplanner сам доводит их до состояния, пригодного для передачи в работу.
Формат .plan
Кроме PDF, сервис использует внутренний формат .plan. Это файл для хранения и обмена данными между пользователями и устройствами. Открывается он только в самом Remplanner: через загрузку в новый проект или поверх существующего. С практической точки зрения .plan полезен как резервный экспорт и как способ переслать проект другому человеку, если прямой совместный доступ не используется.
Доступы и совместная работа
Remplanner как облачная система позволяет работать с проектом с любого устройства. Для отдельных проектов предусмотрены режимы гостевого просмотра и редактирования. В PRO-сценарии можно получить две прямые ссылки — на просмотр и на редактирование — и передать их другому человеку. При этом получателю не нужна регистрация: проект открывается по прямой ссылке. Это удобно и для клиента, и для строителей, и для коллег по проекту.
Если PRO-режим не используется, проект все равно можно переслать в виде файла .plan, но тогда получатель должен быть зарегистрирован в сервисе. Такой подход не так удобен, как прямые ссылки, но как способ обмена рабочими проектами он вполне рабочий.
Что Remplanner не делает
Важное ограничение: Remplanner не объединяет все данные проекта на одном листе. Информация распределена строго по назначению, как в строительной документации. То есть нельзя нажать условную кнопку показать вообще все сразу на одном чертеже. Для кого-то это неудобно, но с профессиональной точки зрения логика здравая: иначе лист превращается в нечитаемую кашу.
Бесплатная версия и PRO
Remplanner дает базовые 2D-инструменты бесплатно и без ограничения по времени. Это важный момент, потому что у многих конкурентов бесплатный доступ либо урезан до демо, либо фактически не пригоден для нормальной работы. Здесь же можно всерьез начать проект, понять логику сервиса и собрать основу планировки без оплаты.
PRO в Remplanner открывает уже профессиональную часть: предметы и инструменты с пометкой pro, 3D-визуализацию, применение текстур к элементам, выгрузку чертежей в PDF, доступ к разделам Объемы и метражи и Смета, а также часть расширенных функций совместной работы. По сути, бесплатный режим — это хороший вход и базовая 2D-основа, а PRO — уже полноценный пакет под законченную рабочую документацию и визуализацию.
Что меняется после окончания PRO
После окончания активного PRO-периода сами чертежи и элементы проекта не исчезают. Их можно просматривать и использовать дальше. Но пропадает возможность добавлять новые PRO-элементы, а также пользоваться PRO-функциями вроде 3D-визуализации и PDF-выгрузки. Это важно понимать заранее: Remplanner не отбирает проект, но часть расширенных действий блокируется.
Разница между режимами в рабочем смысле
| Сценарий | Бесплатная версия | PRO |
|---|---|---|
| Базовая планировка и 2D-чертежи | Да | Да |
| Длительность использования | Без ограничения по времени | По лицензии |
| 3D-визуализация | Нет | Да |
| PDF-альбом для печати | Нет | Да |
| Объемы, метражи, смета | Нет | Да |
| PRO-предметы и инструменты | Нет | Да |
| Расширенный проект для бригады | Ограниченно | Полноценно |
Если нужен именно технический дизайн-проект с передачей в работу, реальная ценность Remplanner раскрывается в PRO. Если задача — нарисовать базовую планировку, проверить мебель и собрать черновую основу, бесплатного режима уже достаточно, чтобы понять механику сервиса.
Сильные стороны Remplanner
1. У Remplanner очень правильный фокус
Многие программы для планировки квартиры сильны либо в картинке, либо в голой чертежной части. Remplanner собран вокруг ремонта и рабочего проекта. Это не мелочь: именно поэтому здесь так много внимания уделено плану электрики квартиры, отделке стен, перегородкам, инженерным сетям, PDF-альбому и смете.
2. Структура по листам действительно помогает
Разделение проекта на планировочные листы сначала может казаться формальностью, но на практике оно дисциплинирует и ускоряет работу. Пользователь идет от исходного плана к мебели, от мебели — к инженерке, от инженерки — к отделке, а дальше — к разверткам и расчетам. Это защищает от типичной ошибки, когда в хаотичных редакторах человек начинает улучшать интерьер до того, как вообще определился с геометрией.
3. У программы очень полезный инженерный блок
Листы по розеткам, выключателям, свету, проводке, сантехнике, воде, отоплению, теплым полам, кондиционированию и вентиляции — это уже уровень не простого планировщика, а полноценного ремонтного инструмента. В обычной жизни именно эта часть чаще всего становится причиной переделок. Remplanner позволяет продумать ее заранее.
4. Автоматические развертки стен экономят массу времени
Для кухни, санузла, ТВ-зоны, гардеробной и любых насыщенных стен развертки — критически важны. Remplanner снимает с пользователя необходимость строить их вручную. Это одно из самых сильных практических преимуществ сервиса.
5. Проект можно довести до выдачи строителям
PDF-альбом, доступ по ссылке, облачное хранение, .plan-файлы, связка листов, расчетные ведомости — все это делает Remplanner не учебной игрушкой, а рабочей программой, из которой можно реально выдать комплект в ремонт.
6. Входной порог низкий, а потолок возможностей высокий
Remplanner не требует архитектурной подготовки для старта, но при этом не скатывается в примитив. Можно начать как новичок с плана по картинке, а закончить полноценным комплектом для ремонта. Это редкое сочетание.
Ограничения и слабые места Remplanner
1. Онлайн-формат — одновременно плюс и минус
С одной стороны, облачный формат удобен: проект доступен с любого устройства, не надо ничего устанавливать, удобно делиться ссылками. С другой — Remplanner зависит от стабильного интернета и достаточного объема свободной памяти на компьютере. Для пользователя, который принципиально хочет автономный офлайн-инструмент, это минус.
2. Программа не дает вручную подменять размеры
Если вы привыкли подрисовать размер поверх неточной геометрии, Remplanner это не позволит. Сервис считает размер следствием геометрии, а не декоративной подписью. Для профессиональной логики это правильно, но часть пользователей сначала воспринимает это как ограничение.
3. Нет полукруглых стен и сложной архитектурной пластики
Радиусные стены, мансарды, сложные формы, полноценная архитектурная оболочка — не профиль Remplanner. Сервис ориентирован на интерьеры и ремонт. Для сложной архитектуры лучше подходят CAD/BIM-решения и системы с более свободным моделированием.
4. Пользовательские объекты ограничены
Свои произвольные мебельные элементы нельзя добавлять как полноценные каталоговые предметы. Да, можно использовать похожие объекты или рисовать свои элементы в 2D, но для тех, кто работает с очень специфической мебелью, брендовыми позициями и нестандартными предметами, это слабое место.
5. Свободное рисование не превращает Remplanner в CAD
Инструмент Нарисовать элемент полезен, но он не заменяет полноценное свободное моделирование. Он рисует прямыми отрезками, работает как вспомогательный 2D-инструмент и не отображается в 3D. То есть это способ обозначить нестандартный элемент, а не создать полнофункциональную модель.
6. 3D-режим функционален, но не премиально фотореалистичен
Для проверки планировки, материалов, света и общей композиции Remplanner хорош. Для очень дорогих презентаций, рекламных визуализаций и архитектурного рендера — уже нет. Тут его 3D нужно оценивать по назначению, а не ждать от него уровня специализированных рендер-движков.
Сравнение с аналогами
Remplanner нельзя оценивать в вакууме. У него есть вполне конкретные конкуренты, и сравнивать нужно не по принципу кто красивее на главной странице, а по реальной рабочей логике.
Planner 5D
Planner 5D делает ставку на быстрый 2D/3D-дизайн, AI-подход и визуализацию. Сервис подчеркивает AI-powered home design, реалистичные 4K-рендеры и функцию преобразования загруженного плана или PDF в редактируемый 3D-проект. Для пользователя это означает очень сильный старт в сценариях загрузил план — быстро получил модель — начал работать с интерьером.
Remplanner на этом фоне выглядит менее эффектно с точки зрения AI-маркетинга, зато заметно сильнее в рабочей документации под ремонт. У него есть 24 листа, автоматические развертки стен, инженерные листы, электротрассы, сантехника, HVAC-блок, расчет объемов и смета, а также PDF-альбом для передачи в работу. То есть Planner 5D лучше подходит тем, кто хочет быстро проектировать и визуализировать интерьер, а Remplanner — тем, кто хочет довести проект до монтажной логики и выдать его строителям.
На практике выбор между ними простой. Если нужен удобный 2D/3D-редактор с AI-конвертацией плана и красивыми рендерами, Planner 5D выигрывает. Если нужен именно план ремонта квартиры, план розеток и выключателей, развертки стен, расчет строительных материалов и рабочая документация — Remplanner объективно полезнее. Это не вопрос вкуса, а вопрос профиля задачи.
Planoplan
Planoplan силен в качественной 3D-визуализации и профессиональной подаче интерьера. Он делает акцент на photorealistic 3D renderings, 2D floor plans, panoramas, виртуальные туры, каталог более чем из 8000 предметов и материалов, возможность загружать модели, а также отдельные программы для Windows и macOS. С точки зрения визуализации и каталогов это очень мощная связка.
Важно, что Planoplan тоже умеет создавать технические планы: мебель, электричество, сантехника, отделка, развертки стен, спецификации и сметы. То есть это не просто картинка, а серьезный интерьерный пакет. Но его сильнейшая сторона — именно визуальная и презентационная составляющая, а также работа как полноценной десктопной программы для Windows и Mac.
Remplanner в сравнении с Planoplan ощущается более жестко заточенным под ремонтную документацию и быстрый онлайн-рабочий цикл. У него меньше акцента на фотореалистичную подачу, но больше — на монтажные листы, электрику, инженерку, расчет материалов и прямую связь чертежей с практикой ремонта. Если дизайнеру нужны красивые рендеры и панорамы — Planoplan выглядит сильнее. Если задача — собрать технический дизайн-проект с высокой прикладной полезностью и быстро передать его в реализацию, Remplanner чаще оказывается более рациональным выбором.
Sweet Home 3D
Sweet Home 3D — старый и очень понятный ориентир в классе интерьерных приложений. Он бесплатный, помогает рисовать план дома, расставлять мебель и смотреть результат в 3D. У него есть более 10 000 3D-моделей, сотни текстур, импорт дополнительных 3D-моделей и текстур, импорт blueprint-планов, PDF-экспорт, а также поддержка прямых, круглых и наклонных стен.
На стороне Sweet Home 3D — свобода локальной работы и хорошая гибкость в импортируемых объектах. Для пользователя, которому нужен именно настольный редактор с собственной библиотекой моделей и поддержкой округлых стен, это очень сильный вариант. Причем в некоторых точках он даже выигрывает у Remplanner: например, в свободе импорта и в поддержке радиусных стен.
Но Remplanner выигрывает в другом: в структуре проекта под ремонт. У Sweet Home 3D есть план, мебель, 3D, изображения, экспорт. У Remplanner поверх этого появляется связка планировочные листы — инженерка — развертки стен — смета — PDF-альбом — совместная работа. Поэтому для задачи сделать интерьерную модель дома Sweet Home 3D вполне силен, а для задачи подготовить технический дизайн-проект ремонта с инженерными листами и расчетами Remplanner выглядит практичнее.
Короткий итог по аналогам
| Программа | В чем сильнее | В чем уступает Remplanner |
|---|---|---|
| Planner 5D | AI-инструменты, быстрый 2D/3D, 4K-рендеры, конвертация плана в 3D | Меньше акцента на рабочие ремонтные листы и инженерку |
| Planoplan | Фотореалистичные рендеры, панорамы, большой каталог, Windows/Mac | Менее сфокусирован на ремонтной документации как на главном сценарии |
| Sweet Home 3D | Бесплатный десктоп, импорт моделей, импорт планов, круглые стены | Нет такой сильной связки инженерки, разверток, сметы и облачной совместной работы |
Сравнение с аналогами здесь выходит однозначным: Remplanner не всегда лучший визуализатор, но один из самых сильных инструментов именно для самостоятельной подготовки проекта ремонта и рабочей документации.
Кому Remplanner подойдет лучше всего
Remplanner особенно хорошо подходит тем, кто делает или контролирует ремонт. Это собственники квартир, которые хотят понять свой будущий интерьер до закупки материалов и начала работ; дизайнеры, которым нужен быстрый онлайн-пакет для планировок, инженерных листов и разверток; прорабы и технически ориентированные специалисты, которым нужна ясная рабочая документация; а также пользователи коммерческих помещений, где важны и зонирование, и инженерка, и быстрая передача проекта исполнителям.
Если цель — собрать именно технический дизайн-проект квартиры своими руками, Remplanner попадает очень точно. Он дает планировщик ремонта квартиры, план расстановки мебели, план электрики, отделку, 3D-визуализацию, развертки стен, расчет объемов и смету в одной среде. Не в пяти разных сервисах и не в разрозненных таблицах.
Кому лучше смотреть в сторону другого софта
Если нужен максимально фотореалистичный интерьер для презентации, маркетинга или портфолио, логичнее посмотреть на Planoplan или другие рендер-ориентированные решения. Если нужен AI-конвертер плана в 3D и быстрый потребительский 2D/3D-дизайн, сильнее выглядит Planner 5D. Если нужен полностью локальный настольный инструмент с импортом собственных моделей и гибкостью по геометрии, Sweet Home 3D может оказаться удобнее. А если речь идет о полноценной архитектуре, фасадах, сложных формах, радиусных стенах и глубоком BIM/CAD-моделировании, Remplanner уже не тот класс программы.
Итог: стоит ли пользоваться Remplanner
Да, если нужен не абстрактный интерьерный конструктор, а реальный рабочий инструмент под ремонт. Remplanner хорош именно потому, что он практичен. Он помогает не только расставить мебель и посмотреть комнату в 3D, но и собрать план перегородок, план розеток и выключателей, схему освещения, электропроводку, сантехнику, отопление, отделку, развертки стен, расчет объемов и смету. А затем выдать все это в PDF-альбом или отправить по ссылке.
Если говорить прямо, Remplanner — один из самых рациональных вариантов для тех, кому нужен онлайн-планировщик квартиры с прицелом именно на ремонт и технический дизайн-проект. Его слабые места понятны: он не для сложной архитектурной формы, не для премиального рендера и не для полностью автономной офлайн-работы. Но в своей основной задаче — подготовить подробный, логичный, структурированный проект ремонта — программа работает очень убедительно.