Cedreo — это специализированная программа для проектирования частного дома, пристроек, интерьеров и участка, заточенная не под абстрактное 3D-моделирование, а под быстрый выпуск понятного комплекта материалов: 2D floor plan, 3D floor plan, site plan, roof plan, cross section, elevation view, electrical plan, surface area table и фотореалистичных рендеров. Вся логика продукта строится вокруг одной практической задачи: как можно быстрее пройти путь от черновой идеи до визуально убедимого проекта, который можно показать клиенту, согласовать и использовать как основу для дальнейшей работы.
В реальной работе Cedreo особенно силен там, где нужно не просто чертить, а собирать понятный дом целиком: посадить его на участок, нарисовать стены и перегородки, поставить окна и двери, сделать кровлю, разложить мебель, настроить материалы, собрать фасады, разрезы и получить 3D-визуализацию без долгого моделинга. Для home builders, remodelers и interior designers это означает, что концепция, предпроект, быстрый дом с визуализацией и набором базовых планов делаются в одном сервисе и без обязательного погружения в тяжелые CAD/BIM-пакеты.
Cedreo работает полностью онлайн и запускается в браузере. Это важно не только формально, но и по ощущениям от процесса: программа не заставляет строить сложную файловую структуру локального проекта, не требует отдельной установки и делает ставку на облачный сценарий работы, когда пользователь заходит в проект, редактирует его, сохраняет изменения и тут же двигается дальше по шагам интерфейса. Для жилого проектирования на ранней и средней стадии это очень удобный формат: меньше трения на старте, проще показать вариант заказчику, легче быстро вернуться к концепции и переделать ее под новый запрос.
Cedreo
- Планировка дома
- Русский интерфейс
- Просто для новичков
- Требует интернет
- Платные функции
- Зависит от браузера
Для каких задач Cedreo подходит лучше всего
Если смотреть на Cedreo не как на еще одну программу для дизайна, а как на конкретный рабочий инструмент, то его сильнейшие сценарии достаточно очевидны.
Где программа раскрывается лучше всего
-
проектирование частного дома с нуля;
-
быстрая перепланировка и реконструкция;
-
дизайн-подача пристройки, террасы, крыльца, basement и upper floor;
-
2D- и 3D-планировка жилого пространства;
-
создание roof plan и базовой проработки кровли;
-
подготовка site plan с границами, дорожками, покрытием, отступами и посадкой дома;
-
визуализация интерьера и экстерьера;
-
создание electrical plan на базе готового floor plan;
-
выпуск разрезов, фасадов и surface area table;
-
сборка клиентской презентации в одном месте.
Cedreo особенно удобен для тех случаев, когда заказчик хочет быстро понять будущее пространство. Типичный пример: дом еще не построен, а показать нужно уже сейчас. Обычный чертеж для такого разговора часто слишком сухой, а чистое 3D без нормальной планировочной базы — слишком поверхностное. Cedreo соединяет обе стороны задачи: сначала точная 2D-структура, потом понятная 3D-модель, а затем уже рендеры, планы, фасады и разрезы. Именно поэтому программа хорошо подходит для продаж, согласований и ранней презентации проекта.
Сильная сторона Cedreo в том, что это не интерьерный конструктор для красивой картинки и не универсальный 3D-редактор на все случаи жизни. Это home design software с очень конкретной логикой: сначала строишь архитектурную основу, потом доводишь внешний вид, затем собираешь документы и визуалы. Поэтому программа воспринимается профессиональнее, чем многие бытовые планировщики, но при этом заметно проще, чем классические тяжелые системы архитектурного проектирования.
Как устроена работа в Cedreo
Главная особенность Cedreo — пошаговая структура интерфейса. Программа разбивает работу не по абстрактным модулям, а по понятной последовательности действий. В интерфейсе есть 9 шагов: 6 в 2D и 3 в 3D. При этом изменения, сделанные в 2D — стены, проемы, кровля, материалы и другие базовые элементы — сразу отражаются в 3D. Исключение составляют шаги Plan details и Folder: они относятся уже к оформлению планов и документов, а не к перестроению самой 3D-модели.
Базовая логика выглядит так:
-
Layout — участок, стены, уровни, комнаты, трансформации.
-
Wall openings — окна, двери, проемы, roof windows.
-
Roof — автоматические и ручные крыши, долины, dormers, overhangs.
-
Furnishings — мебель, оборудование, предметы наполнения.
-
Materials — отделка, зоны, паттерны, shapes.
-
HD Visual — камеры, окружение, солнце, точки обзора, рендеринг.
-
Plan details — символы и surface areas.
-
Folder — floor plans, site plans, roof plans, cross sections, elevation views, документы и их организация.
Такой подход очень удобен именно в жилых проектах. Cedreo не заставляет держать в голове сотни инструментов одновременно. На каждом шаге пользователь видит только тот набор действий, который нужен именно сейчас. Это ускоряет работу и делает программу предсказуемой: ты понимаешь, где рисовать стены, где ставить окна, где задавать материалы, а где уже выпускать планы и рендеры. Для программы для планировки дома онлайн это один из самых сильных аргументов в ее пользу.
Навигация и важные элементы интерфейса
Cedreo устроен достаточно рационально. В правом верхнем углу находятся пять важных иконок: переход в help center, discussion/chat, кнопка сохранения, полноэкранный режим и выход из проекта. Практический нюанс здесь очень важный: изменения в проекте не сохраняются автоматически, их нужно сохранять вручную через иконку Save. Это мелочь, но в реальной работе лучше помнить о ней с самого начала.
Отдельного внимания заслуживает правая панель параметров. Именно через нее в Cedreo настраивается большая часть выбранных объектов: комнаты, окна, двери, кровля, мебель, зоны, наружные пространства, символы и так далее. В верхней части интерфейса также работает связка 2D/3D: если пользователь находится в 3D, сверху справа видит 2D-экран, и наоборот. Это делает управление проектом очень наглядным: ты не теряешь связь между чертежом и объемом.
В рабочем поле постоянно используются несколько повторяющихся кнопок: Repeat action, Magnetism, undo/redo, переключение уровней, Display options, масштабирование и нижняя панель навигации. Практически это означает следующее: в Cedreo удобно выполнять серии однотипных операций — например, быстро ставить похожие окна, повторять материал, расставлять мебель, рисовать несколько связанных стен подряд. Именно из таких мелочей и складывается ощущение, что программа ускоряет работу, а не тормозит ее.
Ниже — характерный пример интерфейса Cedreo в работе с 2D-планом.

Первый запуск: с чего начинается проект
Проект в Cedreo можно начать двумя основными способами: с чистого листа или через импорт подложки. Оба сценария в программе реализованы хорошо, но применяются в разных ситуациях.
Работа с нуля
Если проектируется новый дом или концепция еще только собирается, удобнее стартовать с пустой сцены. В этом случае пользователь переходит в Layout, открывает меню Walls и работает инструментами Wall или Partition wall. Разница между ними не в принципе построения, а в толщине по умолчанию. Рисование идет простым кликом по сетке: первый клик запускает стену, последующие создают переломы или продолжения, завершение происходит двойным кликом по стрелке подтверждения. Для связанных контуров можно включить Repeat action, а для аккуратной геометрии — Magnetism, который помогает держать 90°, 45° и 135°.
Очень полезный инструмент в этом же меню — Hidden wall. Он нужен не только как вспомогательная линия, а как реальный рабочий прием для сложных планировочных ситуаций: открытая кухня, лестничный проем, терраса, некоторые границы зон, которые нужно учитывать в логике проекта, но не хочется превращать в полноценную стену. Для жилого проектирования это важная вещь, потому что реальные дома редко состоят только из стандартных замкнутых прямоугольников.
После того как контур собран, Cedreo позволяет довольно точно довести геометрию: менять угол через узловые точки, двигать стены, вводить точные длины и задавать направление измерения. У уже построенной стены на правой панели можно изменить высоту, толщину и то, как она режется потолком или отделкой под кровлей. То есть Cedreo — это не примитивный рисователь комнат, а все-таки нормальный floor plan software с понятной архитектурной логикой.
Импорт существующего плана
В реконструкциях и переделках гораздо удобнее идти от существующей базы. Для этого в Cedreo есть импорт floor plan с последующей обводкой. На шаге Drawing / Layout используется зеленая кнопка Load image в правой панели. После загрузки файла пользователь ставит синюю линейку на известный размер, вводит его значение и тем самым калибрует подложку. Затем подложку можно вращать, двигать, менять прозрачность и выводить вперед через опцию First plan. Поддерживаются PNG, JPEG, PDF, DWG и DXF.
На практике это один из самых полезных сценариев Cedreo. Когда на руках есть старый план дома, скан БТИ, PDF от архитектора, DWG от подрядчика или просто аккуратно сфотографированная схема, пользователь получает возможность быстро перевести ее в чистую рабочую модель. Это особенно ценно в remodel-проектах: не нужно заново вычислять все размеры вручную, достаточно правильно откалибровать подложку и строить поверх нее уже живой проект с окнами, крышей, мебелью, материалами и рендерами.
Работа с комнатами и уровнями
После стен в Cedreo логично переходить к семантике помещений. Для этого в Layout используется пункт Room types. Пользователь выбирает нужный тип комнаты и назначает его конкретной области. Дальше на правой панели можно переименовать помещение, отнести его к annex area, менять толщину потолка и готового пола, отключать потолок или пол, а также добавлять или убирать baseboards. Для планировочного и презентационного сценария это очень удобно: комната в Cedreo — это не просто подпись, а объект со своими свойствами.
Когда проект становится многоуровневым, в ход идет инструмент Level. Cedreo позволяет добавить новый floor или basement и сразу предлагает продублировать внешние стены соседнего уровня. Это очень правильная логика: в подавляющем большинстве жилых проектов второй этаж или подвал действительно наследуют большую часть базового контура. Далее уровень можно переименовать, изменить толщину ceiling, finished floor и slab. Удаление уровней тоже контролируется логично: нельзя удалять уровень, если над ним или под ним есть зависимые уровни, а ground floor вообще является базовым и не удаляется.
С точки зрения скорости работы эта механика делает Cedreo очень сильной программой для проектирования дома: одноэтажный дом, дом с подвалом, дом с мансардой, дом с верхним этажом — все эти сценарии можно собрать в одной модели без ощущения, что ты заново строишь весь объект. Если нужно быстро показать клиенту вариант с basement, upper floor или альтернативой лестничного решения, Cedreo не заставляет начинать заново.
Окна, двери и проемы: один из самых сильных этапов Cedreo
Шаг Wall openings — один из лучших в программе. Именно здесь Cedreo начинает выглядеть не просто как инструмент для геометрии, а как полноценная программа для проектирования частного дома с ориентацией на реальные архитектурные решения.
В Wall openings пользователь получает каталог проемов и может искать нужный элемент через search bar или просматривать каталог вручную. Программа поддерживает широкий выбор окон, дверей, bays и roof windows, а в общем каталоге говорится более чем о 1 500 вариантах door and window options. Это заметно ускоряет работу: вместо ручного моделинга пользователь выбирает готовый тип элемента, ставит его на стену и дальше уже настраивает параметры.
После вставки проема вся сила Cedreo проявляется в правой панели. В первом табе можно менять размер и положение, выбирать способ установки относительно стены, настраивать orientation и direction. Во втором табе появляются дополнительные параметры: включение элемента в расчет glazed surface area, управление 3D sill и выбор типа shutters. В последнем табе задается цвет, причем Cedreo умеет предлагать распространение изменения на аналогичные openings внутри проекта. Это очень практично: если в доме десять одинаковых окон, нет смысла редактировать каждое по отдельности.
Вот так выглядит панель настройки оконного проема в Cedreo.

Для реальной проектной работы это означает очень простую вещь: Cedreo быстро переводит абстрактную коробку дома в узнаваемую архитектуру. Как только появляются правильные двери, окна, высоты проемов, sill, shutters и roof windows, объект начинает восприниматься как дом, а не как заготовка. И именно на этом этапе заказчик обычно начинает видеть проект.
Кровля: автоматизация без потери контроля
У Cedreo сильный roof-блок, причем он удобен именно тем, что позволяет начинать с автоматического сценария и при необходимости переходить к ручной корректировке. В шаге Roof доступны automatic roof, multi-slopes roof, gable roof, single slope roof, flat roof, а также valley, dormers, overhangs, scuppers, chimney и представление roof thicknesses. То есть Cedreo не ограничивается одной-двумя стандартными крышами и позволяет прорабатывать вполне реальную частную архитектуру.
Автоматическая крыша создается достаточно быстро: на верхнем уровне или специально созданном уровне под кровлю пользователь выбирает нужный roof type, включает automatic detection и подтверждает построение через validation icon в центре крыши. Важный момент: Cedreo сам режет стены крышей, поэтому вручную занижать стены не нужно. После этого все параметры можно настраивать справа.
Когда нужна более детальная доводка, Cedreo позволяет менять высоту, angle, slope, thickness, добавлять точки через Add point, редактировать отдельные кромки крыши, управлять overhang и специфическими узлами. Для single slope roof и multi-slopes roof можно работать как в градусах, так и в процентах. Это дает хороший баланс между удобством и контролем. Программа не превращает крышу в полностью черный ящик, но и не заставляет пользователя моделировать каждую плоскость с нуля, если задача простая.
Ниже — пример roof plan, который Cedreo генерирует на основе модели.

В практическом смысле roof-блок Cedreo особенно полезен строителям и проектировщикам, которым нужен не академический разбор кровельной геометрии, а быстрый и наглядный roof plan для жилого проекта. Для коттеджа, пристройки, farmhouse, craftsman house, дома с мансардой или porch это действительно рабочий инструмент, а не декоративная функция.
Участок, рельеф и наружные элементы
Многие программы для планировки дома онлайн хорошо справляются с интерьером, но быстро сдают позиции, когда нужно показать сам участок. Cedreo тут заметно интереснее среднего. В Layout и Terrain Module можно работать с lot, property boundaries, setback lines и elevation points, а затем в наружной части проекта дорисовывать покрытие, patio, driveways, walkways и другие exterior spaces.
Через Land задается базовая логика участка. Elevation points помогают отобразить уклоны и топографию, а дальше уже в наружных шагах можно развести функциональные зоны. Cedreo разделяет их на Spaces и Paths: первые отвечают за отдельные площадки и покрытия, вторые — за подъезды, проходы и маршруты. Для частного дома это именно тот уровень детализации, который обычно нужен на предпродаже и в концепции: достаточно, чтобы показать посадку дома на участке, связи с подъездом, patio, softscape и окружением, но без погружения в сверхсложный ландшафтный CAD.
В шаге Folder из этого сразу собирается site plan. Причем у него есть нормальные параметры управления: можно показывать или скрывать dimensions, линии cross section, symbols из Plan details и setback line, если они созданы в Layout. То есть site plan в Cedreo — это не просто картинка сверху, а управляемый документ.
Ниже — пример site plan, сформированного в Cedreo.

Для строителей и remodelers это очень сильный аргумент в пользу Cedreo. Заказчик редко оценивает дом отдельно от участка. Ему важно видеть въезд, дорожки, двор, размещение дома внутри границ и хотя бы базовую логику рельефа. Когда это собрано в одном интерфейсе, проект воспринимается намного убедительнее.
Furnishings: библиотека, которая помогает продавать пространство
Шаг Furnishings отвечает за мебель и насыщение интерьера. В Cedreo он нужен не только для красоты. Именно через него пространство превращается из схемы помещений в жилой интерьер, по которому заказчик уже может судить о масштабе, плотности расстановки, проходах, эргономике и сценариях использования.
Подход простой: выбирается товар или элемент из каталога, ставится в нужную точку, дальше редактируется через правую панель. Cedreo позволяет менять размеры, положение, поворот, elevation и визуальные характеристики объекта. Дополнительно программа поддерживает поиск по каталогу, а для некоторых объектов — изменение цвета через palette icon и работу с пропорциями. В связке с шагом HD Visual это особенно эффективно: мебель не остается условным символом на плане, а сразу участвует в 3D-сцене и влияет на восприятие комнаты.
На практике библиотека Cedreo ориентирована прежде всего на жилые пространства и продающую подачу. То есть это не каталог для сверхдетальной спецификации каждого предмета мебели, а рабочий набор для быстрого проектирования кухни, ванной, living room, bedroom, garage, patio и других типовых зон. Для коммерческого согласования такой подход правильный: интерьер выглядит достаточно насыщенным и реалистичным, но пользователь не тонет в бесконечном подборе ассетов.
Materials: отделка, зоны и дополнительные формы
В Cedreo материалы — это не второстепенный этап, а полноценный рабочий модуль. На шаге Materials можно применять материалы к внешним зонам, стенам, крышам, zones и shapes. Выбор делается через каталог или поиск, а также через копирование уже использованного покрытия с помощью Duplicate covering. После применения материал можно редактировать: вращать через Angle, масштабировать через Scale и сдвигать через Movement для выравнивания текстур на разных поверхностях.
Очень полезная часть Cedreo — Zone. Это способ локально вводить отдельные участки отделки, не меняя всю плоскость. В программе есть четыре типа зон: Floor area, Wall area, Horizontal area и Vertical area. За счет этого можно, например, выделить душевую зону на полу, сделать цветовую полосу на стене, оформить фрагмент фасада или добавить локальную отделку между проемами. Для интерьеров и фасадных концепций это важная функция: не нужно изобретать сложную геометрию там, где хватает разумной локальной зоны.
Еще одна сильная вещь — Shape. Через shapes в Cedreo создаются дополнительные конструктивные элементы: посты, ramps, steps и другие подобные формы. После вставки shape можно двигать, вращать, поднимать, менять height, length и width, а затем покрывать материалом. Для многих реальных домов этого уже достаточно, чтобы не уходить в сторонний 3D-софт ради пары нестандартных ступеней, подиума, рампы или фасадной детали.
Это хороший пример того, чем Cedreo отличается от совсем простых планировщиков. Он не ограничивается покрасить стену в другой цвет. Он позволяет делать управляемую отделку, вводить локальные зоны и добавлять дополнительные формы там, где они реально нужны в частном доме или пристройке.
3D-режим и рендеринг: когда проект начинает продавать себя сам
Cedreo силен тем, что 3D здесь не живет отдельно от 2D. То, что пользователь построил в планировке, сразу же доступно в объемном виде. Это снимает большой пласт рутины: не нужно повторно моделировать тот же дом в другом пакете ради картинки. В Cedreo 2D-планировка, 3D-модель и презентационные документы связаны в один поток.
Камеры
В HD Visual Cedreo предлагает три типа камер: Eye level, 3D View и Top View. Eye level создает вид на уровне глаз и поддерживает горизонтальную перспективу, за счет чего подходит для клиентских интерьеров и экстерьеров. 3D View удобен для облета дома, ландшафта и аксонометрии. Top View нужен для вида сверху и некоторых обзорных композиций. Переключатели камер расположены внизу экрана.
Viewpoint
Одна из самых полезных функций — сохранение точек обзора. В правой панели на шаге HD Visual есть вкладка Viewpoint, где можно зафиксировать камеру через Save current viewpoint. Cedreo запоминает не только сам ракурс, но и конфигурацию солнца и окружения. Это очень удобно при работе с клиентом: один раз настроил вид на фасад, кухню, гостиную, patio или мастер-спальню — и потом возвращаешься к нему в один клик. Ненужные ракурсы удаляются через иконку trash can на миниатюрах.
Так выглядит блок сохранения viewpoints в Cedreo.

Окружение и солнце
В HD Visual Cedreo позволяет выбирать фоны и окружения, настраивать свет и работать с тенью. Для ряда окружений доступна ручная настройка солнца, причем регулировка идет как по визуальным осям в рабочей области, так и через параметры longitude и latitude в правой панели. Есть также White Environment — белое окружение без солнца, которое отлично подходит для чистых аксонометрий и интерьерных кадров без выраженных теней. А если нужен кастомный фон, используется режим Customized Background с кнопкой Load an image и последующей регулировкой масштаба, позиции и вращения изображения.
Запрос рендера и галерея
Когда ракурс собран, Cedreo рендерит изображение через кнопку Request a Rendering. Готовые визуалы открываются в Gallery, а скачать их можно через Download render. С точки зрения повседневной работы это удобно: рендеры не разбросаны по внешним папкам и не отделены от модели. Они живут в том же проекте, где и сама архитектура.
Вот пример внешнего рендера, который по качеству уже подходит для клиентской подачи.

А вот интерьерный пример — именно такого рода сцены Cedreo и делает особенно убедительно для согласования интерьера.

Сильнее всего Cedreo ощущается именно здесь. Многие программы умеют нарисовать план, но плохо продают пространство. Cedreo, наоборот, очень хорошо связывает чертежную часть с презентационной. В результате клиент видит не только стены и размеры, но и готовый образ дома — с материалами, освещением, мебелью, участком и конкретными точками обзора.
Какие документы Cedreo умеет выпускать
Cedreo — это не только 3D home design software, но и инструмент выпуска сопровождающих планов. В Folder пользователь добавляет и настраивает разные типы документов: floor plan, site plan, roof plan, cross-section plan, elevation view, а затем организует их внутри проекта и готовит к выгрузке.
Floor plan
Для floor plan в Folder используется кнопка Add a floor plan. Дальше задается имя плана, выбирается уровень, после чего документ можно тонко настраивать. Это удобно, когда в одном проекте нужно собрать несколько листов: например, ground floor, upper floor, basement, отдельный план кухни или этажа с другим режимом обозначений.
Site plan
Для site plan в Cedreo есть отдельная кнопка Add a site plan. У него настраиваются видимые размеры, cross-section lines, symbols и setback line. Это делает site plan пригодным не только для иллюстрации, но и для реальной проектной подачи.
Roof plan
Roof plan добавляется отдельным действием и умеет отображать уклоны и их стиль представления. Для жилых домов это важный момент: roof plan в Cedreo не просто существует номинально, а реально помогает показать логику кровли и ее основные параметры.
Cross sections и elevation views
Разрезы и фасады в Cedreo создаются через Add a cross-section view и Add an elevation view. Для разреза задается камера, положение и framing, после чего план можно дополнять symbols, text и shapes, а при необходимости использовать mirror effect для некоторых обозначений. Фасады работают по похожему принципу: выбирается нужная facade camera, задается framing, после чего план редактируется через правую панель.
Ниже — пример cross section, сформированного в Cedreo.

Surface area table
В Plan details Cedreo позволяет настраивать Surface areas через три блока: Summary surfaces, Detailed surfaces и Floor area. В summary-представлении выводятся общие значения, завязанные на действия в Layout, Opening, Roof и Exterior. Здесь учитываются, в частности, Lot area, Glazed Surface, а при необходимости разделяются Living Area / Total Internal Area. Есть и compass rose для распределения glazed area по сторонам света. Для жилого проектирования и согласования с клиентом это очень полезно: площади не приходится собирать вручную после каждого изменения планировки.
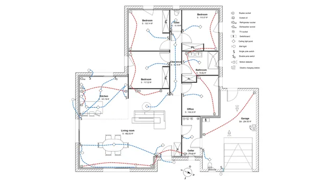
Electrical plan
Cedreo умеет создавать electrical plan на базе готового floor plan и работать с библиотекой стандартных electrical symbols для outlets, switches, lights и других элементов. В практическом сценарии это означает, что на том же плане можно разложить электрику, добавить legend и annotations, а затем использовать результат как часть общей проектной подачи. При этом Cedreo позволяет сразу проверять электрическую логику в контексте мебели и пространства, а не рисовать ее отдельно от модели.
Ниже — пример electrical plan, выполненного в Cedreo.

Пошаговый сценарий работы в Cedreo на примере частного дома
Чтобы понять программу по-настоящему, полезно пройти типичный рабочий маршрут целиком.
Шаг 1. Создать основу
Сначала в Layout определяется либо пустая сцена, либо подгружается подложка через Load image. Если проект новый, проще сразу рисовать через Wall и Partition wall. Если это remodel или реконструкция, разумнее импортировать PDF, DWG, DXF, PNG или JPEG и обвести существующую схему.
Шаг 2. Собрать планировку
Далее строятся внешние стены и перегородки, включаются Repeat action и Magnetism, правятся длины, углы и узлы. После этого помещения получают типы через Room types, при необходимости переименовываются и уточняются по свойствам. На этом этапе уже появляется корректный 2D-каркас дома.
Шаг 3. Добавить уровень или basement
Если проект двухэтажный, с подвалом или с жилой мансардой, через Level добавляется новый уровень. Cedreo предлагает продублировать exterior walls соседнего этажа, и это резко ускоряет работу. Дальше уровень можно переименовать и подстроить по толщине slab, finished floor и ceiling.
Шаг 4. Вставить окна, двери и другие openings
На шаге Wall openings через каталог и поиск выбираются нужные проемы. Затем через правую панель настраиваются height, width, lintel, sill, orientation, direction, shutters и цвет. Здесь проект начинает выглядеть архитектурно правдоподобно.
Шаг 5. Построить кровлю
На шаге Roof выбирается тип крыши. Для простого дома можно идти через automatic detection, а если форма сложнее — использовать gable, single slope или multi-slopes roof с ручной доводкой. Cedreo позволяет править slopes, angles, overhangs, valleys и dormers, так что кровля быстро выходит на внятный уровень.
Шаг 6. Разместить мебель и задать материалы
В Furnishings проект получает мебель и оборудование, а в Materials — полы, стены, кровельные покрытия и локальные зоны отделки. Если нужно, через Zone и Shape добавляются нестандартные участки или небольшие конструктивные элементы. Именно здесь Cedreo превращает сухой план в полноценный дизайн-проект дома с читаемой атмосферой.
Шаг 7. Настроить рендеры
На шаге HD Visual выбирается камера, настраивается окружение, солнце, viewpoint и запускается Request a Rendering. Для повторного доступа к ракурсам используется Save current viewpoint, а готовые изображения хранятся в Gallery и скачиваются через Download render.
Шаг 8. Добавить символы и площади
В Plan details пользователь работает с Symbol и Surface areas. Это тот этап, где проект становится не просто красивым, а еще и информативным. Появляются дополнительные обозначения, площади, glazed surface и другие характеристики, которые важны для финальной подачи.
Шаг 9. Собрать комплект документов
В Folder добавляются floor plan, site plan, roof plan, cross-section и elevation view. Каждый документ можно назвать, кадрировать, дополнить symbols, text и shapes, а затем организовать внутри проекта. Именно на этом этапе Cedreo показывает себя как all-in-one сервис, а не просто редактор планировок.
Что у Cedreo получается особенно хорошо
1. Быстрый старт без длинного периода обучения
Cedreo постоянно подталкивает пользователя к правильной последовательности действий и не заставляет вспоминать десятки редко используемых команд. Даже если человек раньше не работал в классическом CAD, он быстро понимает логику Layout → Wall openings → Roof → Furnishings → Materials → HD Visual → Folder. В этом смысле Cedreo действительно сильно снижает порог входа.
2. Связка 2D, 3D и документов
В Cedreo не нужно отдельно поддерживать план, отдельно модель и отдельно презентационные материалы. Это экономит массу времени и снижает количество ошибок. Изменил планировку — модель сразу обновилась, а вслед за ней легче перестроить рендеры и документы.
3. Хорошая работа с частным домом как с целым объектом
Cedreo не застревает только в интерьере. Он умеет lot, terrain, site plan, roof plan, cross section, elevation view, surface table и electrical plan. Это и делает его полноценной программой для проектирования частного дома, а не просто сервисом для красивой расстановки мебели.
4. Убедительная визуальная подача
Рендеры Cedreo ориентированы не на экспериментальное искусство, а на понятную клиентскую картинку. Для подрядчика, застройщика, дизайнера интерьера или проектировщика это часто важнее. Клиенту нужен не рекорд по полигонам, а ясное понимание, как будет выглядеть дом, кухня, гостиная, porch, driveway или фасад. Cedreo это дает.
Где у Cedreo есть ограничения
Cedreo отлично закрывает концепцию, предпродажную презентацию, планировку и визуализацию, но он не пытается быть универсальным ответом на любые задачи проектирования. Если нужен очень глубокий рабочий пакет с экстремально детальной конструкторской проработкой, сложной нестандартной геометрией или расширенным BIM-процессом, программа рано или поздно упрется в свою нишу. Ее сила именно в скорости, наглядности и целостном жилом workflow, а не в максимальной технической глубине.
Еще один нюанс — облачная природа продукта. С одной стороны, это удобно. С другой стороны, Cedreo требует привычки к браузерной работе и аккуратного отношения к сохранению изменений, потому что ручной Save здесь играет важную роль. Для большинства пользователей это не станет проблемой, но учитывать это стоит.
Сравнение с аналогами
Cedreo часто сравнивают с программами из соседних сегментов, но на практике у него своя довольно четкая ниша. Он стоит между очень простыми онлайн-планировщиками и полноценными тяжелыми пакетами для архитектуры.
Cedreo и Chief Architect
Chief Architect — мощный профессиональный residential design tool с автоматической генерацией roofs, foundations, framing, dimensions, product schedules и materials lists. По глубине проработки рабочей документации и строительной логике он тяжелее и мощнее Cedreo. Если задача — максимально плотная архитектурно-строительная проработка внутри одной профессиональной системы, Chief Architect дает больше.
Но Cedreo выигрывает в другом: вход в него проще, интерфейс прямолинейнее, а путь от идеи до клиентской подачи обычно короче. Там, где нужно быстро показать дом, обновить планировку, сделать рендеры, site plan, roof plan и фасады без длительного освоения тяжелого десктопного инструмента, Cedreo оказывается практичнее. Иными словами, Chief Architect — это более глубокая профессиональная машина, а Cedreo — более быстрый и легкий рабочий конвейер для концепции и презентации.
RoomSketcher
RoomSketcher делает ставку на простое создание и визуализацию detailed 2D floor plans, 3D floor plans, measurements, 3D photos, Live 3D и 360 Views. Он очень удобен для наглядной работы с пространством, недвижимости и быстрых интерьерных задач. Для пользователей, которым нужен чистый floor plan + удобная 3D-подача, это сильный продукт.
Cedreo шире именно в контексте частного дома как объекта: у него сильнее связка site plan, roof plan, elevations, cross sections, terrain и полный жилой workflow для builders и remodelers. Если говорить проще, RoomSketcher хорош как инструмент планировки и визуального представления пространства, а Cedreo лучше подходит тогда, когда кроме комнаты и этажа нужно показать участок, кровлю, фасады и полный набор базовых архитектурных материалов.
SketchUp
SketchUp — это универсальная 3D design platform для архитекторов, дизайнеров и строителей. Его сильные стороны — гибкое 3D-моделирование, развитая экосистема, широкий импорт/экспорт и возможности расширения workflows. По свободе формообразования и кастомной геометрии он заметно мощнее Cedreo. Если нужно моделировать нестандартные объекты, сильно выходящие за рамки типового residential workflow, SketchUp даст больше свободы.
Однако именно в жилом сценарии быстро собрать дом и показать клиенту Cedreo во многих случаях выигрывает по скорости. В нем уже готов путь от стен, проемов и roof до site plan, sections, elevations и photorealistic renderings. В SketchUp такой же уровень цельности обычно добирается через дополнительные инструменты, расширения и более длинную настройку процесса. Поэтому Cedreo лучше, когда нужен короткий, специализированный home design workflow, а SketchUp — когда важнее универсальность моделинга.
Planner 5D
Planner 5D — очень доступный и дружелюбный сервис для 2D/3D home design с акцентом на скорость, drag-and-drop, мебельную библиотеку, шаблоны и AI-функции. Он хорошо подходит для пользователей, которым нужен быстрый интерьерный или бытовой сценарий и минимальный порог входа.
Cedreo выглядит профессиональнее именно в сегменте домостроения и жилой архитектурной подачи. Он сильнее в планах участка, roof, sections, elevations, technical symbols и общей структуре проекта. Planner 5D проще для массового бытового сценария и декорирования, а Cedreo — лучше для builders, remodelers и тех, кто работает с проектом дома как с более серьезным и комплексным объектом.
Floorplanner
Floorplanner — популярный online floor planner, который хорошо справляется с 2D/3D room design, быстрой планировкой и визуальной проверкой пространства. Он удобен для personal use, retail, real estate и быстрых визуальных сценариев.
Cedreo снова выигрывает в том месте, где дом нужно показать не как комнату или набор комнат, а как цельный жилой объект с участком, roof plan, sections, elevations и рендерами. Floorplanner очень хорош в своей простоте и скорости, но Cedreo заметно лучше приспособлен именно к проектированию частного дома, реконструкции и коммерческой жилой подаче для клиента.
Краткий вывод по сравнению
Если нужен максимально глубокий профессиональный residential CAD-пакет, сильнее будет Chief Architect. Если нужна универсальная 3D-модельная среда — SketchUp. Если нужен простой массовый интерьерный сервис — Planner 5D или Floorplanner. Если нужен наглядный floor planning tool — RoomSketcher очень хорош. Cedreo же занимает очень удачную среднюю позицию: специализированный, быстрый, визуально сильный, ориентированный именно на дом, пристройку, remodel, участок и клиентскую презентацию.
Тарифная логика и что важно знать о лицензировании
Cedreo использует модель с четырьмя основными уровнями: Free, Personal, Professional и Enterprise. Важно не столько запоминать цифры, сколько понимать логику разделения. Free рассчитан на знакомство с сервисом и дает один проект, ограниченный каталог furnishings и materials, а также 5 realistic 3D renderings. Personal подходит для разового или редкого проекта. Professional рассчитан на регулярную рабочую нагрузку, а Enterprise добавляет командный режим, обмен проектами и более развитые возможности совместной работы.
Для оценки Cedreo как программы это важно по двум причинам. Во-первых, бесплатный вход здесь действительно позволяет пройти ключевой workflow на одном проекте. Во-вторых, программа сразу отделяет разовый личный сценарий от профессионального использования без watermark на рендерах, с большим объемом работы и командными функциями. Если Cedreo нужен для постоянной коммерческой практики, ориентироваться стоит именно на Professional и Enterprise.
Кому Cedreo подойдет
Cedreo хорошо подойдет тем, кто работает с жилыми объектами и ценит скорость визуальной подачи.
Программа особенно удачна для:
-
строителей частных домов;
-
remodelers и подрядчиков по реконструкции;
-
дизайнеров интерьера жилого сегмента;
-
небольших студий, которым нужен понятный all-in-one workflow;
-
специалистов, делающих предпроект, быструю концепцию и клиентскую презентацию;
-
тех, кому важны 2D floor plans, site plans, roof plans, sections, elevations и 3D renderings в одном месте.
Cedreo особенно хорош в ситуации, когда нужно быстро согласовать решение. Не неделями строить сложную модель, а за короткий срок показать понятный дом: вот планировка, вот кровля, вот участок, вот фасад, вот разрез, вот интерьер, вот рендеры. Для коммерческой практики это зачастую важнее, чем экстремальная техническая глубина.
Кому Cedreo подойдет меньше
Cedreo не лучший выбор для тех, кто ищет сверхглубокую рабочую документацию, очень сложное нестандартное моделирование или тяжелую универсальную среду 3D-проектирования. Если задача требует продвинутой параметрики, экстремально детальной строительной документации или широкого расширяемого моделинга, логичнее смотреть в сторону более тяжелых систем.
Также Cedreo не стоит воспринимать как сугубо интерьерный декоратор. Да, он прекрасно работает с мебелью и материалами, но его сильная сторона все-таки не в бесконечной игре с декором, а в том, что он держит весь жилой проект целиком — от стен и уровней до site plan и рендеров. Если нужен только простой room planner без архитектурного контура, часть возможностей Cedreo просто останется неиспользованной.
Плюсы и минусы Cedreo
Плюсы
-
понятный пошаговый интерфейс;
-
сильный жилой workflow от 2D до 3D и документов;
-
быстрый импорт существующих планов;
-
удобная работа с окнами, дверями и roof;
-
наличие site plan, cross section, elevation view и surface area table;
-
хорошая подача интерьеров и экстерьеров;
-
online-формат без установки;
-
хороший баланс между простотой и профессиональной подачей.
Минусы
-
меньше свободы в сложной кастомной геометрии, чем у SketchUp;
-
меньшая глубина строительной проработки, чем у Chief Architect;
-
зависимость от облачного сценария;
-
необходимость следить за сохранением изменений;
-
часть продвинутых сценариев упирается в рамки специализированного residential workflow.
Итог
Cedreo — это очень удачно собранная программа для проектирования дома онлайн, в которой главное достоинство не в одной отдельной функции, а в целостности процесса. Она быстро переводит пользователя от идеи к архитектурной основе, затем к наполнению, материалам, 3D-визуализации и комплекту планов. Именно поэтому Cedreo воспринимается не как очередной онлайн-планировщик, а как практичный рабочий инструмент для builders, remodelers и дизайнеров интерьера, которым нужно быстро выпускать понятные и продающие жилые проекты.
Главное, что делает Cedreo сильным, — это сочетание скорости, наглядности и правильной предметной специализации. Программа уверенно закрывает 2D floor plan, 3D floor plan, roof plan, site plan, фасады, разрезы, electrical plan, surface area table и рендеры без распада на кучу отдельных инструментов. Если задача — быстро и профессионально показать дом целиком, а не строить чрезмерно тяжелый техпроцесс, Cedreo оказывается одним из самых удобных решений в своем классе.