Home Plan Pro — это специализированная программа для создания плана дома, квартиры, офиса, пристройки, поэтажной схемы и других рабочих 2D-чертежей, в которой упор сделан не на фотореалистичную подачу, а на быстрое и точное построение плана с размерами, стенами, дверями, окнами, условными обозначениями и печатью в масштабе. Программа изначально ориентирована на подрядчиков, строителей, риелторов, оценщиков и владельцев жилья, которым нужен не декоративный 3D-ролик, а нормальный читаемый рабочий лист. В этом и заключается суть Home Plan Pro: она не пытается быть тяжелой архитектурной системой, а дает быстрый 2D-инструмент для реальной прикладной работы.
Для своего класса это очень характерный софт: Home Plan Pro не уводит пользователя в BIM-модель, не строит полноценную трехмерную архитектурную оболочку и не перегружает интерфейс сложными профессиональными модулями. Вместо этого программа предлагает классический подход к черчению: линии, дуги, стены, размеры, слои, фигуры, текст, заливки, масштаб, печать и экспорт. Поэтому обзор Home Plan Pro логично строить не вокруг абстрактных обещаний, а вокруг конкретных действий: что именно здесь можно сделать, какими кнопками это делается и насколько удобно программа решает задачу плана помещения.
Home Plan Pro особенно хорошо раскрывается там, где нужен план квартиры с размерами, план дома для ремонта, схема расстановки мебели, поэтажный чертеж для согласования, рабочий лист для подрядчика или простой архитектурный план без сложной визуализации. Это именно тот случай, когда программа для плана дома должна работать быстро: открыл, задал масштаб, построил контур, расставил двери и окна, подписал помещения, напечатал или экспортировал в DXF и PDF.
Скачать Home Plan Pro
- Планировка дома
- Русский интерфейс
- Просто для новичков
- Старый интерфейс
- Ограниченные функции
- Редкие обновления
Интерфейс Home Plan Pro
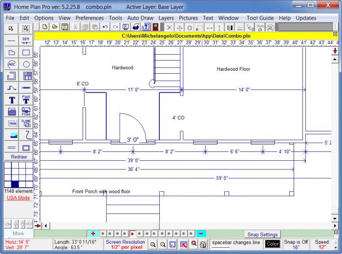
Интерфейс Home Plan Pro построен по логике классического Windows-CAD: сверху идет строка меню, ниже — кнопки быстрого доступа, слева — основная вертикальная панель инструментов рисования и редактирования, по центру — поле чертежа с линейками, внизу — статусная строка с координатами, длиной, углом, текущим разрешением экрана и snap-настройками. В верхнем меню вынесены File, Edit, Options, View, Preferences, Tools, Auto Draw, Layers, Pictures, Text, Window, Tool Guide, Help и Updates. Уже по этим названиям видно, что программа разделяет черчение, автоматические построения, работу со слоями, изображениями и текстом на отдельные, понятные блоки.
На левой панели в Home Plan Pro собраны не декоративные иконки, а рабочие кнопки, которыми действительно пользуются постоянно. На скриншотах хорошо видны инструменты вроде DIM, ARC, Figs, Fill, Clone, Redraw, а также кнопки выделения, рисования прямоугольников, кривых, редактирования и вставки фигур. Это важная особенность программы: она не прячет базовые действия по глубоким вложенным меню. Если нужно построить размерную линию, запустить заливку, клонировать элемент или вставить фигуру мебели, соответствующая кнопка находится прямо под рукой.
Home Plan Pro выглядит строго утилитарно. Здесь нет современной минималистичной оболочки, крупной плиточной навигации и 3D-превью на полэкрана. Зато есть то, что нужно для чертежа: линейки, координаты, численные параметры и быстрый доступ к командам. Внизу окна одновременно видны Horiz, Vert, Length, Angle, Screen Resolution, Snap Settings, индикатор цвета и состояние привязки. Для 2D программы для планировки дома это полезнее, чем внешний лоск: пользователь постоянно контролирует длины, шаг, текущий масштаб восприятия и поведение курсора.
Ниже показано типичное рабочее окно Home Plan Pro: по нему хорошо видно, как организовано поле чертежа, линейки, панель инструментов и строка состояния.

На какие задачи рассчитана программа
Home Plan Pro — это не просто редактор линий. Программа умеет строить наружные и внутренние стены, автоматически вставлять двери и окна, создавать размерные линии, работать с толщиной стен, считать площади в квадратных футах или метрах, использовать слои, выполнять zoom in / zoom out, применять fill patterns, сохранять фрагменты чертежа для повторного использования и экспортировать результат в DXF, PDF и распространенные bitmap-форматы. Для рабочего чертежного пакета этого набора более чем достаточно.
Если говорить прикладным языком, в Home Plan Pro можно сделать следующее:
-
нарисовать план дома или квартиры в 2D;
-
собрать план помещения для ремонта;
-
показать несущие и внутренние перегородки;
-
расставить двери, окна и французские двери;
-
построить лестницу через Stair routine;
-
проставить размеры вручную и полуавтоматически;
-
подписать комнаты и технические зоны;
-
вынести электрику, сантехнику и стены в разные слои;
-
поставить мебель, сантехнику, символы и условные обозначения;
-
настроить печать в масштабе;
-
сохранить чертеж как DXF, PDF или bitmap;
-
подготовить файл для отправки по почте или печати.
Отдельно стоит отметить, что Home Plan Pro рассчитана именно на рабочий 2D-план. Программа прямо относится к 2D CAD-классу и ориентирована на те чертежи, которые обычно нужны в ремонте, строительстве и планировке: схемы комнат, планы этажей, простые строительные и ремонтные листы, планы расстановки, планы пристроек и реконструкции. Для многих пользователей это даже плюс: когда нужна не визуализация мечты, а нормальный чертеж, 2D-подход оказывается быстрее и практичнее.
Основные инструменты Home Plan Pro
Ниже — ключевые функции, которые и формируют характер этой программы.
| Инструмент или блок | Что делает в Home Plan Pro |
|---|---|
| Drawing tools | Рисует arcs, rectangles, circles, lines и другие базовые геометрические элементы. |
| Automatic Dimension Lines | Позволяет быстрее оформлять размеры на плане. |
| Automatic Door & Window Insertion | Ускоряет постановку дверей и окон в стенах. |
| Adjustable Wall Thicknesses | Дает задавать толщину стен, а не рисовать перегородки условной линией. |
| Auto Draw | Строит объекты по длине, углу, прямоугольной области, а также помогает с лестницами и французскими дверями. |
| Figs / Figure libraries | Вставляет готовые фигуры мебели, сантехники, окон, дверей и других символов. |
| Fill / Fill Patterns | Позволяет заполнять области и стены паттернами и сплошными цветами. |
| Layers | Делит чертеж на отдельные логические слои и управляет их видимостью на экране и на печати. |
| Clip files | Сохраняет фрагменты для повторного использования в других планах. |
| Print scales | Позволяет печатать в customary или custom scales и подгонять чертеж под лист. |
| Export | Выгружает план в DXF, PDF и bitmap-форматы. |
Главное достоинство Home Plan Pro в том, что почти все эти функции подаются через понятные действия, а не через сложную систему параметрических зависимостей. Это именно софт для черчения плана помещения, где каждая команда обслуживает практический сценарий: провести стену, измерить, вставить окно, клонировать сантехнический блок, скрыть слой электрики, распечатать лист в заданном масштабе.
Как устроена навигация по командам
Меню File в Home Plan Pro — это не формальность, а один из важнейших рабочих узлов. На соответствующем скриншоте видны команды New Plan, Open Existing Plan, Close Current Plan, Save, Save As, Make a Backup of Current Plan, Save as PDF File, Export, Import from DXF and DWG Files, Print Current Plan, Print Preview, Print Current Selection, Printer Setup, Print Settings, Fax Current Plan, Fax Current Selection, Email Current Plan, Save Selected to Clip File, Load Clip File, Delete Clip File и Exit. Это очень точно показывает характер программы: Home Plan Pro завязана на реальный документооборот вокруг чертежа.
Меню Tools в программе тоже очень полезно и неожиданно насыщено. На скриншоте с раскрытым списком видны Magnify Area, Make Drawing Fit Screen, Calculate Area, Calculate Linear Distances, Divide a Line Into Two Lines, Divide a Wall Into Two Walls, View Usage Log, Manage Backed Up Plans, а также служебные функции вроде Calendar и Calculator. Это значит, что Home Plan Pro не заставляет пользователя идти в сторонние утилиты даже для простых рабочих операций: площадь, расстояния, управление резервными копиями и подгонка отображения уже встроены внутрь.
Контекстное меню по выделенному объекту в Home Plan Pro тоже сделано по делу. В нем есть Delete Figure, Move Figure, Rotate Figure, Rotate Figure 45° clockwise, Re-Size Figure, Make a Copy of the Figure, Flip Figure Horizontally, Flip Figure Vertically, Change Figure Color, Copy Figure to Clip Buffer, Resize Predrawn Figure, Expand Predrawn Figure, Change Size of Entire Plan by Example и свойства выделенного элемента. Для редактирования готовых символов мебели, сантехники и условных обозначений это крайне удобно: программа не просто вставляет объект, а позволяет быстро привести его к нужной ориентации и масштабу.
Практический сценарий: как сделать план помещения в Home Plan Pro
В типичном рабочем сценарии Home Plan Pro раскрывается лучше всего. Начинается все с нового плана, после чего пользователь задает масштаб и систему измерения — метрическую или USA. Далее идет построение внешнего контура, затем внутренних перегородок, после этого — вставка дверей и окон, простановка размеров, размещение мебели и подписи помещений. Программа именно под такой сценарий и рассчитана: сначала геометрия, потом проемы, потом размеры и содержимое.
Если нужен план квартиры с размерами, логичная последовательность в Home Plan Pro выглядит так:
-
создать новый план;
-
выбрать систему измерения;
-
выставить сетку и рабочий масштаб;
-
построить наружные стены;
-
добавить внутренние перегородки;
-
вставить двери и окна;
-
проставить размеры;
-
добавить мебель и сантехнику через библиотеки фигур;
-
подписать помещения;
-
разнести элементы по слоям;
-
подготовить лист к печати или экспорту.
Особенно хорошо Home Plan Pro работает там, где геометрия задается не на глаз, а численно. В Auto Draw программа умеет строить объекты от позиции курсора с заданием длины и угла. Для линий это Contiguous Lines, для стен — Contiguous Walls, для размерных линий — Dimension From Cursor Position, для прямоугольника — Rectangle From Cursor Position, для зоны со стенами — Walled Area from Cursor и Rectangular Walled Area. То есть пользователь может не просто тянуть мышкой контур, а фактически собирать схему из точных отрезков и прямоугольных участков. Для простой архитектурной и ремонтной графики это очень продуктивная модель работы.
В диалоге построения размера от курсора задаются Angle и Length, причем длина разбивается на футы, дюймы и доли дюйма, а направление можно быстро выбрать кнопками вокруг схематичной стрелки. Это характерный пример философии Home Plan Pro: в программе много мест, где вместо свободного ручного движения предлагается численное действие. Именно за счет этого она удобна как программа для технического плана помещения, а не просто как визуальный набросок.
Ниже как раз видно окно команды, через которое в Home Plan Pro строится размерная линия от точки курсора по углу и длине.

Стены, двери, окна и лестницы
Для Home Plan Pro важен именно строительный каркас 2D-плана. В программе есть Adjustable Wall Thicknesses, а также режимы автопостроения стен. Это значит, что здесь можно не просто обозначить помещение тонкими линиями, а действительно собирать читаемый план с нормальной толщиной наружных и внутренних стен. Для плана ремонта квартиры, плана перепланировки или схемы частного дома это критично: толщина перегородки влияет и на внешний вид чертежа, и на то, как затем расставляются проемы и размеры.
Вставка дверей и окон в Home Plan Pro автоматизирована. Функция Automatic Door & Window Insertion снимает необходимость рисовать каждый проем вручную. На обычных проектах это уже ускоряет работу, но особенно показательна команда Draw French Doors из Auto Draw: пользователь рисует первую створку, задавая петлю, защелку и положение открывания, а вторая створка строится автоматически. Это очень характерный пример того, как программа решает конкретную задачу без избыточной сложности.
С окнами ситуация аналогичная: Home Plan Pro поддерживает автоматическую вставку, а центрирование и позиционирование помогают выполнять стены и вспомогательные линии. В справочной структуре программы отдельно упоминается возможность держать центральную линию вдоль стен для удобства размещения окон и дверей, а также регулировать ширину окон. На практике это означает, что программа подходит не только для условной схемы, но и для аккуратного, размерного рабочего листа.
Еще одна важная функция — Stairs через Auto Draw. Здесь Home Plan Pro предлагает не рисовать лестницу вручную с нуля, а использовать Stair routine. Мастер спрашивает общую высоту лестницы, общую ширину, глубину проступи, высоту подступенка или позволяет использовать Calculate Optimum Riser Height, затем предлагает выбрать направление лестничного марша и при желании поставить индикатор направления на план. Для небольших проектов этого более чем достаточно: лестница получается не декоративной картинкой, а конкретным 2D-элементом чертежа.
Размеры, масштаб, привязка и точность
Home Plan Pro держится на точности не за счет сложной параметрики, а за счет правильной комбинации размеров, сетки, численных построений и понятного контроля курсора. Программа умеет Automatic Dimension Lines, умеет строить размерные линии по точке, углу и длине, позволяет выбирать масштаб печати и сохраняет отдельные настройки snap grid для каждого zoom level. Это не та система, где все живет в единой интеллектуальной модели здания, но для 2D программы для планировки дома такой набор очень практичен.
Snap Grid в Home Plan Pro сделан грамотно. Пользователь может независимо включать саму привязку и видимость линий сетки, настраивать шаг сетки и, что особенно удобно, хранить отдельный шаг для каждого уровня приближения. В справочной части также указано, что действие Snap Grid можно временно переопределять клавишей Control. Это полезно в реальной работе: на одном масштабе можно держать грубую модульную сетку, а на другом — работать с более мелкими деталями, не перенастраивая программу каждый раз вручную.
Важную роль играет и нижняя статусная строка. На рабочем экране постоянно видны координаты по горизонтали и вертикали, длина, угол, экранное разрешение, параметры snap и индикаторы режима измерения. Дополнительно Home Plan Pro использует экранные Odometers для отслеживания движения курсора. В сумме это превращает обычный процесс повел мышкой в более контролируемое действие, что критично, когда вы делаете чертеж помещений в Windows не для красоты, а для строителя, мастера, замерщика или клиента.
Масштабирование в программе тоже организовано рационально. Есть zoom in / zoom out, кнопка подгонки плана под экран, а сами уровни zoom вынесены в нижнюю часть интерфейса. В справочной структуре отдельно описана команда Make Plan Fit Screen, а в меню Tools есть Make Drawing Fit Screen. Когда работаешь с общим контуром дома, удобно держать план целиком; когда переходишь к проемам, сантехнике или размерным цепочкам — приближение дает необходимую детализацию без смены инструмента.
Фигуры, мебель, символы и повторное использование элементов
Home Plan Pro хорош не только как инструмент для стен и размеров, но и как программа для расстановки мебели на плане. В ней есть hundreds of resizeable, rotatable figures in furniture & symbol libraries, а на главной странице продукта отдельно говорится о 500+ pre-drawn figures and symbols для мебели, fixtures, окон, дверей и других объектов. Это не 3D-каталог брендов, а рабочая библиотека 2D-символов — и именно для таких программ это нередко удобнее. В большинстве планов ремонта, перепланировки и меблировки нужна не дизайнерская визуализация дивана, а его понятный контур на листе.
В реальных обзорах программы упоминаются категории для ванной, мебели, уличной мебели, landscaping, а также utility-объекты вроде электрических панелей и проводки. Даже если использовать не все эти библиотеки, сам принцип важен: Home Plan Pro закрывает не только оболочку здания, но и внутреннее содержание плана. За счет этого программа подходит не только для плана стен, но и для плана расстановки мебели, простых интерьерных схем и технических листов с инженерными обозначениями.
С объектами можно работать достаточно гибко. Через контекстное меню доступны Move Figure, Rotate Figure, Rotate Figure 45° clockwise, Re-Size Figure, Flip Figure Horizontally, Flip Figure Vertically, Change Figure Color, Make a Copy of the Figure. Для 2D-библиотек этого достаточно: выбранный элемент не остается статичной картинкой, а быстро приводится к нужному положению и масштабу. Если приходится собирать несколько похожих помещений, это экономит заметное количество времени.
Еще одна сильная сторона Home Plan Pro — clip files. Программа позволяет сохранить выделенный фрагмент в отдельный clip file, потом загрузить его обратно и использовать в другом плане. В FAQ-материалах прямо объясняется, что пользователь может сам нарисовать нужный объект, выделить его и сохранить для повторного применения. На практике это превращает Home Plan Pro в накапливаемую рабочую среду: один раз сделал удачный сантехнический узел, лестничный блок, типовой санузел или мебельный модуль — дальше просто вставляешь готовую заготовку.
Заливки, паттерны и визуальная читаемость чертежа
В Home Plan Pro много внимания уделено не только геометрии, но и тому, чтобы план нормально читался визуально. В программе есть dozens of fill patterns, а также диалог выбора паттернов и цветовых заливок. Это позволяет отделять материалы и зоны не только подписью, но и графикой: например, выделить участок кирпичной стены, древесную зону, покрытие пола или условный блок штриховкой. Для технического плана это не украшательство, а способ ускорить чтение листа.
В окне настройки scalable patterns видны группы вроде Framing, Siding, Blocks, Bricks, Tile, Shingles, а также параметры ширины и высоты блока, выбор цвета линии и цвета заливки, плюс режим построения Rectangle или Polygon. Это конкретный, практический набор: Home Plan Pro не просто разрешает заливку, а дает материалоподобные шаблоны, которые действительно полезны в строительной графике. И именно в таких деталях становится понятно, что программа ориентирована на рабочие планы, а не на абстрактные схемы.
Ниже показано окно работы со scalable patterns, где можно выбирать тип паттерна и настраивать его геометрию.

Диалог Select Fill Pattern еще нагляднее показывает подход программы: есть вкладки Solid Fills и Fill Color, большие блоки Standard Fill Patterns и Other Fill Patterns, отдельный выбор Background Color и Drawing Color, а также опция Hide Fill Outline. На хорошем рабочем плане это позволяет легко отличать конструктив, мебель, инженерные зоны и декоративные элементы, не перегружая чертеж лишними линиями. Для редактора поэтажных планов это крайне полезно.

С визуальной точки зрения итоговые планы Home Plan Pro выглядят не модно, а именно по-рабочему. Это важное различие. Программа не старается превратить план в рекламную картинку; она старается сделать его понятным: где стена, где проем, где размер, где мебель, где штриховка, где подпись. Для риелторского листа, для ремонтного задания, для сметчика или подрядчика такая прагматичная подача нередко полезнее, чем чрезмерно декоративная графика.
Текст, подписи и изображения
Home Plan Pro поддерживает несколько размеров текста и отдельный блок Text в главном меню. На верхней панели программы также видны команды Insert Text, Warp Text, Create a Column from Selected Text, а также возврат к стандартным настройкам масштабирования текста. Это показывает, что текстовые подписи в Home Plan Pro рассматриваются не как случайное дополнение, а как полноценная часть документа. Для плана квартиры, плана ремонта или поэтажной схемы без нормальных подписей программа теряла бы половину пользы.
Для рабочих задач это особенно важно. В Home Plan Pro обычно подписывают названия помещений, размеры, типы покрытий, технические примечания, обозначения инженерных зон и комментарии по демонтажу или монтажу. То, что текст вынесен в отдельный блок меню, а не спрятан внутри общей панели, делает работу с аннотациями быстрее. В 2D-чертежах текст почти всегда играет такую же роль, как и геометрия.
Верхнее меню Pictures и материалы справки показывают еще одну полезную возможность: Home Plan Pro умеет работать с внешними изображениями и управлять ими через picture-related команды. В справочной структуре отдельно описана возможность вращать picture через форму управления изображением, а также общий блок по bitmap pictures и различиям vector / bitmap. Это удобно, когда нужно подложить растровую основу, фрагмент старого плана, эскиз или отсканированную схему и уже поверх нее собрать чистовой 2D-план.
Слои: одна из самых сильных сторон Home Plan Pro
Для серьезной работы Home Plan Pro очень важно уметь разделять содержимое чертежа, и программа это делает через Layers. Каждый элемент принадлежит какому-то слою, новый план стартует с Base Layer, а пользователь может добавлять новые слои для отдельных разделов — например, Electrical, Plumbing, Walls. Это фактически позволяет хранить несколько логических схем внутри одного plan file и переключать их отображение по необходимости.
Практический смысл здесь огромный. Допустим, вы готовите план ремонта квартиры. На одном слое оставляете стены и проемы, на втором — мебель, на третьем — электрику, на четвертом — сантехнику. Дальше можно выключать ненужные видимые слои и печатать только то, что требуется конкретному исполнителю. Для электрика не обязательно видеть мебель, для мебельщика — трассы сантехники, для заказчика — служебные черновые разметки. Home Plan Pro решает это очень прямолинейно и эффективно.
Работа со слоями в программе реализована конкретными командами, а не общими словами. Если элемент нужно перенести, используется Move Selected Element to Active Layer. Есть команда Select All Elements in the Active Layer. Слой можно переименовать, удалить вместе со всеми его элементами, а чтобы сделать слой активным и одновременно скрыть остальные, достаточно удерживать Control и кликнуть по названию слоя. Для такой небольшой программы это действительно зрелая организация чертежа.
Есть и характерные ограничения: имя слоя ограничено десятью символами, а пустой слой не сохраняется, если в нем ничего не нарисовано. Но в реальной работе это почти не мешает. Наоборот, подобная дисциплина заставляет пользоваться слоями по делу, а не плодить хаос. Для программы для простых архитектурных чертежей и рабочих планов этого более чем достаточно.
Печать, масштаб печати и подготовка листа
Home Plan Pro изначально проектировалась как программа для печати строительных планов, и по меню это видно сразу. В наборе функций есть Adjust Print Margins to Fit Preprinted Forms, Choose Customary or Custom Print Scales, Print on Paper up to 14 x 22, Print to Laser, Ink Jet or Dot Matrix Printers, Select Paper Size & Orientation from a Graphic Display. На главной странице дополнительно отмечено, что можно либо задать конкретный масштаб, либо автоматически подогнать план под самый крупный доступный формат бумаги.
Это очень сильный аргумент в пользу Home Plan Pro, если нужен именно лист, а не абстрактный файл. Во многих современных сервисах пользователь рисует план удобно, но потом упирается в ограничения печати, экспорта или масштабирования. Здесь же печать — часть базовой логики программы. Когда нужен план помещения для подрядчика, лист для оценщика или распечатка для замера на объекте, Home Plan Pro ведет себя как прикладной инструмент, а не как демонстрационная игрушка.
File menu в Home Plan Pro прямо содержит Print Current Plan, Print Preview, Print Current Selection, Printer Setup и Print Settings. Это тоже важно: программа позволяет печатать не только весь план целиком, но и отдельный текущий фрагмент. Такой режим нужен постоянно — например, когда проект большой, а исполнителю нужен только санузел, лестничный узел или один этаж.
Экспорт, обмен файлами и резервные копии
Для обмена данными Home Plan Pro дает достаточно практичный набор средств. На страницах программы указаны DXF, PDF и common bitmap formats, а в меню File видны также Import from DXF and DWG Files, Save as PDF File и Export. Для старой, но рабочей 2D-среды это хороший комплект: DXF нужен для совместимости с CAD-системами, PDF — для отправки клиенту и печати, bitmap — для быстрых изображений, а импорт DXF/DWG полезен, когда нужно открыть существующую основу и доработать ее.
У программы есть и инструменты для повторного использования и страховки данных. В Q&A-материалах говорится, что Home Plan Pro умеет создавать backup текущего плана и восстанавливать его из backup, причем резервная копия делается как стандартный ZIP. В меню Tools отдельно есть Manage Backed Up Plans, а в File — Make a Backup of Current Plan. Для программы, рассчитанной на практическую ежедневную работу, это правильный подход: чертежи не должны зависеть от одной случайной сессии.
Интересная особенность Home Plan Pro — встроенные средства отправки. В программе есть Fax Current Plan, Fax Current Selection и Email Current Plan. Электронная отправка работает с прикреплением текущего plan-файла, а при необходимости можно добавить и другие вложения — например, экспортированный DXF или bitmap. Сегодня это выглядит немного олдскульно, но логика у такой функции абсолютно рабочая: программа создавалась как инструмент документооборота вокруг чертежа, а не только как место рисования.
Производительность и удобство в повседневной работе
Home Plan Pro ценят не за эффектность, а за скорость выхода на результат. Материалы по программе постоянно подчеркивают, что ее легко освоить и что план можно начать собирать буквально в первые минуты. В сочетании с небольшим размером программы, простым интерфейсом и прямыми командами это дает то, чего часто не хватает более современным решениям: человек быстро получает рабочий план, а не тратит время на освоение среды.
В этом смысле Home Plan Pro хорошо подходит как программа для плана квартиры, когда нужен понятный, измеряемый результат без длинного обучения. Она не заставляет переключаться между концепцией 2D, BIM-логикой, фотореалистичным рендером, каталогами материалов и сложной моделью здания. Все гораздо прямее: линия, стена, размер, символ, слой, печать. Именно поэтому Home Plan Pro до сих пор смотрится практичнее многих перегруженных программ в тех сценариях, где пользователю нужен не дизайн-аттракцион, а чертеж.
С другой стороны, такой подход накладывает очевидные границы. Home Plan Pro не строит автоматическую 3D-модель, не ведет полноценную информационную модель здания, не дает современной визуализации интерьеров и не заменяет тяжелые архитектурные пакеты. Но для множества реальных задач это не недостаток, а честная специализация: программа решает свою 2D-задачу и не распыляется на чужие территории.
Сильные стороны Home Plan Pro
У Home Plan Pro есть набор достоинств, который сложно игнорировать, если смотреть на программу как на рабочий инструмент.
-
Четкая 2D-специализация. Home Plan Pro не притворяется универсальным пакетом и именно поэтому быстро дает результат на планах домов, квартир и помещений.
-
Низкий порог входа. Интерфейс старомодный, но логичный; базовые действия видны сразу.
-
Точные численные построения. Auto Draw, Dimension From Cursor Position, сетка и status bar делают программу удобной для размерной работы.
-
Полезные библиотеки фигур. Мебель, двери, окна, сантехника и символы реально ускоряют выпуск плана.
-
Хорошая логика печати. Масштабы печати, preview, печать выделенного фрагмента, PDF и DXF — сильная сторона программы.
-
Слои и clip files. Это делает Home Plan Pro пригодной не только для единичного плана, но и для повторяемой рабочей практики.
Если свести все к одному тезису, сильная сторона Home Plan Pro — в том, что это программа для создания плана дома и помещения, которая не тормозит сам процесс выпуска чертежа. Она не пытается впечатлить лишним, а помогает рисовать, редактировать, измерять и печатать.
Слабые стороны и ограничения
Слабые стороны у Home Plan Pro тоже вполне очевидны. Первая — полное отсутствие современной 3D-составляющей. Если нужен интерьерный просмотр, walkthrough, фотореалистичный рендер, игра со светом и материалами, эта программа не про это. Home Plan Pro работает в плоскости 2D и именно там раскрывается. Для части пользователей это будет достоинством, для части — жестким ограничением.
Вторая слабость — визуальная возрастность интерфейса. Он функционален, но не современен. Некоторые функции, вроде встроенного факса или внутренней почтовой отправки, сегодня воспринимаются скорее как наследие эпохи, чем как ключевой аргумент в пользу покупки. При этом сама чертежная логика от этого хуже не становится, но ощущение старой Windows-программы Home Plan Pro скрыть не пытается.
Третье ограничение — программа не заменяет систем, которые умеют автоматически формировать полноценную 3D-модель, обновлять крыши, фундамент, framing и ведомости материалов при изменении стен. Такие возможности есть у более тяжелых решений вроде Home Designer / Chief Architect, а у Home Plan Pro основной фокус остается на быстром 2D-листе. Поэтому в крупных архитектурных проектах с большим числом зависимостей она уже уступает более развитым пакетам.
Сравнение с аналогами
Sweet Home 3D
Sweet Home 3D решает другую задачу. Эта программа тоже умеет работать с планом дома, стенами, окнами, дверями и мебелью, но ее сильнейшая сторона — одновременная связка 2D и 3D, причем пользователь может сразу видеть помещение в трехмерном виде, импортировать мебель, настраивать текстуры, получать фотореалистичные изображения и видео. Кроме того, двери и окна в Sweet Home 3D автоматически пробивают отверстия в стенах, а каталог мебели там организован как полноценная extensible library.
На фоне Sweet Home 3D Home Plan Pro выглядит более жесткой и технической средой. Если нужен рабочий 2D-план помещения, быстрое численное построение, понятная печать в масштабе и минимум отвлекающих факторов, Home Plan Pro часто оказывается удобнее. Но если приоритет — интерьерная подача, 3D-просмотр, фотогенерация или визуальная работа с пространством, Sweet Home 3D объективно сильнее. В прямом сравнении это разница не старое против нового, а 2D рабочий лист против 2D+3D визуального планировщика.
Room Arranger
Room Arranger ближе к практическому сегменту, но и он смещен в сторону 3D-просмотра и интерьерного планирования. У него есть 3D view, широкая object library, возможность создавать собственные объекты, поддержка нескольких этажей, построение поверх floor plan image и печать в масштабе. Это делает Room Arranger хорошим выбором для меблировки, планировки комнат, квартир и небольших домов, особенно когда нужно быстро оценить компоновку в трехмерном виде.
Home Plan Pro в сравнении с Room Arranger выигрывает там, где важнее чертежная дисциплина, прямой доступ к 2D-командам, слои, clip files, численные построения от курсора и более явная ориентация на технический план. Room Arranger приятнее для пространственного восприятия и интерьера, а Home Plan Pro — для тех случаев, когда нужна программа для плана ремонта квартиры или поэтажный лист без лишней визуализации. Если задача — убедиться, влезет ли шкаф и как выглядит комната в 3D, Room Arranger удобнее. Если задача — собрать четкий лист с размерами и логикой CAD, Home Plan Pro чаще рациональнее.
FloorPlan
FloorPlan — уже существенно более широкий продукт. В его арсенале есть 2D/3D design with precise auto-dimensions, automatic cost estimator, building tools, lighting simulations и множество способов просмотра проекта. То есть FloorPlan работает не только как программа для поэтажного плана, но и как система более широкого домашнего проектирования с выходом в визуализацию, оценку стоимости и комплексную разработку интерьера и экстерьера.
На этом фоне Home Plan Pro выглядит проще, уже и строже. Но в этой простоте есть сила: если вам не нужен cost estimator, ландшафтный модуль, сложная 3D-навигация и расширенный инструментарий проектирования, Home Plan Pro часто дает более короткий путь к результату. FloorPlan логичнее выбирать для комплексной проработки будущего дома и участка, а Home Plan Pro — для простого архитектурного чертежа, ремонтного плана, схемы этажа, технического листа или быстрого плана помещений.
Home Designer / Chief Architect
Здесь разрыв самый заметный. Home Designer и Chief Architect строятся вокруг автоматического построения 3D-модели при рисовании стен, умеют обновлять roof, foundation и framing, поддерживают materials list и дают значительно более мощные building tools. В системах этого уровня пользователь получает уже не просто плоский лист, а постоянно пересчитываемую проектную модель с автоматическими строительными зависимостями.
Home Plan Pro на этом фоне не конкурирует напрямую и не должна. Она удобна как легкая программа для 2D-плана дома, тогда как Home Designer / Chief Architect — это уже другой класс задачи. Если вы проектируете дом с полноценной архитектурной логикой, сложной конструкцией, детальными 3D-представлениями и материалами, Home Plan Pro будет тесна. Но если нужен быстрый план этажа, пристройки, перепланировки, меблировки или ремонто-строительного задания, ее компактность и прямолинейность оказываются скорее преимуществом, чем слабостью.
Сводная оценка аналогов
| Программа | В чем сильнее Home Plan Pro | В чем сильнее аналог |
|---|---|---|
| Sweet Home 3D | Быстрее именно как 2D-чертежный инструмент, меньше отвлекает визуальной частью | 3D-просмотр, рендеры, работа с текстурами и каталогом мебели |
| Room Arranger | Более техничный подход к 2D-листу, слои, clip files, точные построения | 3D-визуализация, многослойное интерьерное планирование, удобство для меблировки |
| FloorPlan | Проще и быстрее, если нужен только рабочий 2D-план | 2D/3D-среда, оценка стоимости, более широкий инструментарий |
| Home Designer / Chief Architect | Легче освоить для простого плана, меньше перегрузка | Автоматическая 3D-модель, строительная логика, материалы, сложные архитектурные инструменты |
В сухом остатке Home Plan Pro занимает четкую нишу: между простым рисованием и тяжелым домостроительным пакетом. Это не самая зрелищная программа, но очень понятная и прикладная, когда нужен именно 2D планировщик помещений с нормальными размерами, слоями и печатью.
Кому подойдет Home Plan Pro
Home Plan Pro хорошо подойдет нескольким категориям пользователей. Во-первых, это владельцы домов и квартир, которым нужна программа для плана квартиры или дома без долгого обучения. Во-вторых, частные мастера, прорабы, отделочники, небольшие подрядчики и оценщики — те, кто часто готовит простые рабочие схемы для клиента или объекта. В-третьих, риелторы и специалисты по недвижимости, которым нужны понятные 2D-планы помещений для документации и презентации. Именно для таких ролей программа и упоминается в базовом позиционировании.
Подойдет она и тем, кто регулярно работает с повторяющимися планами. Если вы делаете типовые санузлы, однотипные офисные комнаты, планы небольших домов, лестничные клетки, схемы меблировки или ремонтные раскладки, Home Plan Pro удобна тем, что позволяет сохранять фрагменты, клонировать действия, переиспользовать clip files и организовывать проект по слоям. Это очень рабочий, профессионально полезный набор, хотя внешне программа и выглядит скромно.
Не подойдет Home Plan Pro тем, кому нужна именно современная 3D-подача: дизайнерские walkthrough, быстрые красивые рендеры, презентационная картинка или автоматическая строительная модель с расчетом материалов и глубокой архитектурной логикой. Там уже лучше смотреть в сторону Sweet Home 3D, FloorPlan, Home Designer или Chief Architect — в зависимости от бюджета и задач.
Итог
Home Plan Pro — это хорошая, честная и до сих пор удобная программа для создания плана дома и помещения в 2D, рассчитанная на людей, которым нужен не визуальный аттракцион, а понятный рабочий чертеж. Ее сильные стороны — численные построения, размеры, Auto Draw, двери и окна, лестницы, слои, фигуры, clip files, печать в масштабе и экспорт в пригодные для обмена форматы. Она особенно хороша там, где нужно быстро сделать план ремонта квартиры, план этажа, схему дома, планировку помещения или технический лист для подрядчика.
Главное, что нужно понимать о Home Plan Pro: это не универсальная платформа на все случаи и не конкурент современным 3D-системам в их сильных сторонах. Но как программа для простых архитектурных чертежей, редактор поэтажных планов и инструмент для планов дома, квартиры и помещений с размерами она остается очень практичной. Если нужен быстрый, аккуратный, масштабируемый 2D-результат, Home Plan Pro выглядит убедительно даже сейчас. Если нужен современный 3D-дизайн и глубокая архитектурная автоматизация, лучше сразу смотреть в другой класс ПО.
FAQ
Подходит ли Home Plan Pro для плана квартиры?
Да. Home Plan Pro хорошо подходит для плана квартиры, потому что умеет работать со стенами, проемами, размерами, мебелью, слоями и печатью в масштабе. Для перепланировки, ремонта, меблировки и поэтажной схемы этого набора достаточно.
Есть ли в Home Plan Pro 3D?
Нет. Home Plan Pro — это 2D CAD-программа, ориентированная на рабочие планы и чертежи. Для 3D-визуализации нужны другие решения.
Можно ли в Home Plan Pro точно задавать размеры?
Да. Для этого используются Automatic Dimension Lines, Dimension From Cursor Position, инструменты длины и угла в Auto Draw, а также сетка и статусные параметры. Программа рассчитана именно на размерную работу, а не на свободный набросок.
Можно ли использовать Home Plan Pro для ремонта?
Да, и именно в ремонте программа особенно уместна. Она позволяет собрать план стен, проемов, мебели, инженерных слоев и выпустить читаемый 2D-лист для исполнителей.
Подойдет ли программа для меблировки и сантехнических схем?
Да. В Home Plan Pro есть библиотеки готовых фигур и символов, которые можно вставлять, поворачивать, масштабировать, зеркалить и копировать. Для планов мебели, санузлов и технических схем это очень удобно.
Насколько Home Plan Pro сложна для новичка?
Невысокий порог входа — одна из основных сильных сторон программы. Home Plan Pro не современна визуально, но логика меню и инструментов очень прямая: рисование, размеры, слои, фигуры, печать, экспорт. Для новичка, которому нужен именно 2D-план, это чаще плюс, а не минус.