Punch Home Design — это не рисовалка комнат и не облегчённый декоратор с красивыми рендерами ради картинки. В формате Punch! Home & Landscape Design Professional программа работает как полноценный проектный комбайн для частного дома: здесь можно собрать поэтажный план, выстроить стены, окна, двери, крышу, лестницы, террасы, ограждения, инженерные элементы, а затем перейти к интерьеру, отделке, участку, топографии, растениям, поливу и смете. У этой программы отчётливо строительная логика: она не ограничивается расстановкой мебели и подбором цвета стен.
Главная особенность Punch! Home & Landscape Design Professional в том, что она держит вместе несколько сценариев, которые в других продуктах часто разбросаны по разным приложениям. Один и тот же проект можно вести от чернового плана до 3D-визуализации, от кухни и ванной до террасы, дорожек, рельефа участка и расчёта материалов. У Professional-редакции для этого есть расширенный 2D-движок, Floor Plan Trace, Foundation Planner, HVAC Planner, Electrical Planner, Estimator with Room Estimating, Instant 3D Views, Roof Tools, Dormer Tool, Framing, Cabinet Tool, Window Designer, Door Designer, Trim Designer, Fireplace Wizard, Topography Tools, Irrigation Tools, Fence Designer, Pool Designer, Site Planner и Photo Rendering на базе LuxCore.
Скачать Punch Home Design
- Планировка дома
- Русский интерфейс
- Просто для новичков
- Платная версия
- Сложен новичкам
- Требует ресурсы
Punch Home Design особенно хорошо чувствует себя там, где проект не сводится к покрасить стены и поставить диван. Если задача — продумать перепланировку, построить понятный план дома, проверить объёмы, быстро посмотреть интерьер в 3D, а затем ещё и посадить участок, задать уклоны рельефа, дорожки, полив и дек с ограждением, тогда эта программа раскрывается полностью. В этом и есть её отличие от сервисов, которые сильны либо только в интерьере, либо только в чистом черчении.
Что Punch! Home & Landscape Design Professional даёт на практике
| Сценарий | Что в программе для этого есть |
|---|---|
| Планировка дома | QuickStart, Floor Plan Trace, Room Addition Tool, Curved Wall Tool, Baywall, до 12 этажей |
| Интерьер | 5 469 3D-объектов, 7 640+ материалов, Decorator Palette, QuickPalettes, SmartWand, Material Editor |
| Кухня и ванная | Cabinet Tool, Window Designer, Door Designer, Ceiling Designer, Trim Designer, Mantel Designer, Fireplace Wizard |
| Конструктив | Automatic and Custom Roof Tools, Automatic Gables, Dormer Tool, Framing, Foundation Planner |
| Участок | 4 000+ растений, Topography Tools, Plant Fill, Plant Inventory Bar, Irrigation Tools, Fence Designer, Pool Designer, IntelliDeck |
| Инженерия | Electrical Planner, HVAC Planner, кабельные и термостатные элементы |
| Смета | Estimator with Room Estimating, экспортируемая таблица материалов и затрат |
| Совместимость | OBJ export/import, DXF/DWG import/export, PDF Import 2D, SketchUp import, 3DS import, STL export |
Эта таблица хорошо показывает, почему обзор Punch Home Design нужно писать именно как обзор конкретной программы, а не абстрактного класса софта. Здесь нет одной главной фишки, вокруг которой строится всё остальное. Punch! Home & Landscape Design Professional ценен именно связкой инструментов: 2D-планировка, 3D-визуализация, интерьер, участок и смета находятся внутри одной среды и в одном файле проекта.
Что представляет собой Punch Home Design и для кого он рассчитан
Если описывать Punch! Home & Landscape Design Professional одним предложением, это программа для тех, кому нужен не только красивый вид, но и рабочая структура проекта. Она подходит частным пользователям, которые делают ремонт или строят дом, дизайнерам интерьера, ландшафтным специалистам, подрядчикам и всем, кто хочет в одной системе собрать планировку, отделку, экстерьер и участок. Программа поддерживает точную 2D-планировку, аннотации, размеры, чертёжную логику, а параллельно даёт быстрый переход в 3D и полноценную библиотечную работу с материалами и объектами.
Punch Home Design не выглядит как лёгкий онлайн-планировщик, и это его сильная сторона. Здесь много инструментов, которые имеют смысл только в более серьёзном проектировании: Foundation Planner, HVAC Planner, Electrical Planner, Framing, Site Planner с координатами границ участка, Plant Inventory Bar, Irrigation Tools, Layout Manager 2D, Note Markers, Plan Labels, Level Lines, Symbol Editor и Section Detailer. Всё это переводит программу из категории поиграться с интерьером в категорию прикладного проектного инструмента.
При этом Punch не уходит в тяжёлую BIM-логику. Он не перегружает пользователя инженерной бюрократией и не превращает каждую стену в бесконечный набор параметров, как это бывает в более жёстких архитектурных системах. Здесь всё построено вокруг довольно понятной схемы: нарисовал план, отредактировал свойства, посмотрел в 3D, докинул материалы, поправил участок, посчитал материалы. Поэтому программа одинаково хорошо подходит и под проектирование дома с нуля, и под сценарий есть существующий дом, надо быстро продумать перепланировку, фасад, двор и отделку.
Интерфейс: как устроено рабочее пространство Punch Home Design
Интерфейс Punch! Home & Landscape Design Professional организован так, чтобы пользователь большую часть времени проводил между 2D-планом, 3D-окном и панелью свойств справа. Верхняя часть интерфейса разбита по вкладкам и направлениям работы: Floor, Electrical, Plumbing, Roof, HVAC, Deck, Landscape, Detail, Framing. Это важный момент: Punch сразу показывает, что проект состоит из отдельных профессиональных зон, а не из одного бесконечного меню мебели и отделки.
В реальной работе одна из самых полезных связок — режим Split Screen, когда слева остаётся 2D-план, а справа открыто 3D-представление. Так удобно не только проверять объём, но и сразу видеть, как любое изменение в плане влияет на геометрию дома, крышу, двери, проёмы, отделку и окружение. Punch буквально подталкивает к такому режиму: многие действия понятнее именно в паре 2D+3D, а не по отдельности.
Очень характерная деталь интерфейса — Tool Options bar справа. Выделяете стену, дверь, крышу, лестницу или другой объект, и справа получаете набор параметров именно этого элемента. Это не декоративная боковая панель, а центральный узел работы. Через неё меняются толщина стен, высота, шаг стоек, размеры дверей, тип открывания, параметры крыши, угол уклона, свойства лестницы и многое другое. В Punch Home Design вообще многое строится на связке выделил объект → поправил свойства справа → подтвердил изменение.
Есть ещё один важный нюанс, который быстро понимаешь после первых часов работы: в Punch многие числовые изменения нужно подтверждать Enter. Это мелочь, но она напрямую влияет на ощущение от программы. Если не привыкнуть, можно решить, что параметр не применился. Если привыкнуть — работа становится заметно быстрее и предсказуемее. Для Punch это типичное поведение интерфейса, и его стоит учитывать с самого начала.

Типичная рабочая сцена в Punch: слева план, по центру 3D-вид, справа свойства выбранного объекта.
С чего начинается проект: четыре нормальных входа в работу
У Punch Home Design сильный стартовый этап. Программа не заставляет всех пользователей начинать одинаково и даёт сразу несколько сценариев входа в проект. Это одна из причин, почему она удобна и для нового дома, и для реконструкции, и для работы по существующему плану. Внутри Punch есть четыре естественных точки старта: QuickStart, Professionally Designed Plans, Floor Plan Trace и PhotoView.
QuickStart
QuickStart — один из самых удачных режимов в программе. Он строится не от внешнего контура здания, а от набора помещений: пользователь раскладывает комнаты по логике будущего дома, а Punch помогает быстро собрать базовый план. Это особенно удобно, когда вы не хотите вычерчивать весь контур вручную и пока мыслите не фасадом, а составом пространства: кухня, гостиная, спальня, санузел, лестничный холл и так далее. Именно поэтому QuickStart хорошо подходит для первых черновиков, когда важнее логика связей между комнатами, чем идеальная геометрия фасада.
Professionally Designed Plans
Второй вход — готовые редактируемые планы. Это не просто витрина для вдохновения. В Punch такие планы удобно использовать как рабочую основу: посмотреть логику размеров, взять конфигурацию помещений, проверить лестничную зону, развернуть кухню, адаптировать схему под свой участок. Для пользователя без архитектурного бэкграунда это один из самых быстрых способов не упереться в чистый лист.
Floor Plan Trace
Третий способ — Floor Plan Trace. Это один из самых практичных инструментов во всей программе. Вы загружаете схему, скан, набросок или сохранённый план и трассируете его в Punch поверх изображения, сохраняя масштаб. Работает это не как декоративная подложка, а как нормальный рабочий режим: сначала через Design > Floor Plan Trace Properties настраивается размер подложки, после чего можно поверх неё вести стены, окна, двери и прочие элементы. Когда трассировка закончена, изображение скрывается через Design > Show Floor Plan Trace Image.
Floor Plan Trace особенно полезен в трёх сценариях: когда у вас есть скан старого плана дома; когда нужно быстро перенести схему из PDF или эскиза; когда проект начинается с ручного чертежа, а не с чистого цифрового файла. В обзоре Punch Home Design этот режим обязательно нужно выделять отдельно, потому что именно он делает программу по-настоящему удобной для реконструкции и перепланировки существующих домов.

Режим Floor Plan Trace позволяет подложить изображение плана, выстроить по нему стены и затем скрыть подложку.
PhotoView
Четвёртый путь — PhotoView. Это уже сценарий не столько для плана, сколько для существующего дома и участка. Через Design > Launch PowerTools > PhotoView можно загрузить фотографию фасада или интерьера, масштабировать её, а затем достраивать проект поверх изображения и использовать снимок как основу для визуального редизайна. Это мощная вещь для тех случаев, когда дом уже стоит, а вам нужно понять, как будут смотреться новые дорожки, клумбы, проезды, отделка, детали экстерьера или элементы входной зоны.
PhotoView хорош тем, что не отрывает проект от реальности. Вместо абстрактной 3D-сцены пользователь может работать по реальному фото участка или фасада, а это значительно полезнее при обсуждении проекта с семьёй, клиентом или подрядчиком. Для ландшафта Punch Home Design это вообще один из лучших режимов: вы видите существующий дом и буквально накладываете на него новую среду.

PhotoView позволяет использовать фото дома как основу для ландшафтного и фасадного редизайна.
Пошагово: как сделать проект дома в Punch Home Design
Если разложить работу в Punch! Home & Landscape Design Professional по шагам, то нормальный сценарий выглядит так.
1. Создать базовый план этажа
На старте вы выбираете QuickStart, готовый план или трассировку подложки. Дальше задаются комнаты, стены, размеры и базовая структура этажа. В Professional-редакции есть Advanced Floor Management, причём программа поддерживает многоэтажную структуру до 12 уровней, поэтому Punch не упирается в одноэтажный дом или простую квартиру. Для надстроек, мансард, цоколя, подвала и сложной поэтажной логики этого хватает с запасом.
2. Построить стены и скорректировать геометрию
Дальше вступают в дело Wall Tools, Wall Break, Curved Wall Tool, Baywall и Room Addition Tool. Punch позволяет не только рисовать прямолинейные стены, но и дробить сегменты, менять длину, работать с эркерами и криволинейными участками. В обзоре Punch Home Design важно отметить, что программа не запирает пользователя в примитивной прямоугольной сетке. Здесь можно собрать и довольно живую архитектуру, особенно если грамотно использовать Edit Point Tools и подправлять сегменты после базовой раскладки комнат.
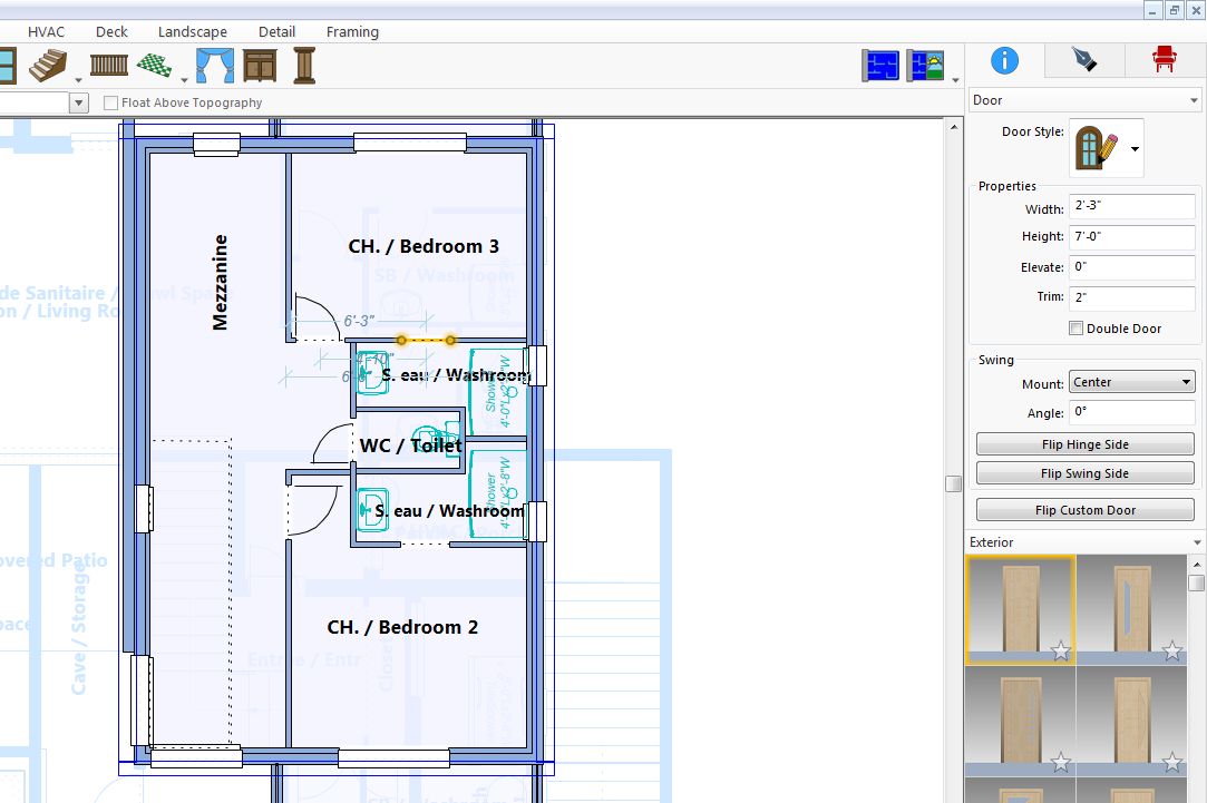
3. Добавить двери и окна
После стен логично переходить к проёмам. В Punch двери и окна добавляются из инструментов на вкладке Floor, а затем настраиваются через правую панель. Здесь меняются ширина, высота, отметка, тип установки, сторона открывания и другие параметры. У Professional есть не только базовая вставка проёмов, но и более глубокая кастомизация через Window Designer и Door Designer, что особенно полезно, когда стандартных библиотечных решений уже не хватает.

После вставки двери или окна их основные параметры редактируются через правую панель свойств.
4. Настроить лестницы, перекрытия и вырезы
Если проект не одноэтажный, следующая стадия — лестницы и перекрытия. В Punch для этого есть Stairway-инструменты и Flooring & Cutouts. Прямую лестницу программа позволяет строить с помощью Straight Stairway Tool: вы ставите точки траектории, задаёте направление подъёма, а потом корректируете высоту лестницы, ширину, высоту подступенка, глубину ступени и другие параметры. Это не готовый объект ради картинки, а вполне рабочий инструмент планировки вертикальной связи между уровнями.
5. Перейти в 3D и проверить объём
После базовой 2D-схемы Punch очень быстро переводит проект в объём через Instant 3D Views. Это один из лучших моментов программы: не надо строить отдельную 3D-модель с нуля. Вы рисуете в плане, а затем сразу смотрите результат как дом, как комнату, как аэровид или как cutaway-сечение. За счёт этого Punch Home Design удобен не только для черчения, но и для постоянной пространственной проверки решений.
6. Добавить материалы, цвета, мебель и декор
Когда геометрия уже читается, можно переходить к оформлению. Здесь в ход идут Decorator Palette, QuickPalettes, библиотека 3D-объектов, библиотека материалов, материалы для пола, стен, кровли, фасадов и мебели, а также SmartWand и Material Editor. Punch позволяет вести работу не только через 2D-план, но и непосредственно в 3D-окне: многие виды отделки, тримы, панели и поверхности удобнее назначать именно там.
7. Проработать участок
После дома начинается полноценная ландшафтная часть: рельеф, клумбы, дорожки, патио, deck, растения, заборы, ворота, бассейн, полив. Punch Home Design в этом месте превращается из домашнего планировщика в реально универсальный пакет. Многие программы умеют или дом, или участок. Punch! Home & Landscape Design Professional умеет и то и другое одинаково системно.
8. Посчитать материалы и подготовить выходные данные
Финальный этап — смета, спецификации, экспорт и презентационные виды. Punch автоматически собирает Estimator, экспортирует таблицы, поддерживает рендеринг через LuxCore, 3D-анимацию, сохранённые точки обзора, 360°-просмотр и обмен через стандартные форматы вроде OBJ, DXF/DWG, PDF и SketchUp import. Для домашнего и полупрофессионального проектирования это очень мощный комплект.
2D-планировка: насколько Punch Home Design силён именно как чертёжный инструмент
Многие знают Punch по 3D-картинкам, но его реальная ценность начинается в 2D. В Professional-редакции есть Advanced 2D Drawing Engine, поддержка богатых аннотаций через Custom Rich Text, работа с размерами, текстом, обозначениями, плановыми маркерами, легендами, линиями уровня, callout-инструментами и фильтрами выделения. То есть Punch Home Design — это не оболочка вокруг рендера, а нормальная рабочая чертёжная среда.
Punch удобно использовать для построения плана этажа, потому что программа хорошо сочетает ручное управление и автоматизацию. С одной стороны, здесь есть QuickStart и готовые планы. С другой — никто не мешает строить схему вручную, ломать стеновые сегменты, вставлять точки, менять размеры по месту, использовать ProjecTape, выносить размеры, прокладывать ориентиры и постепенно доводить план до рабочего состояния. Именно из-за этого Punch Home Design ощущается ближе к строительной практике, чем типичные интерьерные конструкторы.
Отдельно стоит похвалить Floor Plan Trace. Это один из тех инструментов, который в реальной жизни экономит часы. Не нужно заново угадывать существующий дом: подложили схему, откалибровали масштаб через Floor Plan Trace Properties, обвели стены и проёмы, скрыли изображение, продолжили работать уже с чистым цифровым планом. Для реконструкции дома, переделки квартиры, работы со старым бумажным планом или PDF-схемой это один из самых сильных аргументов в пользу Punch.
Punch также не ограничивается одной плоскостью. В Professional есть продвинутое управление этажами, поэтому можно отдельно вести подвал, основной уровень, второй этаж, мансарду, чердак, террасы и внешние уровни. Когда программа используется для частного дома, это принципиально: без нормального floor management любой проект быстро превращается в хаос. Здесь этого не происходит, потому что этажи в Punch структурированы, а Estimator и плановые вкладки тоже умеют работать с этой разбивкой.
3D-визуализация: не просто красивый просмотр, а рабочий слой проекта
3D в Punch Home Design не оторван от 2D и не живёт своей жизнью. Программа строит объём непосредственно из плана, а затем позволяет менять отделку, цвета, тримы, панели, мебель, декор и даже часть параметров прямо в 3D-окне. Это важное отличие Punch от систем, где 3D нужен только в самом конце ради красивого кадра. Здесь 3D — рабочая среда, через которую удобно проверять пропорции, высоты, стыки материалов, открывания дверей, читаемость лестницы, видимость перегородок и общее ощущение пространства.
Punch поддерживает разные режимы обзора: стандартную 3D-навигацию, Room View, Aerial, Aerial Room View, Clearview/Wireframe, Cutaway, Saved 3D Viewpoints и Online 360° Viewer. Это значит, что проект можно смотреть как снаружи, так и изнутри, как по комнате, так и по всему зданию, как в реалистике, так и в разрезах. Для проектной проверки это гораздо важнее, чем просто наличие рендера. Именно такие режимы превращают 3D в инструмент принятия решений.
За фотореалистичную визуализацию отвечает Photo Rendering (LuxCore). Punch использует физически корректный PBR-подход: материалы ведут себя как металл, стекло, матовые и глянцевые поверхности, а свет и отражения просчитываются заметно реалистичнее, чем в базовом просмотровом режиме. Это не уровень тяжёлых standalone-рендеров, но для домашнего проектирования, ремонта, презентации фасада или интерьера результат более чем убедительный.
Отдельно сильна работа со стеклом, дверными и оконными панелями, отражениями и материалами. Punch умеет назначать поверхности быстро, а затем дотягивать их до нужного вида через Material Editor. Поэтому программу приятно использовать не только на этапе поставить окна, но и на стадии, где уже важно, как будет выглядеть конкретная отделка фасада, кровля, деревянные элементы, плитка, штукатурка или камень.
Материалы, цвета и библиотеки: одна из самых сильных сторон Punch Home Design
Внутри Punch! Home & Landscape Design Professional работа с отделкой построена очень грамотно. Есть Decorator Palette, QuickPalettes, библиотека 3D-объектов, библиотека материалов, библиотека тримов, библиотека красок, категории и подкатегории, а также User Library, в которую можно копировать и сохранять свои элементы. Причём Punch нормально разводит системный контент и пользовательский: stock-библиотека остаётся базовой, а всё кастомное можно вести через User Library.
Программа включает 5 469 3D-объектов и более 7 640 материалов в Professional-редакции, что для домашнего проектирования уже очень солидно. Это не ситуация, когда библиотека заканчивается на три дивана и два вида плитки. Punch покрывает мебель, аксессуары, окна, отделку, покрытия пола, наружные материалы, кровлю, декор, оборудование и массу типовых компонентов для дома и участка.
Один из самых полезных механизмов здесь — SmartWand. Он позволяет не просто перетащить материал на поверхность, а сразу выбрать масштаб применения: к одной поверхности, ко всем похожим поверхностям комнаты, а в некоторых сценариях и ко всей структуре. В практической работе это огромная экономия времени. Вместо десятков однотипных действий пользователь одним применением перекрашивает все стены комнаты, все схожие поверхности, группу потолков или набор одинаковых фасадных элементов.
Работа с материалами в Punch логична и на уровне интерфейса. Через Libraries tab выбираются Materials, Paint Colors или Trim, затем через Categories открывается нужная библиотека, после чего материал просто перетаскивается на поверхность в 3D-окне. Можно назначать кирпич, штукатурку, гравий, кровлю, дерево, фоновые материалы, а также импортировать собственные материалы в библиотеку через File > Import > Material to Library. То есть Punch не замыкает вас в родном наборе текстур.
Очень сильный компонент — Material Editor. Он позволяет редактировать ориентацию и цветовые свойства материала, работать с RGB, Hue, Saturation, Brightness, Shadows, Midtones, Highlights и Gamma Correction, сравнивать исходный и новый вариант, сохранять новую копию материала в User Library или заменять существующий. Для софта этого класса Material Editor в Punch сделан на удивление серьёзно и даёт куда больше контроля, чем ожидаешь от домашней программы.

Material Editor даёт тонкую настройку материалов: ориентация, RGB, яркость, полутона, гамма и сохранение нового варианта в библиотеку.
Ещё один недооценённый инструмент — Find Applied Tool. Он полезен, когда проект уже оброс множеством материалов и цветов, и нужно быстро понять, что именно назначено на конкретной поверхности. Punch умеет не только определять уже применённый материал, но и сохранять понравившийся цвет в Custom Colors. Это делает большую сцену управляемой: проект не расползается в хаос из случайно назначенных текстур.
Интерьер: мебель, отделка, декор и реальная работа по комнатам
В интерьерной части Punch Home Design выглядит уверенно именно потому, что не замыкается на красивых картинках. Программа позволяет нормально пройти путь от планировки комнаты к её наполнению. Сначала вы строите стены и проёмы, затем задаёте покрытия пола, материалы стен, потолок, тримы, после этого добавляете мебель, свет, аксессуары и текстиль. Такая последовательность кажется очевидной, но далеко не все конкуренты ведут пользователя настолько естественно.
Punch удобно использовать для дизайна интерьера, потому что многие элементы можно размещать как в плане, так и прямо в 3D. Объекты из Furnishings library разрешено бросать в design window или сразу в 3D view, а если предмет опускается на пол или потолок, программа сама подхватывает нужную высоту привязки. Это сильно упрощает расстановку мебели и декора: меньше ручных корректировок по высоте, быстрее композиционная работа по комнате.
Полезны и QuickPalettes, и Decorator Palette. Они ускоряют выбор материалов и декоративных решений, особенно когда вы тестируете несколько стилевых сценариев в одном и том же помещении. Punch вообще хорош в сценарии сравнения: можно быстро поменять отделку, проверить другой цвет, заменить фасад мебели, попробовать иную обвязку окна или тримы, не перестраивая весь интерьер заново. Для ремонта и обновления существующего дома это один из самых ценных типов работы.
Кухня, ванная, двери, окна и декоративные детали
Кухня и ванная в Punch сделаны заметно лучше, чем можно ожидать от универсальной программы для дома и участка. Во-первых, здесь есть Cabinet Tool. Во-вторых, профессиональная редакция включает Window Designer, Door Designer, Trim Designer, Ceiling Designer, Mantel Designer и Fireplace Wizard. То есть Punch умеет не только поставить типовую мебель и сантехнику, но и реально прорабатывать важные интерьерные и архитектурные узлы.
Для кухни это означает нормальную работу со шкафами, расстановкой, группировками, а также связь с остальным проектом: окна, двери, полы, потолки и отделка не живут отдельно. Punch Home Design хорош именно в комплексной сцене, где кухня существует как часть дома, а не как изолированный room planner. Можно одновременно видеть её в плане, в связке с соседними помещениями и в 3D, быстро тестируя функциональность и визуальную логику.
С дверями и окнами Punch работает серьёзно. В базовом режиме доступны вставка и параметрическая правка размеров, установки и открывания. Когда этого мало, подключаются Door Designer и Window Designer. За счёт этого Punch удобен там, где дом не укладывается в полностью типовые решения. Можно точнее подогнать изделие под проект, а не подгонять проект под одну библиотечную карточку.
Особенно приятно сделаны тримы. В 3D-окне можно отдельно накладывать Base Trim, Crown Trim и Library Paneling, в том числе использовать панельные решения и двухматериальные стены наподобие wainscoting. Тримы накладываются drag-and-drop, заменяются поверх уже применённых вариантов и помогают очень быстро довести интерьер до вида, в котором он начинает выглядеть именно как завершённое пространство, а не как голая геометрия.
Отдельного упоминания заслуживает Fireplace Wizard. В Punch это не просто библиотечный камин. Вызов через Design > Launch PowerTool открывает мастер, где можно выбрать тип камина, задать размеры лицевой части, топки, очага, портала, каминной полки и дымохода, а затем увидеть результат в 3D и вернуть объект обратно в план. Такой инструмент отлично показывает философию программы: сложный архитектурный элемент в Punch решается не абстрактной 3D-моделью, а специализированным мастером.
Крыша, мансарда, лестницы, deck и конструктив
В проектах частного дома крыша почти всегда становится местом, где слабые программы начинают разваливаться. Punch Home Design здесь ведёт себя уверенно. В Professional доступны Automatic and Custom Roof Tools, Automatic Gables, Dormer Tool, а в обучающих материалах отдельно выделены Gable Roofs, Hip Roofs, Cross Connector, Freehand Roof Tools, Dormer Cutouts & Skylights и Dormers. Это означает, что Punch умеет не только автоматически накинуть крышу, но и дорабатывать её вручную.
Если выделить элемент крыши, справа в Tool Options bar можно управлять уклоном, отметкой, типом построения и формой сегмента. Именно здесь Punch показывает свой рабочий характер: крыша — это не декоративная шапка дома, а настраиваемая часть модели. Можно двигать точки, менять форму отдельных частей и доводить крышу до адекватного результата без ощущения, что программа борется с пользователем.
Со лестницами Punch тоже достаточно конкретен. Через Straight Stairway Tool на вкладке Floor задаётся траектория, а затем регулируются Staircase Height, Staircase Width, Step Height, Step Depth, наличие открытых подступенков, боковые стенки и другие параметры. Для частного дома, где лестница часто критична по компоновке, этого более чем достаточно. Punch не делает вид, что лестница второстепенна: это полноценный объект с редактируемой геометрией.
Внешние конструкции — deck, railing, stairs, custom posts — у Professional тоже развиты неплохо. Программа включает Enhanced Deck, Railing and Stair Options, Additional New Railing Styles, Custom Railing Styles, Custom Posts, Deck Layout Tools и IntelliDeck Tools. Поэтому Punch Home Design удобен не только для корпуса дома, но и для уличных конструкций: террас, ступеней, входных групп, задних площадок и пристроек.
И ещё одна важная для практики вещь — Framing. Punch позволяет не просто показать стены и крышу, но и работать с каркасной логикой. Плюс к этому программа умеет вести Foundation Planner и Section Detailer, что делает её полезной не только на стадии идеи, но и на стадии уточнения конструктивных решений и узлов. Для универсального home design-софта это серьёзное преимущество.
Ландшафт и участок: тут Punch Home Design превращается в действительно универсальную программу
Само название Home & Landscape в Punch не декоративное. Ландшафтная часть программы не выглядит придатком к интерьеру. В Professional есть 2D Plant Symbols, Customizable Plant Sizing, 4 000+ plants, Landscape and Patio Groupings, Topography Tools, Plant Fill, Plant Inventory Bar, Irrigation Tools, Fence Designer, Site Planner (Property Line Coordinates), Pool Designer, Global Sun Positioning, Custom Edging and Bed Borders, Deck Layout Tools и IntelliDeck Tools. Это уже полноценный набор для проектирования участка.
С рельефом Punch работает очень предметно. Для построения топографии используются линии и формы с назначением высот, а при работе со склонами применяются такие инструменты, как Slope Lot Section Tool и Topography Line Tool на вкладке Landscape. После задания линий, фигур и высот рельеф обновляется, а в Lot Properties можно подстроить Patch Resolution и Generation Quality. Это уже не намекнуть на перепад, а реально смоделировать участок с уклонами, террасированием и привязкой к дому.
Топографические линии и высоты в Punch позволяют собрать рельеф, а не просто условно обозначить его на плане.
Растения в Punch — это не только иконки на плане. Их можно размещать в design window и прямо в 3D-окне, причём высота посадки привязывается к положению курсора и поверхности. Есть Plant Inventory Bar, чтобы видеть состав озеленения, а через Plant Growth Meter на вкладке Landscape можно визуально состаривать или омолаживать растения в 3D, меняя предполагаемый возраст насаждений. Максимальный возраст задаётся через Design > Plant Growth Projection. Это очень сильная функция для презентации: можно показать не только как выглядит сейчас, но и как будет выглядеть через несколько лет.
Отдельного внимания заслуживают дорожки, клумбы, patio и deck. Punch позволяет рисовать дорожки и проезды, группировать ландшафтные элементы, использовать Ground Fill, бордюры, ограждения, калитки, полив и уличную мебель. Плюс есть Outdoor Kitchen Custom Cabinets, так что программа хорошо подходит не только для сада, но и для полноценного outdoor living-сценария: терраса, зона еды, барбекю, бассейн, дорожки и подсадка растений.
В ландшафтной работе Punch Home Design очень выигрывает у чисто интерьерных решений. Там, где типичный room planner заканчивается на окнах и диване, Punch продолжает проект на улицу: строит границы участка, задаёт рельеф, проектирует deck, патио, клумбы, полив и заборы, а при желании ещё и привязывает это к реальной фотографии через PhotoView. Для частного дома это не дополнение, а огромная часть реального проектирования.
Электрика, HVAC и инженерная логика проекта
Одно из самых недооценённых преимуществ Punch! Home & Landscape Design Professional — наличие Electrical Planner и HVAC Planner. Это сразу поднимает программу над декоративными планировщиками. Внутри обучающих материалов отдельно вынесены Switches & Receptacles, Switch Connector, Lights, Ceiling Fan, Cable, Cat & Phone Outlets, Smoke Detector & Thermostat, а также HVAC-элементы вроде воздуховодов и оборудования. Даже если пользователь не делает инженерный проект в полном профессиональном объёме, возможность нормально разметить электрику и климатическую часть в одном файле уже очень полезна.
Punch удобен тем, что инженерные элементы не висят отдельным миром. Они ложатся в тот же план, где уже есть стены, двери, окна, мебель и отделка. Это даёт более жизненный сценарий работы: вы не только расставляете диваны, но и сразу понимаете, где будут выключатели, розетки, светильники, термостат, вытяжка, отопительный блок или вентиляционные каналы. Для ремонта это критично, потому что именно на стыке планировки и инженерии чаще всего случаются самые дорогие ошибки.
Punch, конечно, не заменяет специализированные инженерные расчётные пакеты, но для проекта частного дома уровень детализации здесь очень правильный. Он достаточно глубокий, чтобы не забыть о жизненно важных вещах, и достаточно простой, чтобы не убить темп работы. Именно поэтому программа хорошо подходит не только дизайнерам, но и тем, кто реально продумывает реконструкцию или строительство дома.
Импорт, экспорт и совместимость: Punch не заперт в собственном мире
Удобство Punch Home Design сильно повышает набор форматов. Программа поддерживает OBJ export, OBJ import, STL export, DXF/DWG import/export, PDF Import 2D, SketchUp import, 3DS import и Import Material. Это означает, что Punch можно использовать не только как конечную точку, но и как промежуточную среду в более длинном рабочем процессе.
PDF Import 2D особенно полезен в сочетании с Floor Plan Trace. Вы можете взять готовую схему, импортировать её, подложить под трассировку и на её основе собрать чистый рабочий план. SketchUp import пригодится, если нужна дополнительная библиотечная гибкость или нужно дотянуть сцену специфическим объектом. OBJ и STL — уже шаг в сторону обмена с 3D-средами и внешними задачами. Для домашнего проектировщика это может оказаться запасом на будущее, а для продвинутого пользователя — реальной рабочей связкой.
Punch также поддерживает экспорт и презентационные формы работы: 3D Animation Export, Saved 3D Viewpoints, Online 360° Viewer, Room View, Aerial и cutaway-режимы. Поэтому программа годится не только для себя понять, но и для объяснения проекта другим людям. А это в домашнем строительстве и ремонте важнее, чем кажется: хороший проект — это ещё и проект, который можно быстро показать и согласовать.
Смета и расчёт материалов: Punch умеет считать, и это не второстепенная опция
Многие программы красиво визуализируют, но резко слабеют, когда вопрос доходит до материалов и денег. Punch! Home & Landscape Design Professional в этом месте выглядит заметно серьёзнее. Внутри есть Estimator with Room Estimating, который автоматически собирает строительные материалы и расходы по мере развития проекта. Результат выводится в редактируемом, печатаемом и экспортируемом формате таблицы, а данные можно смотреть по вкладкам плана для конкретной части проекта.
Это значит, что Punch Home Design полезен не только на стадии понять, красиво ли выглядит дом, но и на стадии что именно мне нужно покупать. В Estimator попадают окна, двери, шкафы, каркасные элементы, молдинги и другие компоненты проекта, а значит программа начинает работать как черновой экономический контроллер. Для ремонта и частного строительства это одно из самых практичных достоинств Punch.

Estimator собирает материалы и стоимость по разделам проекта в табличном формате.
Понятно, что Punch не заменяет полноценную профессиональную сметную систему и не знает всех реальных цен и местных строительных коэффициентов сам по себе. Но программа отлично закрывает более базовую и при этом крайне нужную задачу: собрать перечень материалов, понять объёмы, не упустить состав проекта и подготовить рабочую основу для бюджета. Для большинства владельцев дома именно этого уровня уже более чем достаточно.
Что в Punch Home Design действительно удобно
Главное удобство Punch — не в том, что он простой, а в том, что он предсказуемо рабочий. Вы почти всегда понимаете, где искать следующий шаг: либо во вкладке предметной области сверху, либо в правой панели свойств, либо в Libraries, либо в Design-меню, если речь о PowerTools и специальных режимах. Логика интерфейса довольно старая по духу, но она последовательная, а это в прикладном проектировании ценнее модных красивых иконок.
Очень помогает то, что Punch не делает 3D отдельной программой внутри программы. Вы рисуете план, сразу открываете объём, сразу видите изменения. Добавляете материалы — видите их в той же сцене. Примеряете PhotoView — сразу получаете понятную фотопривязку. Работаете с растениями — тут же смотрите рост и читаемость ландшафта. Это сильно снижает когнитивный разрыв между черчением и визуализацией.
Наконец, Punch хорош тем, что в нём много специализированных инструментов для бытово-строительных задач: Floor Plan Trace, Fireplace Wizard, Window Designer, Door Designer, Plant Growth Meter, Irrigation Tools, Deck Layout Tools, Fence Designer, Estimator. Они создают ощущение, что программа делалась не про абстрактный 3D, а про реальные ситуации, которые возникают у владельца дома и у подрядчика.
Что у программы слабее
Самая очевидная слабость Punch Home Design — интерфейс не выглядит современным в веб-сервисном смысле. Это не тот продукт, который поражает ультрачистым UX с первой минуты. Punch нужно немного освоить, принять его рабочую логику и понять, где находятся нужные группы инструментов. На первых этапах программа может показаться сухой и местами тяжеловесной. Это плата за функциональную насыщенность.
Вторая слабость — Punch сильнее именно в проектировании дома, участка и ремонта, чем в вау-рендерах любой ценой. LuxCore делает программу заметно красивее большинства бытовых решений, но если пользователю нужен исключительно глянцевый интерьерный рендер и почти ничего кроме него, Punch может показаться избыточным. Его сила — в сочетании чертежа, модели, участка и сметы, а не только в картинке.
Третья особенность — программа очень хороша в частном доме и ремоделинге, но при росте требований до уровня жёсткого архитектурного производства на больших проектах Punch закономерно уступает более тяжёлым профессиональным CAD/BIM-решениям. Это не недостаток как таковой, а граница класса. Для дома, участка, реконструкции, интерьера и экстерьера возможностей Punch более чем достаточно; для большего масштаба уже хочется специализированной архитектурной среды.
Сравнение с аналогами
Planner 5D
Planner 5D заметно выигрывает по скорости входа, современности интерфейса и общей дружелюбности первого часа. У него сильная AI-подача, есть распознавание планов, 2D/3D-переключение, библиотека из 8 000+ предметов, 4K-рендеры и 360°-сценарии. Для быстрой интерьерной визуализации и лёгкого старта Planner 5D действительно проще.
Но Punch Home Design Professional объективно глубже там, где начинается настоящий проект дома. У Punch есть Floor Plan Trace, Foundation Planner, HVAC Planner, Electrical Planner, Framing, Topography Tools, Irrigation Tools, Estimator, Site Planner, Pool Designer, Deck Layout Tools и более выраженная чертёжная логика. Поэтому Planner 5D удобнее для быстрого концепта, а Punch — для связного проекта дома, ремонта и участка. Если нужен красивый старт и лёгкий вход, чаще выберут Planner 5D; если нужен более инженерно-практичный результат, выиграет Punch.
Sweet Home 3D
Sweet Home 3D хорош своей прямолинейностью: импортируете план как фоновое изображение, рисуете стены, редактируете толщины, добавляете двери и окна, расставляете мебель, меняете текстуры, импортируете модели и библиотеки текстур. Для простого домашнего проекта или бесплатного старта это один из самых разумных вариантов.
Но Punch Home Design Professional заметно сильнее по глубине. Там, где Sweet Home 3D остаётся в основном интерьерным и планировочным инструментом, Punch идёт дальше: крыши, dormer-инструменты, лестницы, framing, участок, рельеф, полив, deck, patio, бассейн, PhotoView, смета, окна и двери через отдельные дизайнеры, а также более серьёзная визуализация. Поэтому Sweet Home 3D — хороший выбор для бюджетной и довольно прямой интерьерной работы, а Punch — для полноценного проекта дома с участком.
Home Designer Pro
Home Designer Pro — самый опасный конкурент Punch в этой группе, потому что он тоже ориентирован не на игрушечное 3D, а на реальный residential design. У него сильная сторона — более тяжёлый архитектурный подход, продвинутые материалы списков и смет, развитые framing-возможности, deck/terrain-инструменты и в целом более глубокая связь с архитектурной школой Chief Architect. Если проект требует максимально серьёзной конструктивной глубины в рамках домашнего CAD-софта, Home Designer Pro часто выглядит сильнее.
При этом Punch Home Design Professional нередко удобнее по балансу. У него мягче вход, понятнее сценарий план дома + интерьер + участок + визуализация + PhotoView + смета, а инструменты вроде Floor Plan Trace, SmartWand, Material Editor и PowerTools быстро дают ощущение контроля без слишком тяжёлой архитектурной дисциплины. Поэтому Home Designer Pro — выбор для тех, кто хочет максимально серьёзный residential CAD; Punch — для тех, кому нужен более универсальный, быстрый и житейски полезный пакет.
RoomSketcher
RoomSketcher очень силён в презентации планов: подробные 2D floor plans, 3D floor plans, замеры, Live 3D walkthroughs, 360 Views, 3D Photos, готовые шаблоны и удобная подача результата. Для недвижимости, презентаций, базовых интерьерных сценариев и быстрого объяснения планировки клиенту это очень комфортный продукт.
Но RoomSketcher слабее там, где Punch силён по-настоящему: проектирование самого дома и участка, топография, крыши, deck, инженерные элементы, смета, PowerTools, окна и двери через отдельные дизайнеры, привязка к фото, работа с рельефом и поливом. Поэтому RoomSketcher лучше воспринимать как удобный floor plan и презентационный инструмент, а Punch — как более насыщенную систему для домашнего проектирования в широком смысле.
Краткий вывод по аналогам
Если нужна самая лёгкая точка входа и современный интерфейс, быстрее всего заходят Planner 5D и RoomSketcher.
Если нужен бесплатный и понятный интерьерно-планировочный минимум, хорош Sweet Home 3D.
Если нужен максимально серьёзный residential CAD, очень силён Home Designer Pro.
Если нужен универсальный пакет именно для дома, ремонта, интерьера, экстерьера, участка и сметы в одной программе, Punch! Home & Landscape Design Professional выглядит одним из самых сбалансированных вариантов.
Кому Punch Home Design действительно подходит
Punch! Home & Landscape Design Professional стоит выбирать в тех случаях, когда проект шире одной комнаты. Это хороший инструмент для владельца частного дома, который хочет заранее продумать перепланировку, лестницу, крышу, отделку фасада, террасу, двор, клумбы, освещение участка и базовую смету. Здесь программа даёт реальный набор инструментов под такие задачи, а не только красивый 3D-вид.
Программа также очень хорошо подходит тем, кто работает по существующему объекту. Если у вас есть старый план, скан, PDF или просто фото дома, Punch помогает быстро войти в проект через Floor Plan Trace и PhotoView. Это резко ускоряет старт и позволяет не строить всё заново с пустого листа, особенно в проектах реконструкции, редизайна фасада и ландшафта.
Ещё один удачный сценарий — работа на стыке интерьера и экстерьера. Когда вы хотите в одной программе принять решения и по комнатам, и по участку, Punch оказывается удобнее многих конкурентов именно за счёт того, что ничего не нужно переносить между разными сервисами. Один проект может включать дом, двор, deck, дорожки, растения, бассейн и смету. Для частной застройки это очень сильный сценарий.
Кому лучше посмотреть в сторону другого решения
Если задача ограничивается тем, чтобы быстро накидать интерьер, поиграть цветами и посмотреть красивый рендер без погружения в дом как систему, Punch может быть избыточным. В таком сценарии быстрее и психологически легче зайдут Planner 5D, RoomSketcher или даже Sweet Home 3D — в зависимости от бюджета и желаемой глубины.
Если же нужен максимально серьёзный residential CAD с упором на профессиональную архитектурную дисциплину и более тяжёлую модельную глубину, стоит смотреть в сторону Home Designer Pro. Punch сильный и очень практичный, но его оптимальная зона — частный дом, ремоделинг, домашнее проектирование, участок и визуализация, а не предельная архитектурная формализация.
Итог
Punch! Home & Landscape Design Professional — одна из тех программ, которые ценны не одной громкой функцией, а плотностью полезных функций. Она умеет делать планировку дома, работать с этажами, стенами, крышами, лестницами и проёмами, быстро переводить всё это в 3D, глубоко работать с материалами и цветами, вести интерьер, проектировать участок, моделировать рельеф, расставлять растения, полив, deck и patio, считать материалы и экспортировать проект в рабочие форматы.
Сильнее всего Punch Home Design раскрывается в реальном частном проекте: дом, ремонт, фасад, двор, терраса, лестница, кухня, смета. Там программа выглядит не как универсальная швейцарская карточка, а как зрелая система, в которой разные части проекта действительно работают вместе. Именно поэтому Punch сложно честно сравнивать только по красоте рендера или только по простоте интерфейса. Его сила — в связности.
Если нужен краткий вердикт, он такой: Punch! Home & Landscape Design Professional — очень сильная программа для проектирования дома и участка, особенно когда нужен не просто интерьерный концепт, а полноценная рабочая модель с планом, 3D, ландшафтом и сметой. У неё не самый модный интерфейс, но это один из лучших универсальных пакетов для тех, кто хочет продумать дом целиком, а не отдельный фрагмент.
Финальная оценка
| Критерий | Оценка |
|---|---|
| 2D-планировка | 9/10 |
| 3D-проверка проекта | 9/10 |
| Интерьер и отделка | 8.5/10 |
| Работа с участком и ландшафтом | 9.5/10 |
| Инженерные и прикладные инструменты | 8.5/10 |
| Смета и практическая полезность | 9/10 |
| Простота первого входа | 7/10 |
| Общий итог | 8.9/10 |